|
|
|
| Larry Stein Oklahoma County Assessor (405) 713-1200 - Public Access System |
|
|
|
|
|
|
| Real Property Display - Screen Produced 2/28/2026 2:57:54 AM | ||||
|---|---|---|---|---|
| Account: R188971195 | Type: Residential | Location: |
5312 NW 45TH ST |
|
| Building Name/Occupant: |
|
WARR ACRES |
||
| Owner Name 1: | GARCIA JOSE GUTIERREZ |
Parcel PIN#: |
2857-18-897-1195 |
|
| Owner Name 2: | 1/4 section #: |
2857 |
||
| Owner Name 3: | Parent Acct: |
|
||
| Billing Address: | 5312 NW 45TH ST | Tax District: |
|
|
| City, State, Zip | WARR ACRES , OK 73122 | School System: |
Putnam City #1 |
|
|
Country: (If noted) |
Land Size: |
0.1942 Acres |
||
|
Land Value: 27,072 |
|
|||
|
Sect 15-T12N-R4W Qtr NE |
SHAMROCK 3RD ADD
Block
002
Lot
004
|
|||
| Full Legal Description: SHAMROCK 3RD ADD 002 004 |
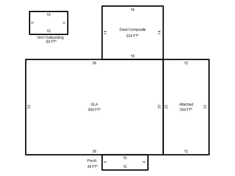
| Photo & Sketch (if available) | Comp Sales (ordered by relevancy) |
|
||||||||||||||||||
|
||||||||||||||||||||
| Value History (*The County Treasurer 405-713-1300 posts & collects actual tax amounts. Contact information HERE) | |||||||||||||
|---|---|---|---|---|---|---|---|---|---|---|---|---|---|
| Year | Market Value | Taxable Mkt Value | Gross Assessed | Exemption | Net Assessed | Millage | Est. Tax | Tax Savings | |||||
|
2025 |
150,000 |
145,860 |
16,044 |
0 |
16,044 |
115.77 |
$1,857 |
$53 |
|||||
|
2024 |
148,000 |
138,915 |
15,280 |
0 |
15,280 |
114.25 |
$1,746 |
$114 |
|||||
|
2023 |
141,500 |
132,300 |
14,553 |
0 |
14,553 |
117.84 |
$1,715 |
$119 |
|||||
|
2022 |
126,000 |
126,000 |
13,860 |
0 |
13,860 |
120.40 |
$1,669 |
$0 |
|||||
|
2021 |
108,000 |
101,315 |
11,144 |
1,000 |
10,144 |
119.77 |
$1,215 |
$208 |
|||||
| Property Account Status/Adjustments/Exemptions | ||||||
|---|---|---|---|---|---|---|
| Account # | Exemption Description | Amount | ||||
| No adjustment/exemption records returned. | ||||||
| Property Deed Transaction History (Recorded in the County Clerk's Office) | |||||||
|---|---|---|---|---|---|---|---|
| Date | Type | Book | Page | Price | Grantor | Grantee | |
|
7/21/2020 |
|
Deeds |
$100,000 |
RAMOS DE JESUS ABEL JR |
GARCIA JOSE GUTIERREZ |
||
|
11/2/2018 |
|
Deeds |
$93,000 |
LINO JESSICA L |
RAMOS DE JESUS ABEL JR |
||
|
8/18/2009 |
|
Deeds |
$64,000 |
WEISS TOM F 111 |
LINO JESSICA L |
||
|
9/1/1981 |
|
Historical |
$0 |
|
WEISS TOM F 111 |
||
| Last Mailed Notice of Value (N.O.V.) Information/History | ||||||||
|---|---|---|---|---|---|---|---|---|
| Year | Date | Market Value | Taxable Market Value | Gross Assessed | Exemption | Net Assessed | ||
|
2026 |
02/23/2026 |
147,500 |
147,500 |
16,225 |
0 |
16,225 |
||
|
2025 |
02/14/2025 |
150,000 |
145,860 |
16,044 |
0 |
16,044 |
||
|
2024 |
02/13/2024 |
148,000 |
138,915 |
15,280 |
0 |
15,280 |
||
|
2023 |
02/14/2023 |
141,500 |
132,300 |
14,553 |
0 |
14,553 |
||
|
2022 |
03/15/2022 |
126,000 |
126,000 |
13,860 |
0 |
13,860 |
||
| Property Building Permit History | |||||||||||
|---|---|---|---|---|---|---|---|---|---|---|---|
| Issued | Permit # | Provided by | Bldg # | Description | Est Construction Cost | Status | |||||
| No Building Permit records returned. | |||||||||||
| Click button on building number to access detailed information: | ||||||
|---|---|---|---|---|---|---|
| Bldg # | Vacant/Improved Land | Bldg Description | Year Built | SqFt | # Stories | |
|
1 |
Improved |
Ranch 1 Story |
1954 |
900 |
1 Stories |
|