|
|
|
| Larry Stein Oklahoma County Assessor (405) 713-1200 - Public Access System |
|
|
|
|
|
|
| Real Property Display - Screen Produced 2/27/2026 8:38:29 AM | ||||
|---|---|---|---|---|
| Account: R212401120 | Type: Residential | Location: |
16945 FOX TROT CT |
|
| Building Name/Occupant: |
|
CHOCTAW |
||
| Owner Name 1: | MOOREMAN JAY SCOTT & MARY P |
Parcel PIN#: |
1021-21-240-1120 |
|
| Owner Name 2: | 1/4 section #: |
1021 |
||
| Owner Name 3: | Parent Acct: |
1021-16-867-0430 |
||
| Billing Address: | 16945 FOX TROT CT | Tax District: |
|
|
| City, State, Zip | CHOCTAW, OK 73020 | School System: |
Choctaw #4 |
|
|
Country: (If noted) |
Land Size: |
1.1400 Acres |
||
|
Land Value: 90,060 |
|
|||
|
Sect 6-T11N-R1E Qtr NE |
FOX HOLLOW OF CHOCTAW
Block
000
Lot
013
|
|||
| Full Legal Description: FOX HOLLOW OF CHOCTAW LOT 013 |
| Photo & Sketch (if available) | Comp Sales (ordered by relevancy) |
|
||||||||||||||||||
|
||||||||||||||||||||
| Value History (*The County Treasurer 405-713-1300 posts & collects actual tax amounts. Contact information HERE) | |||||||||||||
|---|---|---|---|---|---|---|---|---|---|---|---|---|---|
| Year | Market Value | Taxable Mkt Value | Gross Assessed | Exemption | Net Assessed | Millage | Est. Tax | Tax Savings | |||||
|
2025 |
566,500 |
464,143 |
51,055 |
1,000 |
50,055 |
117.21 |
$5,867 |
$1,437 |
|||||
|
2024 |
555,000 |
450,625 |
49,568 |
1,000 |
48,568 |
116.35 |
$5,651 |
$1,452 |
|||||
|
2023 |
437,500 |
437,500 |
48,125 |
1,000 |
47,125 |
118.06 |
$5,564 |
$118 |
|||||
|
2022 |
437,500 |
437,500 |
48,125 |
1,000 |
47,125 |
116.14 |
$5,473 |
$116 |
|||||
|
2021 |
437,500 |
437,500 |
48,125 |
1,000 |
47,125 |
116.17 |
$5,475 |
$116 |
|||||
| Property Account Status/Adjustments/Exemptions | ||
|---|---|---|
| Account # | Exemption Description | Amount |
|
R212401120 |
3% Cap Homestead |
0 |
|
R212401120 |
Homestead |
1,000 |
| Property Deed Transaction History (Recorded in the County Clerk's Office) | |||||||
|---|---|---|---|---|---|---|---|
| Date | Type | Book | Page | Price | Grantor | Grantee | |
|
7/28/2020 |
|
Deeds |
$450,000 |
SWM & SONS |
MOOREMAN JAY SCOTT & MARY P |
||
|
7/12/2016 |
|
Hmstd Off & |
$0 |
FOX HOLLOW PROPERTIES LLC |
SWM & SONS |
||
| Last Mailed Notice of Value (N.O.V.) Information/History | ||||||||
|---|---|---|---|---|---|---|---|---|
| Year | Date | Market Value | Taxable Market Value | Gross Assessed | Exemption | Net Assessed | ||
|
2026 |
02/06/2026 |
593,000 |
478,067 |
52,586 |
1,000 |
51,586 |
||
|
2025 |
01/31/2025 |
566,500 |
464,143 |
51,055 |
1,000 |
50,055 |
||
|
2024 |
01/22/2024 |
555,000 |
450,625 |
49,568 |
1,000 |
48,568 |
||
|
2021 |
02/24/2021 |
437,500 |
437,500 |
48,125 |
0 |
48,125 |
||
|
2020 |
02/21/2020 |
8,408 |
4,124 |
453 |
0 |
453 |
||
| Property Building Permit History | ||||||
|---|---|---|---|---|---|---|
| Issued | Permit # | Provided by | Bldg # | Description | Est Construction Cost | Status |
|
2/11/2020 |
1912106 |
|
1 |
Main Dwellin |
261,000 |
Inactive |
| Click button on building number to access detailed information: | ||||||
|---|---|---|---|---|---|---|
| Bldg # | Vacant/Improved Land | Bldg Description | Year Built | SqFt | # Stories | |
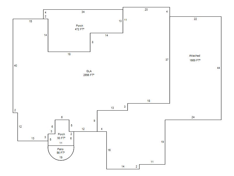
|
1 |
Improved |
Ranch 1 Story |
2020 |
2,656 |
1 Stories |
|