|
|
|
| Larry Stein Oklahoma County Assessor (405) 713-1200 - Public Access System |
|
|
|
|
|
|
| Real Property Display - Screen Produced 4/5/2026 3:26:08 AM | ||||
|---|---|---|---|---|
| Account: R114651090 | Type: Residential | Location: |
2600 NW 60TH ST |
|
| Building Name/Occupant: |
|
OKLAHOMA CITY |
||
| Owner Name 1: | TURNER JENNIFER R REV TRUST |
Parcel PIN#: |
2628-11-465-1090 |
|
| Owner Name 2: | 1/4 section #: |
2628 |
||
| Owner Name 3: | Parent Acct: |
|
||
| Billing Address: | 2621 GUILFORD LN | Tax District: |
|
|
| City, State, Zip | OKLAHOMA CITY, OK 73120 | School System: |
Oklahoma City #89 |
|
|
Country: (If noted) |
Land Size: |
0.1894 Acres |
||
|
Land Value: 61,875 |
|
|||
|
Sect 7-T12N-R3W Qtr NW |
ORTNERS FAIRDALE 2ND
Block
003
Lot
010
|
|||
| Full Legal Description: ORTNERS FAIRDALE 2ND 003 010 |
| Photo & Sketch (if available) | Comp Sales (ordered by relevancy) |
|
||||||||||||||||||
|
||||||||||||||||||||
| Value History (*The County Treasurer 405-713-1300 posts & collects actual tax amounts. Contact information HERE) | |||||||||||||
|---|---|---|---|---|---|---|---|---|---|---|---|---|---|
| Year | Market Value | Taxable Mkt Value | Gross Assessed | Exemption | Net Assessed | Millage | Est. Tax | Tax Savings | |||||
|
2026 |
347,500 |
343,235 |
37,755 |
0 |
37,755 |
122.90 |
$4,640 |
$58 |
|||||
|
2025 |
339,000 |
326,891 |
35,957 |
0 |
35,957 |
122.90 |
$4,419 |
$164 |
|||||
|
2024 |
318,000 |
311,325 |
34,245 |
0 |
34,245 |
123.89 |
$4,243 |
$91 |
|||||
|
2023 |
296,500 |
296,500 |
32,615 |
0 |
32,615 |
122.82 |
$4,006 |
$0 |
|||||
|
2022 |
306,500 |
306,500 |
33,715 |
0 |
33,715 |
117.63 |
$3,966 |
$0 |
|||||
| Property Account Status/Adjustments/Exemptions | ||
|---|---|---|
| Account # | Exemption Description | Amount |
|
R114651090 |
5% Capped Account |
0 |
| Property Deed Transaction History (Recorded in the County Clerk's Office) | |||||||
|---|---|---|---|---|---|---|---|
| Date | Type | Book | Page | Price | Grantor | Grantee | |
|
2/22/2021 |
|
Deeds |
$310,000 |
KELCO DEVELOPMENT LLC |
TURNER JENNIFER R REV TRUST |
||
|
10/3/2013 |
|
Hmstd Off & |
$0 |
HOGAN REECE & ELIZABETH TRS HOGAN REECE & ELIZABETH |
HERNDON LEREECA ANN SUCCESSOR TRS HOGAN REECE & ELIZABETH |
||
|
10/3/2013 |
|
Deeds |
$203,000 |
HERNDON LEREECA ANN SUCCESSOR TRS HOGAN REECE & ELIZABETH |
KELCO DEVELOPMENT LLC |
||
|
6/22/1992 |
|
Historical |
$0 |
HOGAN REECE & ELIZABETH |
HOGAN REECE & ELIZABETH TRS |
||
|
1/1/1985 |
|
Historical |
$0 |
|
HOGAN REECE & ELIZABETH |
||
| Last Mailed Notice of Value (N.O.V.) Information/History | ||||||||
|---|---|---|---|---|---|---|---|---|
| Year | Date | Market Value | Taxable Market Value | Gross Assessed | Exemption | Net Assessed | ||
|
2026 |
02/23/2026 |
347,500 |
343,235 |
37,755 |
0 |
37,755 |
||
|
2025 |
02/14/2025 |
339,000 |
326,891 |
35,957 |
0 |
35,957 |
||
|
2024 |
02/13/2024 |
318,000 |
311,325 |
34,245 |
0 |
34,245 |
||
|
2022 |
03/15/2022 |
306,500 |
306,500 |
33,715 |
0 |
33,715 |
||
|
2021 |
03/19/2021 |
239,500 |
239,500 |
26,345 |
0 |
26,345 |
||
| Property Building Permit History | |||||||||||
|---|---|---|---|---|---|---|---|---|---|---|---|
| Issued | Permit # | Provided by | Bldg # | Description | Est Construction Cost | Status | |||||
| No Building Permit records returned. | |||||||||||
| Click button on building number to access detailed information: | ||||||
|---|---|---|---|---|---|---|
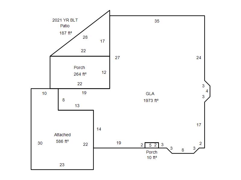
| Bldg # | Vacant/Improved Land | Bldg Description | Year Built | SqFt | # Stories | |
|
1 |
Improved |
Ranch 1 Story |
1964 |
1,973 |
1 Stories |
|