|
|
|
| Larry Stein Oklahoma County Assessor (405) 713-1200 - Public Access System |
|
|
|
|
|
|
| Real Property Display - Screen Produced 4/2/2026 7:20:43 AM | ||||
|---|---|---|---|---|
| Account: R116273200 | Type: Residential | Location: |
1229 NE 42ND ST |
|
| Building Name/Occupant: |
|
OKLAHOMA CITY |
||
| Owner Name 1: | HERNANDEZ LAURA M |
Parcel PIN#: |
2656-11-627-3200 |
|
| Owner Name 2: | HERNANDEZ LUIS A | 1/4 section #: |
2656 |
|
| Owner Name 3: | Parent Acct: |
|
||
| Billing Address: | 1229 NE 42ND ST | Tax District: |
|
|
| City, State, Zip | OKLAHOMA CITY, OK 73111 | School System: |
Oklahoma City #89 |
|
|
Country: (If noted) |
Land Size: |
0.1607 Acres |
||
|
Land Value: 11,900 |
|
|||
|
Sect 14-T12N-R3W Qtr NW |
PARK ESTATES THIRD
Block
002
Lot
020
|
|||
| Full Legal Description: PARK ESTATES THIRD 002 020 |
| Photo & Sketch (if available) | Comp Sales (ordered by relevancy) |
|
||||||||||||||||||
|
||||||||||||||||||||
| Value History (*The County Treasurer 405-713-1300 posts & collects actual tax amounts. Contact information HERE) | |||||||||||||
|---|---|---|---|---|---|---|---|---|---|---|---|---|---|
| Year | Market Value | Taxable Mkt Value | Gross Assessed | Exemption | Net Assessed | Millage | Est. Tax | Tax Savings | |||||
|
2026 |
95,500 |
70,499 |
7,754 |
0 |
7,754 |
122.90 |
$953 |
$338 |
|||||
|
2025 |
89,500 |
67,142 |
7,384 |
0 |
7,384 |
122.90 |
$908 |
$302 |
|||||
|
2024 |
86,000 |
63,945 |
7,033 |
0 |
7,033 |
123.89 |
$871 |
$301 |
|||||
|
2023 |
80,000 |
60,900 |
6,699 |
0 |
6,699 |
122.82 |
$823 |
$258 |
|||||
|
2022 |
58,000 |
58,000 |
6,380 |
0 |
6,380 |
117.63 |
$750 |
$0 |
|||||
| Property Account Status/Adjustments/Exemptions | ||
|---|---|---|
| Account # | Exemption Description | Amount |
|
R116273200 |
5% Capped Account |
0 |
| Property Deed Transaction History (Recorded in the County Clerk's Office) | ||||||||||
|---|---|---|---|---|---|---|---|---|---|---|
| Date | Type | Book | Page | Price | Grantor | Grantee | ||||
|
2/5/2020 |
|
Deeds |
$60,000 |
VB ONE LLC |
HERNANDEZ LAURA M |
|||||
|
3/14/2019 |
|
Deeds |
$51,000 |
LEWIS JAMES |
VB ONE LLC |
|||||
|
11/6/2017 |
|
Deeds |
$15,000 |
BYNDON MARLENE |
LEWIS JAMES |
|||||
|
10/30/2017 |
|
Deeds |
$0 |
BYNDON JIMMIE & MARLENE |
BYNDON MARLENE |
|||||
|
10/30/2017 |
|
Hmstd Off & |
$0 |
BYNDON MARLENE |
LEWIS JAMES |
|||||
| Last Mailed Notice of Value (N.O.V.) Information/History | ||||||||
|---|---|---|---|---|---|---|---|---|
| Year | Date | Market Value | Taxable Market Value | Gross Assessed | Exemption | Net Assessed | ||
|
2026 |
02/23/2026 |
95,500 |
70,499 |
7,754 |
0 |
7,754 |
||
|
2025 |
02/14/2025 |
89,500 |
67,142 |
7,384 |
0 |
7,384 |
||
|
2024 |
02/13/2024 |
86,000 |
63,945 |
7,033 |
0 |
7,033 |
||
|
2023 |
02/14/2023 |
80,000 |
60,900 |
6,699 |
0 |
6,699 |
||
|
2021 |
03/19/2021 |
59,000 |
59,000 |
6,490 |
0 |
6,490 |
||
| Property Building Permit History | |||||||||||
|---|---|---|---|---|---|---|---|---|---|---|---|
| Issued | Permit # | Provided by | Bldg # | Description | Est Construction Cost | Status | |||||
| No Building Permit records returned. | |||||||||||
| Click button on building number to access detailed information: | ||||||
|---|---|---|---|---|---|---|
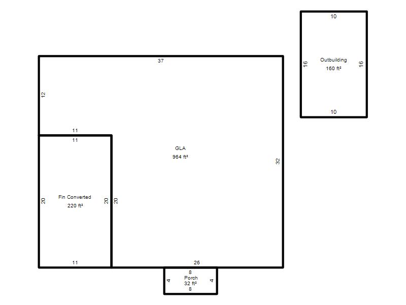
| Bldg # | Vacant/Improved Land | Bldg Description | Year Built | SqFt | # Stories | |
|
1 |
Improved |
Ranch 1 Story |
1948 |
964 |
1 Stories |
|