|
|
|
| Larry Stein Oklahoma County Assessor (405) 713-1200 - Public Access System |
|
|
|
|
|
|
| Real Property Display - Screen Produced 4/12/2026 9:24:16 PM | ||||
|---|---|---|---|---|
| Account: R063580400 | Type: Residential | Location: |
2736 NW 23RD ST |
|
| Building Name/Occupant: |
|
OKLAHOMA CITY |
||
| Owner Name 1: | BE RENTALS LLC |
Parcel PIN#: |
2720-06-358-0400 |
|
| Owner Name 2: | 1/4 section #: |
2720 |
||
| Owner Name 3: | Parent Acct: |
|
||
| Billing Address: | 1216 NW 34TH ST | Tax District: |
|
|
| City, State, Zip | OKLAHOMA CITY, OK 73118 | School System: |
Oklahoma City #89 |
|
|
Country: (If noted) |
Land Size: |
0.1722 Acres |
||
|
Land Value: 35,250 |
|
|||
|
Sect 30-T12N-R3W Qtr NW |
CRESTWOOD ADDITION
Block
001
Lot
000
|
|||
| Full Legal Description: CRESTWOOD ADDITION 001 000 LOTS 17 & 18 |
| Photo & Sketch (if available) | Comp Sales (ordered by relevancy) |
|
||||||||||||||||||
|
||||||||||||||||||||
| Value History (*The County Treasurer 405-713-1300 posts & collects actual tax amounts. Contact information HERE) | |||||||||||||
|---|---|---|---|---|---|---|---|---|---|---|---|---|---|
| Year | Market Value | Taxable Mkt Value | Gross Assessed | Exemption | Net Assessed | Millage | Est. Tax | Tax Savings | |||||
|
2026 |
147,000 |
123,865 |
13,624 |
0 |
13,624 |
122.90 |
$1,675 |
$313 |
|||||
|
2025 |
144,000 |
117,967 |
12,975 |
0 |
12,975 |
122.90 |
$1,595 |
$352 |
|||||
|
2024 |
137,000 |
112,350 |
12,358 |
0 |
12,358 |
123.89 |
$1,531 |
$336 |
|||||
|
2023 |
107,000 |
107,000 |
11,770 |
0 |
11,770 |
122.82 |
$1,446 |
$0 |
|||||
|
2022 |
100,000 |
67,003 |
7,369 |
0 |
7,369 |
117.63 |
$867 |
$427 |
|||||
| Property Account Status/Adjustments/Exemptions | ||
|---|---|---|
| Account # | Exemption Description | Amount |
|
R063580400 |
5% Capped Account |
0 |
| Property Deed Transaction History (Recorded in the County Clerk's Office) | |||||||
|---|---|---|---|---|---|---|---|
| Date | Type | Book | Page | Price | Grantor | Grantee | |
|
5/20/2022 |
|
Deeds |
$105,000 |
PIKE STEPHEN M |
BE RENTALS LLC |
||
|
11/4/2020 |
|
Hmstd Off & |
$0 |
ATKINSON LOYLE G |
PIKE STEPHEN M |
||
|
8/19/2015 |
|
Deeds |
$0 |
ATKINSON LOYLE G |
ATKINSON LOYLE G |
||
|
3/31/2008 |
|
Deeds |
$0 |
ATKINSON LOYLE G |
ATKINSON LOYLE G |
||
|
4/1/1985 |
|
Historical |
$0 |
|
ATKINSON LOYLE G |
||
| Last Mailed Notice of Value (N.O.V.) Information/History | ||||||||
|---|---|---|---|---|---|---|---|---|
| Year | Date | Market Value | Taxable Market Value | Gross Assessed | Exemption | Net Assessed | ||
|
2026 |
02/23/2026 |
147,000 |
123,865 |
13,624 |
0 |
13,624 |
||
|
2025 |
02/14/2025 |
144,000 |
117,967 |
12,975 |
0 |
12,975 |
||
|
2024 |
02/13/2024 |
137,000 |
112,350 |
12,358 |
0 |
12,358 |
||
|
2023 |
02/14/2023 |
107,000 |
107,000 |
11,770 |
0 |
11,770 |
||
|
2022 |
03/15/2022 |
100,000 |
67,003 |
7,369 |
0 |
7,369 |
||
| Property Building Permit History | |||||||||||
|---|---|---|---|---|---|---|---|---|---|---|---|
| Issued | Permit # | Provided by | Bldg # | Description | Est Construction Cost | Status | |||||
| No Building Permit records returned. | |||||||||||
| Click button on building number to access detailed information: | ||||||
|---|---|---|---|---|---|---|
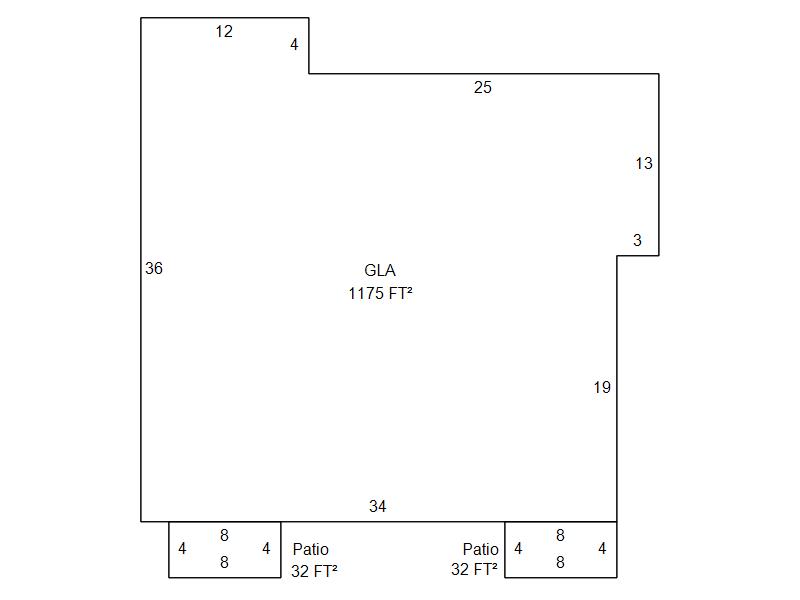
| Bldg # | Vacant/Improved Land | Bldg Description | Year Built | SqFt | # Stories | |
|
1 |
Improved |
Duplex One Story |
1940 |
1,175 |
1 Stories |
|