|
|
|
| Larry Stein Oklahoma County Assessor (405) 713-1200 - Public Access System |
|
|
|
|
|
|
| Real Property Display - Screen Produced 4/4/2026 2:19:26 PM | ||||
|---|---|---|---|---|
| Account: R172802500 | Type: Residential | Location: |
7225 NW 43RD ST |
|
| Building Name/Occupant: |
|
BETHANY |
||
| Owner Name 1: | AMSOLUTIONS LLC |
Parcel PIN#: |
2865-17-280-2500 |
|
| Owner Name 2: | 1/4 section #: |
2865 |
||
| Owner Name 3: | Parent Acct: |
|
||
| Billing Address: | 8650 CYPRESS AVE | Tax District: |
|
|
| City, State, Zip | SOUTH GATE, CA 90280-2734 | School System: |
Putnam City #1 |
|
|
Country: (If noted) |
Land Size: |
0.1607 Acres |
||
|
Land Value: 21,000 |
|
|||
|
Sect 17-T12N-R4W Qtr NE |
HATHAWAY FIFTH ADD
Block
002
Lot
008
|
|||
| Full Legal Description: HATHAWAY FIFTH ADD 002 008 |
| Photo & Sketch (if available) | Comp Sales (ordered by relevancy) |
|
||||||||||||||||||
|
||||||||||||||||||||
| Value History (*The County Treasurer 405-713-1300 posts & collects actual tax amounts. Contact information HERE) | |||||||||||||
|---|---|---|---|---|---|---|---|---|---|---|---|---|---|
| Year | Market Value | Taxable Mkt Value | Gross Assessed | Exemption | Net Assessed | Millage | Est. Tax | Tax Savings | |||||
|
2026 |
89,000 |
87,150 |
9,586 |
0 |
9,586 |
122.14 |
$1,171 |
$25 |
|||||
|
2025 |
83,000 |
83,000 |
9,130 |
0 |
9,130 |
122.14 |
$1,115 |
$0 |
|||||
|
2024 |
83,000 |
76,072 |
8,367 |
0 |
8,367 |
120.52 |
$1,009 |
$92 |
|||||
|
2023 |
81,000 |
72,450 |
7,969 |
0 |
7,969 |
123.06 |
$981 |
$116 |
|||||
|
2022 |
69,000 |
69,000 |
7,590 |
0 |
7,590 |
112.54 |
$854 |
$0 |
|||||
| Property Account Status/Adjustments/Exemptions | ||
|---|---|---|
| Account # | Exemption Description | Amount |
|
R172802500 |
5% Capped Account |
0 |
| Property Deed Transaction History (Recorded in the County Clerk's Office) | ||||||||||
|---|---|---|---|---|---|---|---|---|---|---|
| Date | Type | Book | Page | Price | Grantor | Grantee | ||||
|
6/11/2024 |
|
Deeds |
$67,000 |
SANTANA HERMELINDA |
AMSOLUTIONS LLC |
|||||
|
7/27/2021 |
|
Deeds |
$65,000 |
THOMPSON CLIFTON N |
SANTANA HERMELINDA |
|||||
|
3/25/1994 |
|
Historical |
$0 |
SECRETARY OF VETERANS AFFAIRS |
THOMPSON CLIFTON N |
|||||
|
9/1/1993 |
|
Historical |
$0 |
EPIE KENNETH E SR |
SECRETARY OF VETERANS AFFAIRS |
|||||
|
6/5/1990 |
|
Historical |
$24,000 |
STILES BILLY C & JANNETTE |
EPIE KENNETH E SR |
|||||
| Last Mailed Notice of Value (N.O.V.) Information/History | ||||||||
|---|---|---|---|---|---|---|---|---|
| Year | Date | Market Value | Taxable Market Value | Gross Assessed | Exemption | Net Assessed | ||
|
2026 |
02/23/2026 |
89,000 |
87,150 |
9,586 |
0 |
9,586 |
||
|
2025 |
02/14/2025 |
83,000 |
83,000 |
9,130 |
0 |
9,130 |
||
|
2024 |
02/13/2024 |
83,000 |
76,072 |
8,367 |
0 |
8,367 |
||
|
2023 |
02/14/2023 |
81,000 |
72,450 |
7,969 |
0 |
7,969 |
||
|
2022 |
03/15/2022 |
69,000 |
69,000 |
7,590 |
0 |
7,590 |
||
| Property Building Permit History | ||||||
|---|---|---|---|---|---|---|
| Issued | Permit # | Provided by | Bldg # | Description | Est Construction Cost | Status |
|
4/1/1994 |
10255617 |
BETHANY |
1 |
Remodeled |
12,000 |
Inactive |
| Click button on building number to access detailed information: | ||||||
|---|---|---|---|---|---|---|
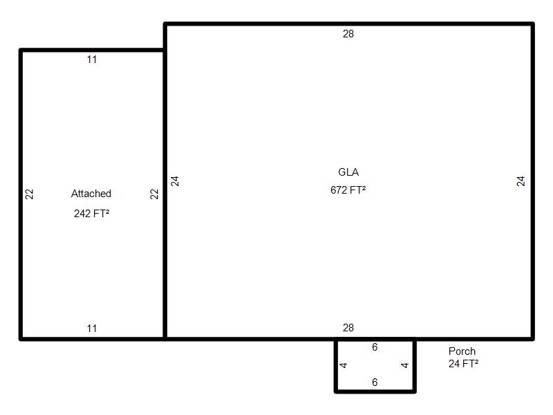
| Bldg # | Vacant/Improved Land | Bldg Description | Year Built | SqFt | # Stories | |
|
1 |
Improved |
Ranch 1 Story |
1950 |
672 |
1 Stories |
|