|
|
|
| Larry Stein Oklahoma County Assessor (405) 713-1200 - Public Access System |
|
|
|
|
|
|
| Real Property Display - Screen Produced 4/2/2026 11:42:27 AM | ||||
|---|---|---|---|---|
| Account: R140330100 | Type: Residential | Location: |
4701 NW 19TH ST |
|
| Building Name/Occupant: |
|
OKLAHOMA CITY |
||
| Owner Name 1: | SMIRNOV & YANG LLC |
Parcel PIN#: |
2905-14-033-0100 |
|
| Owner Name 2: | 1/4 section #: |
2905 |
||
| Owner Name 3: | Parent Acct: |
|
||
| Billing Address: | 6209 HARWICH MANOR ST | Tax District: |
|
|
| City, State, Zip | OKLAHOMA CITY, OK 73132 | School System: |
Putnam City #1 |
|
|
Country: (If noted) |
Land Size: |
0.5100 Acres |
||
|
Land Value: 28,050 |
|
|||
|
Sect 27-T12N-R4W Qtr NE |
HARLOW ACRES ADD
Block
000
Lot
001
|
|||
| Full Legal Description: HARLOW ACRES ADD 000 001 |
| Photo & Sketch (if available) | Comp Sales (ordered by relevancy) |
|
||||||||||||||||||
|
||||||||||||||||||||
| Value History (*The County Treasurer 405-713-1300 posts & collects actual tax amounts. Contact information HERE) | |||||||||||||
|---|---|---|---|---|---|---|---|---|---|---|---|---|---|
| Year | Market Value | Taxable Mkt Value | Gross Assessed | Exemption | Net Assessed | Millage | Est. Tax | Tax Savings | |||||
|
2026 |
269,500 |
243,768 |
26,813 |
0 |
26,813 |
123.17 |
$3,303 |
$349 |
|||||
|
2025 |
269,500 |
232,160 |
25,537 |
0 |
25,537 |
123.17 |
$3,145 |
$506 |
|||||
|
2024 |
271,500 |
221,105 |
24,321 |
0 |
24,321 |
122.30 |
$2,975 |
$678 |
|||||
|
2023 |
248,500 |
210,577 |
23,163 |
0 |
23,163 |
121.91 |
$2,824 |
$509 |
|||||
|
2022 |
225,500 |
200,550 |
22,060 |
0 |
22,060 |
123.41 |
$2,722 |
$339 |
|||||
| Property Account Status/Adjustments/Exemptions | ||||||
|---|---|---|---|---|---|---|
| Account # | Exemption Description | Amount | ||||
| No adjustment/exemption records returned. | ||||||
| Property Deed Transaction History (Recorded in the County Clerk's Office) | ||||||||||
|---|---|---|---|---|---|---|---|---|---|---|
| Date | Type | Book | Page | Price | Grantor | Grantee | ||||
|
3/25/2021 |
|
Hmstd Off & |
$0 |
ACCOMPLISHED CHALETS OF OKLAHOMA LLC |
SMIRNOV & YANG LLC |
|||||
|
12/30/2020 |
|
Deeds |
$195,000 |
CHAU MICHAEL |
ACCOMPLISHED CHALETS OF OKLAHOMA LLC |
|||||
|
8/9/2016 |
|
Deeds |
$60,000 |
NATIONSTAR MORTGAGE LLC |
CHAU MICHAEL |
|||||
|
7/26/2016 |
|
Other |
$0 |
SECRETARY OF HOUSING & URBAN DEV |
NATIONSTAR MORTGAGE LLC |
|||||
|
6/17/2015 |
|
Hmstd Off & |
$0 |
BUTLER TOM |
SECRETARY OF HOUSING & URBAN DEV |
|||||
| Last Mailed Notice of Value (N.O.V.) Information/History | ||||||||
|---|---|---|---|---|---|---|---|---|
| Year | Date | Market Value | Taxable Market Value | Gross Assessed | Exemption | Net Assessed | ||
|
2026 |
02/23/2026 |
269,500 |
243,768 |
26,813 |
0 |
26,813 |
||
|
2025 |
02/14/2025 |
269,500 |
232,160 |
25,537 |
0 |
25,537 |
||
|
2024 |
02/13/2024 |
271,500 |
221,105 |
24,321 |
0 |
24,321 |
||
|
2023 |
02/14/2023 |
248,500 |
210,577 |
23,163 |
0 |
23,163 |
||
|
2022 |
03/15/2022 |
225,500 |
200,550 |
22,060 |
0 |
22,060 |
||
| Property Building Permit History | ||||||
|---|---|---|---|---|---|---|
| Issued | Permit # | Provided by | Bldg # | Description | Est Construction Cost | Status |
|
12/30/2016 |
10489513 |
OKLAHOMA CITY |
1 |
Remodeled |
30,000 |
Inactive |
| Click button on building number to access detailed information: | ||||||
|---|---|---|---|---|---|---|
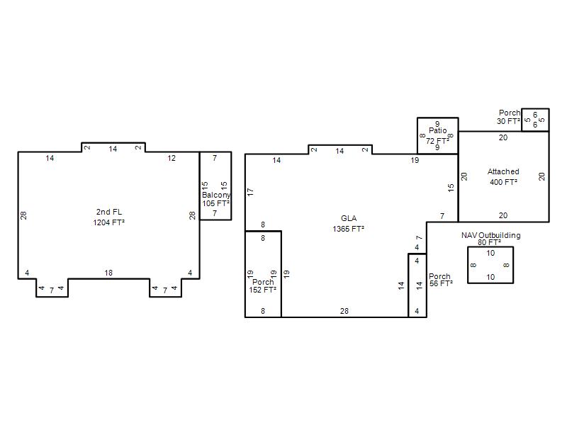
| Bldg # | Vacant/Improved Land | Bldg Description | Year Built | SqFt | # Stories | |
|
1 |
Improved |
2 Story |
1925 |
2,569 |
2 Stories |
|