|
|
|
| Larry Stein Oklahoma County Assessor (405) 713-1200 - Public Access System |
|
|
|
|
|
|
| Real Property Display - Screen Produced 4/4/2026 2:19:26 PM | ||||
|---|---|---|---|---|
| Account: R181922130 | Type: Residential | Location: |
1313 CEDAR VIEW RD |
|
| Building Name/Occupant: |
|
EDMOND |
||
| Owner Name 1: | MAYE ANNE MARIE & JOSEPH EDWARD |
Parcel PIN#: |
3601-18-192-2130 |
|
| Owner Name 2: | 1/4 section #: |
3601 |
||
| Owner Name 3: | Parent Acct: |
|
||
| Billing Address: | 1313 CEDAR VIEW | Tax District: |
|
|
| City, State, Zip | EDMOND, OK 73013-6022 | School System: |
Edmond #12 |
|
|
Country: (If noted) |
Land Size: |
0.1894 Acres |
||
|
Land Value: 37,950 |
|
|||
|
Sect 1-T13N-R3W Qtr NE |
CEDAR RIDGE
Block
007
Lot
017
|
|||
| Full Legal Description: CEDAR RIDGE 007 017 |
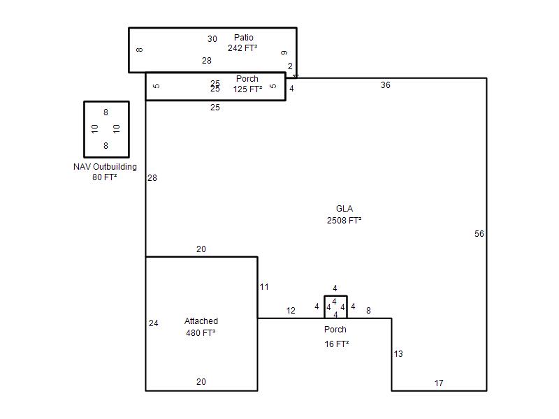
| Photo & Sketch (if available) | Comp Sales (ordered by relevancy) |
|
||||||||||||||||||
|
||||||||||||||||||||
| Value History (*The County Treasurer 405-713-1300 posts & collects actual tax amounts. Contact information HERE) | |||||||||||||
|---|---|---|---|---|---|---|---|---|---|---|---|---|---|
| Year | Market Value | Taxable Mkt Value | Gross Assessed | Exemption | Net Assessed | Millage | Est. Tax | Tax Savings | |||||
|
2026 |
302,500 |
256,992 |
28,269 |
0 |
28,269 |
105.16 |
$2,973 |
$526 |
|||||
|
2025 |
288,500 |
244,755 |
26,923 |
0 |
26,923 |
105.16 |
$2,831 |
$506 |
|||||
|
2024 |
283,000 |
233,100 |
25,641 |
0 |
25,641 |
105.03 |
$2,693 |
$577 |
|||||
|
2023 |
222,000 |
222,000 |
24,420 |
0 |
24,420 |
104.24 |
$2,546 |
$0 |
|||||
|
2022 |
224,500 |
213,333 |
23,466 |
0 |
23,466 |
104.64 |
$2,456 |
$129 |
|||||
| Property Account Status/Adjustments/Exemptions | ||
|---|---|---|
| Account # | Exemption Description | Amount |
|
R181922130 |
5% Capped Account |
0 |
| Property Deed Transaction History (Recorded in the County Clerk's Office) | ||||||||||
|---|---|---|---|---|---|---|---|---|---|---|
| Date | Type | Book | Page | Price | Grantor | Grantee | ||||
|
2/22/2022 |
|
Deeds |
$220,000 |
BRACKETT ROBERT E & CHARLOTTE A TRS |
MAYE ANNE MARIE & JOSEPH EDWARD |
|||||
|
10/11/2012 |
|
Deeds |
$0 |
BRACKETT ROBERT E & CHARLOTTE A TRS BRACKETT REV LIVING TRUS |
BRACKETT ROBERT E & CHARLOTTE A |
|||||
|
10/11/2012 |
|
Deeds |
$0 |
BRACKETT ROBERT E & CHARLOTTE A |
BRACKETT ROBERT E & CHARLOTTE A TRS |
|||||
|
10/15/2010 |
|
Deeds |
$0 |
BRACKETT ROBERT E & CHARLOTTE A TRS BRACKETT REV LIVING TRUS |
BRACKETT ROBERT E & CHARLOTTE A |
|||||
|
10/15/2010 |
|
Deeds |
$0 |
BRACKETT ROBERT E & CHARLOTTE A |
BRACKETT ROBERT E & CHARLOTTE A TRS BRACKETT REV LIVING TRUS |
|||||
| Last Mailed Notice of Value (N.O.V.) Information/History | ||||||||
|---|---|---|---|---|---|---|---|---|
| Year | Date | Market Value | Taxable Market Value | Gross Assessed | Exemption | Net Assessed | ||
|
2026 |
02/23/2026 |
302,500 |
256,992 |
28,269 |
0 |
28,269 |
||
|
2025 |
02/14/2025 |
288,500 |
244,755 |
26,923 |
0 |
26,923 |
||
|
2024 |
02/13/2024 |
283,000 |
233,100 |
25,641 |
0 |
25,641 |
||
|
2023 |
02/14/2023 |
222,000 |
222,000 |
24,420 |
0 |
24,420 |
||
|
2022 |
03/15/2022 |
224,500 |
213,333 |
23,466 |
0 |
23,466 |
||
| Property Building Permit History | |||||||||||
|---|---|---|---|---|---|---|---|---|---|---|---|
| Issued | Permit # | Provided by | Bldg # | Description | Est Construction Cost | Status | |||||
| No Building Permit records returned. | |||||||||||
| Click button on building number to access detailed information: | ||||||
|---|---|---|---|---|---|---|
| Bldg # | Vacant/Improved Land | Bldg Description | Year Built | SqFt | # Stories | |
|
1 |
Improved |
Ranch 1 Story |
1977 |
2,508 |
1 Stories |
|