|
|
|
| Larry Stein Oklahoma County Assessor (405) 713-1200 - Public Access System |
|
|
|
|
|
|
| Real Property Display - Screen Produced 4/5/2026 1:40:43 AM | ||||
|---|---|---|---|---|
| Account: R204771700 | Type: Residential | Location: |
16033 OKALEE LN |
|
| Building Name/Occupant: |
|
OKLAHOMA CITY |
||
| Owner Name 1: | CLOWERS STACEY LYNN |
Parcel PIN#: |
3621-20-477-1700 |
|
| Owner Name 2: | 1/4 section #: |
3621 |
||
| Owner Name 3: | Parent Acct: |
3621-14-053-3005 |
||
| Billing Address: | 16033 OKALEE LN | Tax District: |
|
|
| City, State, Zip | EDMOND, OK 73013-1475 | School System: |
Edmond #12 |
|
|
Country: (If noted) |
Land Size: |
0.1791 Acres |
||
|
Land Value: 36,270 |
|
|||
|
Sect 6-T13N-R3W Qtr NE |
SEMINOLE POINTE SEC 12
Block
056
Lot
002
|
|||
| Full Legal Description: SEMINOLE POINTE SEC 12 056 002 |
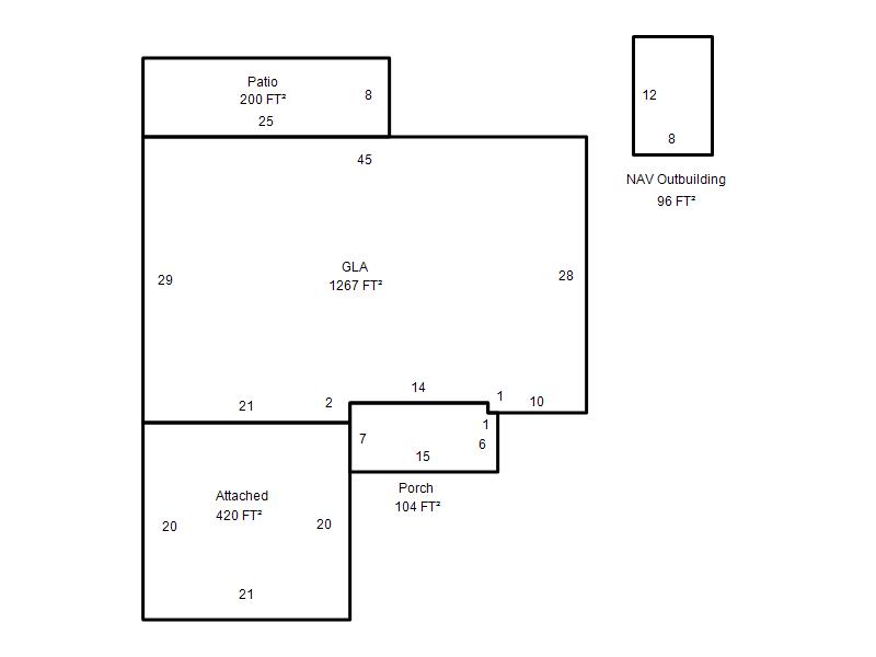
| Photo & Sketch (if available) | Comp Sales (ordered by relevancy) |
|
||||||||||||||||||
|
||||||||||||||||||||
| Value History (*The County Treasurer 405-713-1300 posts & collects actual tax amounts. Contact information HERE) | |||||||||||||
|---|---|---|---|---|---|---|---|---|---|---|---|---|---|
| Year | Market Value | Taxable Mkt Value | Gross Assessed | Exemption | Net Assessed | Millage | Est. Tax | Tax Savings | |||||
|
2026 |
225,500 |
225,500 |
24,805 |
0 |
24,805 |
120.32 |
$2,985 |
$0 |
|||||
|
2025 |
222,000 |
222,000 |
24,420 |
0 |
24,420 |
120.32 |
$2,938 |
$0 |
|||||
|
2024 |
218,500 |
160,946 |
17,703 |
1,000 |
16,703 |
119.96 |
$2,004 |
$879 |
|||||
|
2023 |
206,000 |
156,259 |
17,187 |
1,000 |
16,187 |
119.02 |
$1,927 |
$770 |
|||||
|
2022 |
187,500 |
151,708 |
16,687 |
1,000 |
15,687 |
120.10 |
$1,884 |
$593 |
|||||
| Property Account Status/Adjustments/Exemptions | ||
|---|---|---|
| Account # | Exemption Description | Amount |
|
R204771700 |
5% Capped Account |
0 |
| Property Deed Transaction History (Recorded in the County Clerk's Office) | |||||||
|---|---|---|---|---|---|---|---|
| Date | Type | Book | Page | Price | Grantor | Grantee | |
|
3/15/2024 |
|
Deeds |
$225,000 |
RAINES RACHEL |
CLOWERS STACEY LYNN |
||
|
11/8/2013 |
|
Deeds |
$141,000 |
HACKBARTH JUSTIN W & SARAH LYNDELL |
RAINES RACHEL |
||
|
3/30/2006 |
|
Hmstd Off & |
$0 |
VERO INVESTMENT LLC |
IDEAL HOMES OF NORMAN LP |
||
|
3/30/2006 |
|
Deeds |
$138,000 |
IDEAL HOMES OF NORMAN LP |
HACKBARTH JUSTIN W & SARAH LYNDELL |
||
|
10/24/2005 |
|
Deeds |
$24,000 |
VERO INVESTMENTS INC |
IDEAL HOMES OF NORMAN LP |
||
| Last Mailed Notice of Value (N.O.V.) Information/History | ||||||||
|---|---|---|---|---|---|---|---|---|
| Year | Date | Market Value | Taxable Market Value | Gross Assessed | Exemption | Net Assessed | ||
|
2026 |
02/23/2026 |
225,500 |
225,500 |
24,805 |
0 |
24,805 |
||
|
2025 |
02/14/2025 |
222,000 |
222,000 |
24,420 |
0 |
24,420 |
||
|
2024 |
02/13/2024 |
218,500 |
160,946 |
17,703 |
1,000 |
16,703 |
||
|
2024 |
04/05/2024 |
218,500 |
160,946 |
17,703 |
1,000 |
16,703 |
||
|
2023 |
02/14/2023 |
206,000 |
156,259 |
17,187 |
1,000 |
16,187 |
||
| Property Building Permit History | ||||||
|---|---|---|---|---|---|---|
| Issued | Permit # | Provided by | Bldg # | Description | Est Construction Cost | Status |
|
10/13/2005 |
10313242 |
OKLAHOMA CITY |
1 |
Main Dwellin |
70,000 |
Inactive |
| Click button on building number to access detailed information: | ||||||
|---|---|---|---|---|---|---|
| Bldg # | Vacant/Improved Land | Bldg Description | Year Built | SqFt | # Stories | |
|
1 |
Improved |
Ranch 1 Story |
2005 |
1,267 |
1 Stories |
|