|
|
|
| Larry Stein Oklahoma County Assessor (405) 713-1200 - Public Access System |
|
|
|
|
|
|
| Real Property Display - Screen Produced 4/2/2026 7:00:26 AM | ||||
|---|---|---|---|---|
| Account: R087344415 | Type: Residential | Location: |
9099 N WELLINGTON AVE |
|
| Building Name/Occupant: |
|
OKLAHOMA CITY |
||
| Owner Name 1: | TOKARZ DANIEL J II |
Parcel PIN#: |
3724-08-734-4415 |
|
| Owner Name 2: | ARMITAGE VIVIAN BROOKS | 1/4 section #: |
3724 |
|
| Owner Name 3: | Parent Acct: |
|
||
| Billing Address: | 9099 N WELLINGTON AVE | Tax District: |
|
|
| City, State, Zip | OKLAHOMA CITY, OK 73120 | School System: |
Oklahoma City #89 |
|
|
Country: (If noted) |
Land Size: |
0.4022 Acres |
||
|
Land Value: 54,312 |
|
|||
|
Sect 31-T13N-R3W Qtr NW |
NICHOLS HILLS SUBURBAN TR
Block
110
Lot
000
|
|||
| Full Legal Description: NICHOLS HILLS SUBURBAN TR 110 000 E 1/2 LOT 13 |
| Photo & Sketch (if available) | Comp Sales (ordered by relevancy) |
|
||||||||||||||||||
|
||||||||||||||||||||
| Value History (*The County Treasurer 405-713-1300 posts & collects actual tax amounts. Contact information HERE) | |||||||||||||
|---|---|---|---|---|---|---|---|---|---|---|---|---|---|
| Year | Market Value | Taxable Mkt Value | Gross Assessed | Exemption | Net Assessed | Millage | Est. Tax | Tax Savings | |||||
|
2026 |
341,000 |
271,268 |
29,839 |
1,000 |
28,839 |
122.90 |
$3,544 |
$1,066 |
|||||
|
2025 |
337,500 |
263,367 |
28,969 |
1,000 |
27,969 |
122.90 |
$3,438 |
$1,125 |
|||||
|
2024 |
332,500 |
255,697 |
28,126 |
1,000 |
27,126 |
123.89 |
$3,361 |
$1,171 |
|||||
|
2023 |
401,500 |
248,250 |
27,307 |
1,000 |
26,307 |
122.82 |
$3,231 |
$2,193 |
|||||
|
2022 |
333,500 |
241,020 |
26,512 |
1,000 |
25,512 |
117.63 |
$3,001 |
$1,314 |
|||||
| Property Account Status/Adjustments/Exemptions | ||
|---|---|---|
| Account # | Exemption Description | Amount |
|
R087344415 |
3% Cap Homestead |
0 |
|
R087344415 |
Homestead |
1,000 |
| Property Deed Transaction History (Recorded in the County Clerk's Office) | ||||||||||
|---|---|---|---|---|---|---|---|---|---|---|
| Date | Type | Book | Page | Price | Grantor | Grantee | ||||
|
8/21/2020 |
|
Deeds |
$225,000 |
YAGER JAN & TAMMY TRS |
TOKARZ DANIEL J II |
|||||
|
1/22/2018 |
|
Deeds |
$0 |
YAGER JAN & TAMMY |
YAGER JAN & TAMMY TRS |
|||||
|
1/21/2009 |
|
Other |
$0 |
FEDERAL HOME LOAN MTG CORP |
YAGER JAN & TAMMY |
|||||
|
12/8/2008 |
|
Hmstd Off & |
$0 |
HUNT TEDDY RAY & ANNE A |
FEDERAL HOME LOAN MTG CORP |
|||||
|
10/1/1986 |
|
Historical |
$54,500 |
PULLIAM PRESTON L & GWENN L |
HUNT TEDDY RAY & ANNE A |
|||||
| Last Mailed Notice of Value (N.O.V.) Information/History | ||||||||
|---|---|---|---|---|---|---|---|---|
| Year | Date | Market Value | Taxable Market Value | Gross Assessed | Exemption | Net Assessed | ||
|
2026 |
02/23/2026 |
341,000 |
271,268 |
29,839 |
1,000 |
28,839 |
||
|
2025 |
02/14/2025 |
337,500 |
263,367 |
28,969 |
1,000 |
27,969 |
||
|
2024 |
02/13/2024 |
332,500 |
255,697 |
28,126 |
1,000 |
27,126 |
||
|
2023 |
02/14/2023 |
401,500 |
248,250 |
27,307 |
1,000 |
26,307 |
||
|
2022 |
03/15/2022 |
333,500 |
241,020 |
26,512 |
1,000 |
25,512 |
||
| Property Building Permit History | |||||||||||
|---|---|---|---|---|---|---|---|---|---|---|---|
| Issued | Permit # | Provided by | Bldg # | Description | Est Construction Cost | Status | |||||
| No Building Permit records returned. | |||||||||||
| Click button on building number to access detailed information: | ||||||
|---|---|---|---|---|---|---|
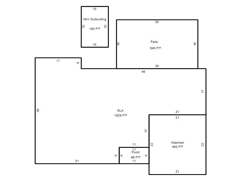
| Bldg # | Vacant/Improved Land | Bldg Description | Year Built | SqFt | # Stories | |
|
1 |
Improved |
Ranch 1 Story |
1955 |
1,829 |
1 Stories |
|