|
|
|
| Larry Stein Oklahoma County Assessor (405) 713-1200 - Public Access System |
|
|
|
|
|
|
| Real Property Display - Screen Produced 3/31/2026 10:04:37 PM | ||||
|---|---|---|---|---|
| Account: R179521250 | Type: Residential | Location: |
2116 CARLISLE RD |
|
| Building Name/Occupant: |
|
VILLAGE |
||
| Owner Name 1: | MAP HOME LLC |
Parcel PIN#: |
3724-17-952-1250 |
|
| Owner Name 2: | 1/4 section #: |
3724 |
||
| Owner Name 3: | Parent Acct: |
|
||
| Billing Address: | 4900 N PORTLAND AVE, Unit 141 | Tax District: |
|
|
| City, State, Zip | OKLAHOMA CITY, OK 73112 | School System: |
Oklahoma City #89 |
|
|
Country: (If noted) |
Land Size: |
0.1316 Acres |
||
|
Land Value: 23,505 |
|
|||
|
Sect 31-T13N-R3W Qtr NW |
VILLAGE REPLAT ADD
Block
138
Lot
005
|
|||
| Full Legal Description: VILLAGE REPLAT ADD 138 005 |
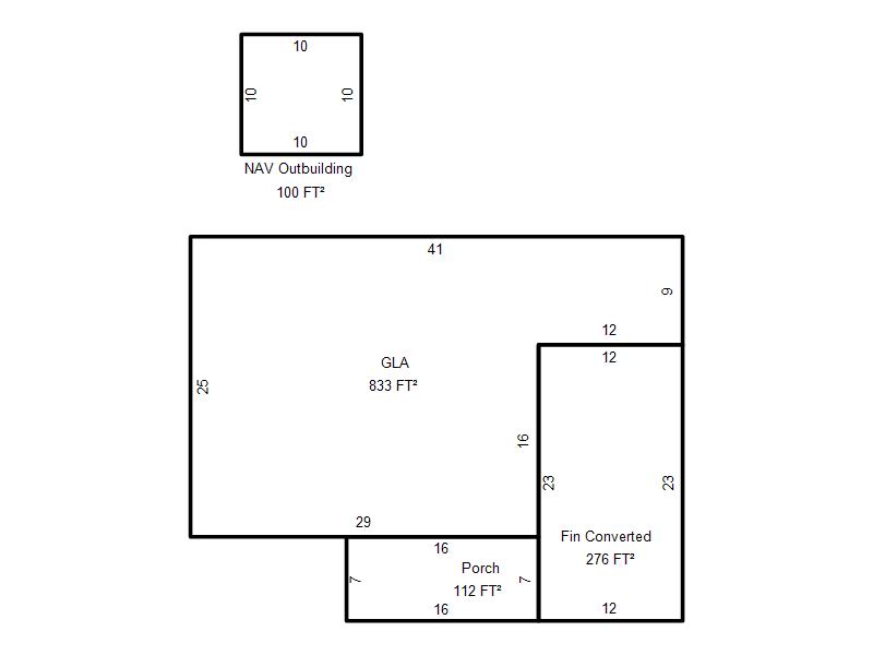
| Photo & Sketch (if available) | Comp Sales (ordered by relevancy) |
|
||||||||||||||||||
|
||||||||||||||||||||
| Value History (*The County Treasurer 405-713-1300 posts & collects actual tax amounts. Contact information HERE) | |||||||||||||
|---|---|---|---|---|---|---|---|---|---|---|---|---|---|
| Year | Market Value | Taxable Mkt Value | Gross Assessed | Exemption | Net Assessed | Millage | Est. Tax | Tax Savings | |||||
|
2026 |
138,000 |
138,000 |
15,180 |
0 |
15,180 |
122.45 |
$1,859 |
$0 |
|||||
|
2025 |
137,000 |
135,607 |
14,916 |
0 |
14,916 |
122.45 |
$1,827 |
$19 |
|||||
|
2024 |
129,500 |
129,150 |
14,206 |
0 |
14,206 |
124.97 |
$1,775 |
$5 |
|||||
|
2023 |
123,000 |
123,000 |
13,530 |
0 |
13,530 |
120.11 |
$1,625 |
$0 |
|||||
|
2022 |
133,500 |
133,500 |
14,685 |
0 |
14,685 |
115.25 |
$1,692 |
$0 |
|||||
| Property Account Status/Adjustments/Exemptions | ||
|---|---|---|
| Account # | Exemption Description | Amount |
|
R179521250 |
5% Capped Account |
0 |
| Property Deed Transaction History (Recorded in the County Clerk's Office) | |||||||
|---|---|---|---|---|---|---|---|
| Date | Type | Book | Page | Price | Grantor | Grantee | |
|
12/22/2021 |
|
Deeds |
$135,000 |
STERKEL KELLIE R |
MAP HOME LLC |
||
|
5/31/2001 |
|
Deeds |
$48,500 |
BROWN SHERRY L & RONNIE L |
STERKEL KELLIE R |
||
|
7/29/1996 |
|
Historical |
$25,000 |
ROBERTSON EDRIE L |
BROWN SHERRY L & RONNIE L |
||
|
5/9/1996 |
|
Historical |
$0 |
ROBERTSON JOHN F & E |
ROBERTSON EDRIE L |
||
|
11/11/1911 |
|
Historical |
$0 |
|
ROBERTSON JOHN F & E |
||
| Last Mailed Notice of Value (N.O.V.) Information/History | ||||||||
|---|---|---|---|---|---|---|---|---|
| Year | Date | Market Value | Taxable Market Value | Gross Assessed | Exemption | Net Assessed | ||
|
2026 |
02/23/2026 |
138,000 |
138,000 |
15,180 |
0 |
15,180 |
||
|
2025 |
02/14/2025 |
137,000 |
135,607 |
14,916 |
0 |
14,916 |
||
|
2024 |
02/13/2024 |
129,500 |
129,150 |
14,206 |
0 |
14,206 |
||
|
2022 |
03/15/2022 |
133,500 |
133,500 |
14,685 |
0 |
14,685 |
||
|
2021 |
03/19/2021 |
94,000 |
81,954 |
9,014 |
1,000 |
8,014 |
||
| Property Building Permit History | |||||||||||
|---|---|---|---|---|---|---|---|---|---|---|---|
| Issued | Permit # | Provided by | Bldg # | Description | Est Construction Cost | Status | |||||
| No Building Permit records returned. | |||||||||||
| Click button on building number to access detailed information: | ||||||
|---|---|---|---|---|---|---|
| Bldg # | Vacant/Improved Land | Bldg Description | Year Built | SqFt | # Stories | |
|
1 |
Improved |
Ranch 1 Story |
1950 |
833 |
1 Stories |
|