|
|
|
| Larry Stein Oklahoma County Assessor (405) 713-1200 - Public Access System |
|
|
|
|
|
|
| Real Property Display - Screen Produced 4/1/2026 3:36:17 PM | ||||
|---|---|---|---|---|
| Account: R180080945 | Type: Residential | Location: |
8006 MEAGHAN LEIGH DR |
|
| Building Name/Occupant: |
|
EDMOND |
||
| Owner Name 1: | WOOD ERVIN |
Parcel PIN#: |
4441-18-008-0945 |
|
| Owner Name 2: | WOOD SUSAN | 1/4 section #: |
4441 |
|
| Owner Name 3: | Parent Acct: |
4441-18-008-1048 |
||
| Billing Address: | 8006 MEAGHAN LEIGH DR | Tax District: |
|
|
| City, State, Zip | EDMOND, OK 73034 | School System: |
Edmond #12 |
|
|
Country: (If noted) |
Land Size: |
2.2500 Acres |
||
|
Land Value: 108,675 |
|
|||
|
Sect 11-T14N-R2W Qtr NE |
UNPLTD PT SEC 11 14N 2W
Block
000
Lot
000
|
|||
| Full Legal Description: UNPLTD PT SEC 11 14N 2W 000 000 PT NE4 SEC 11 14N 2W BEG 2618FT S & 837.54FT E OF NW/C NE4 TH N346.74FT E282.02FT S349.76FT W282.07FT TO BEG CONT 2.25ACRS MORE OR LESS AKA LT 25 PHEASANT POINTE UNREC |
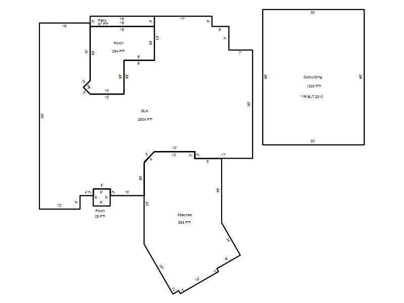
| Photo & Sketch (if available) | Comp Sales (ordered by relevancy) |
|
||||||||||||||||||
|
||||||||||||||||||||
| Value History (*The County Treasurer 405-713-1300 posts & collects actual tax amounts. Contact information HERE) | |||||||||||||
|---|---|---|---|---|---|---|---|---|---|---|---|---|---|
| Year | Market Value | Taxable Mkt Value | Gross Assessed | Exemption | Net Assessed | Millage | Est. Tax | Tax Savings | |||||
|
2026 |
622,500 |
547,865 |
60,264 |
60,264 |
0 |
105.16 |
$0 |
$7,201 |
|||||
|
2025 |
611,000 |
531,908 |
58,509 |
58,509 |
0 |
105.16 |
$0 |
$7,068 |
|||||
|
2024 |
602,000 |
516,416 |
56,805 |
56,805 |
0 |
105.03 |
$0 |
$6,955 |
|||||
|
2023 |
568,000 |
501,375 |
55,151 |
0 |
55,151 |
104.24 |
$5,749 |
$764 |
|||||
|
2022 |
477,500 |
477,500 |
52,525 |
0 |
52,525 |
104.64 |
$5,496 |
$0 |
|||||
| Property Account Status/Adjustments/Exemptions | ||
|---|---|---|
| Account # | Exemption Description | Amount |
|
R180080945 |
100% DAV Exemption |
100 |
|
R180080945 |
DAV Homestead |
0 |
|
R180080945 |
3% Cap Homestead |
0 |
| Property Deed Transaction History (Recorded in the County Clerk's Office) | ||||||||||
|---|---|---|---|---|---|---|---|---|---|---|
| Date | Type | Book | Page | Price | Grantor | Grantee | ||||
|
2/26/2021 |
|
Deeds |
$455,000 |
FEDERAL NATIONAL MORTGAGE ASSOCIATION |
WOOD ERVIN |
|||||
|
2/11/2020 |
|
Other |
$0 |
BATES WILLIAM B & TARAH D |
FEDERAL NATIONAL MORTGAGE ASSOCIATION |
|||||
|
12/2/2014 |
|
Deeds |
$380,000 |
STAPLETON MATTHEW & KATHERINE |
BATES WILLIAM B & TARAH D |
|||||
|
8/1/2008 |
|
Deeds |
$0 |
STAPLETON MATT |
STAPLETON MATTHEW & KATHERINE |
|||||
|
8/6/2007 |
|
Other |
$0 |
SHERIFFS DEED |
STAPLETON MATT |
|||||
| Last Mailed Notice of Value (N.O.V.) Information/History | ||||||||
|---|---|---|---|---|---|---|---|---|
| Year | Date | Market Value | Taxable Market Value | Gross Assessed | Exemption | Net Assessed | ||
|
2026 |
02/06/2026 |
622,500 |
547,865 |
60,264 |
60,264 |
0 |
||
|
2025 |
01/31/2025 |
611,000 |
531,908 |
58,509 |
58,509 |
0 |
||
|
2024 |
01/22/2024 |
602,000 |
526,443 |
57,908 |
0 |
57,908 |
||
|
2023 |
01/23/2023 |
568,000 |
501,375 |
55,151 |
0 |
55,151 |
||
|
2022 |
02/22/2022 |
477,500 |
477,500 |
52,525 |
0 |
52,525 |
||
| Property Building Permit History | ||||||
|---|---|---|---|---|---|---|
| Issued | Permit # | Provided by | Bldg # | Description | Est Construction Cost | Status |
|
4/15/2013 |
10451672 |
EDMOND |
1 |
Swimming Pool |
45,900 |
Inactive |
|
5/1/2010 |
10406225 |
EDMOND |
1 |
Storage Buil |
25,000 |
Inactive |
|
1/31/2005 |
10302502 |
EDMOND |
1 |
Main Dwellin |
250,000 |
Inactive |
| Click button on building number to access detailed information: | ||||||
|---|---|---|---|---|---|---|
| Bldg # | Vacant/Improved Land | Bldg Description | Year Built | SqFt | # Stories | |
|
1 |
Improved |
Ranch 1 Story |
2005 |
2,534 |
1 Stories |
|