|
|
|
| Larry Stein Oklahoma County Assessor (405) 713-1200 - Public Access System |
|
|
|
|
|
|
| Real Property Display - Screen Produced 4/4/2026 3:35:03 AM | ||||
|---|---|---|---|---|
| Account: R182061920 | Type: Residential | Location: |
613 PARKHURST TER |
|
| Building Name/Occupant: |
|
EDMOND |
||
| Owner Name 1: | INVISION EQUITY ASSETS LLC |
Parcel PIN#: |
4704-18-206-1920 |
|
| Owner Name 2: | 1/4 section #: |
4704 |
||
| Owner Name 3: | Parent Acct: |
|
||
| Billing Address: | 613 PARKHURST TER | Tax District: |
|
|
| City, State, Zip | EDMOND, OK 73003-5051 | School System: |
Edmond #12 |
|
|
Country: (If noted) |
Land Size: |
0.1515 Acres |
||
|
Land Value: 25,080 |
|
|||
|
Sect 26-T14N-R3W Qtr NW |
MEADOW LAKES SEC 4
Block
015
Lot
010
|
|||
| Full Legal Description: MEADOW LAKES SEC 4 015 010 |
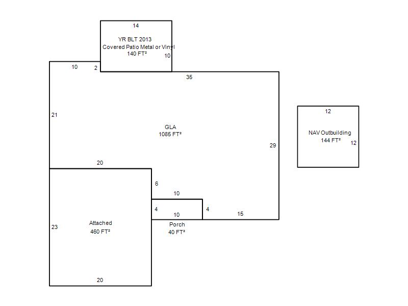
| Photo & Sketch (if available) | Comp Sales (ordered by relevancy) |
|
||||||||||||||||||
|
||||||||||||||||||||
| Value History (*The County Treasurer 405-713-1300 posts & collects actual tax amounts. Contact information HERE) | |||||||||||||
|---|---|---|---|---|---|---|---|---|---|---|---|---|---|
| Year | Market Value | Taxable Mkt Value | Gross Assessed | Exemption | Net Assessed | Millage | Est. Tax | Tax Savings | |||||
|
2026 |
180,000 |
180,000 |
19,800 |
0 |
19,800 |
105.16 |
$2,082 |
$0 |
|||||
|
2025 |
177,500 |
177,500 |
19,525 |
0 |
19,525 |
105.16 |
$2,053 |
$0 |
|||||
|
2024 |
173,500 |
173,500 |
19,085 |
0 |
19,085 |
105.03 |
$2,004 |
$0 |
|||||
|
2023 |
163,500 |
122,881 |
13,516 |
1,000 |
12,516 |
104.24 |
$1,305 |
$570 |
|||||
|
2022 |
143,500 |
119,302 |
13,123 |
1,000 |
12,123 |
104.64 |
$1,269 |
$383 |
|||||
| Property Account Status/Adjustments/Exemptions | ||
|---|---|---|
| Account # | Exemption Description | Amount |
|
R182061920 |
5% Capped Account |
0 |
| Property Deed Transaction History (Recorded in the County Clerk's Office) | ||||||||||
|---|---|---|---|---|---|---|---|---|---|---|
| Date | Type | Book | Page | Price | Grantor | Grantee | ||||
|
5/12/2023 |
|
Deeds |
$170,000 |
MARTIN TERI RENEE |
BRANCH TIMOTHY |
|||||
|
5/12/2023 |
|
Hmstd Off & |
$0 |
BRANCH TIMOTHY |
INVISION EQUITY ASSETS LLC |
|||||
|
8/26/2016 |
|
Deeds |
$0 |
MARTIN TERI HOOKS |
MARTIN TERI RENEE |
|||||
|
4/30/2007 |
|
Deeds |
$94,000 |
OFFUTT HOLLIS DEAN |
MARTIN TERI HOOKS |
|||||
|
1/2/2002 |
|
Deeds |
$0 |
OFFUTT HOLLIS & CHRISTINA |
OFFUTT HOLLIS DEAN |
|||||
| Last Mailed Notice of Value (N.O.V.) Information/History | ||||||||
|---|---|---|---|---|---|---|---|---|
| Year | Date | Market Value | Taxable Market Value | Gross Assessed | Exemption | Net Assessed | ||
|
2026 |
02/06/2026 |
180,000 |
180,000 |
19,800 |
0 |
19,800 |
||
|
2025 |
01/31/2025 |
177,500 |
177,500 |
19,525 |
0 |
19,525 |
||
|
2024 |
01/22/2024 |
173,500 |
173,500 |
19,085 |
0 |
19,085 |
||
|
2023 |
01/23/2023 |
163,500 |
122,881 |
13,516 |
1,000 |
12,516 |
||
|
2022 |
02/22/2022 |
143,500 |
119,302 |
13,123 |
1,000 |
12,123 |
||
| Property Building Permit History | |||||||||||
|---|---|---|---|---|---|---|---|---|---|---|---|
| Issued | Permit # | Provided by | Bldg # | Description | Est Construction Cost | Status | |||||
| No Building Permit records returned. | |||||||||||
| Click button on building number to access detailed information: | ||||||
|---|---|---|---|---|---|---|
| Bldg # | Vacant/Improved Land | Bldg Description | Year Built | SqFt | # Stories | |
|
1 |
Improved |
Ranch 1 Story |
1975 |
1,085 |
1 Stories |
|