|
|
|
| Larry Stein Oklahoma County Assessor (405) 713-1200 - Public Access System |
|
|
|
|
|
|
| Real Property Display - Screen Produced 4/2/2026 1:50:42 AM | ||||
|---|---|---|---|---|
| Account: R124011000 | Type: Residential | Location: |
512 W 10TH ST |
|
| Building Name/Occupant: |
|
EDMOND |
||
| Owner Name 1: | AB PROPERTY INVESTMENTS LLC |
Parcel PIN#: |
4739-12-401-1000 |
|
| Owner Name 2: | 1/4 section #: |
4739 |
||
| Owner Name 3: | Parent Acct: |
|
||
| Billing Address: | 2208 REVEILLE RD | Tax District: |
|
|
| City, State, Zip | EDMOND, OK 73013 | School System: |
Edmond #12 |
|
|
Country: (If noted) |
Land Size: |
0.1389 Acres |
||
|
Land Value: 26,620 |
|
|||
|
Sect 35-T14N-R3W Qtr SW |
APPLE VILLAGE TO EDMOND
Block
001
Lot
001
|
|||
| Full Legal Description: APPLE VILLAGE TO EDMOND 001 001 |
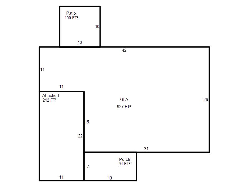
| Photo & Sketch (if available) | Comp Sales (ordered by relevancy) |
|
||||||||||||||||||
|
||||||||||||||||||||
| Value History (*The County Treasurer 405-713-1300 posts & collects actual tax amounts. Contact information HERE) | |||||||||||||
|---|---|---|---|---|---|---|---|---|---|---|---|---|---|
| Year | Market Value | Taxable Mkt Value | Gross Assessed | Exemption | Net Assessed | Millage | Est. Tax | Tax Savings | |||||
|
2026 |
169,000 |
165,539 |
18,209 |
0 |
18,209 |
105.16 |
$1,915 |
$40 |
|||||
|
2025 |
170,000 |
157,657 |
17,341 |
0 |
17,341 |
105.16 |
$1,824 |
$143 |
|||||
|
2024 |
162,500 |
150,150 |
16,516 |
0 |
16,516 |
105.03 |
$1,735 |
$143 |
|||||
|
2023 |
143,000 |
143,000 |
15,730 |
0 |
15,730 |
104.24 |
$1,640 |
$0 |
|||||
|
2022 |
145,000 |
145,000 |
15,950 |
0 |
15,950 |
104.64 |
$1,669 |
$0 |
|||||
| Property Account Status/Adjustments/Exemptions | ||||||
|---|---|---|---|---|---|---|
| Account # | Exemption Description | Amount | ||||
| No adjustment/exemption records returned. | ||||||
| Property Deed Transaction History (Recorded in the County Clerk's Office) | |||||||
|---|---|---|---|---|---|---|---|
| Date | Type | Book | Page | Price | Grantor | Grantee | |
|
12/30/2020 |
|
Deeds |
$145,000 |
BROWN RONALD R |
AB PROPERTY INVESTMENTS LLC |
||
|
7/10/2006 |
|
Hmstd Off & |
$0 |
JOHNSON PAUL E & LORA C TRS JOHNSON PAUL E & LORA C REV LIV |
BROWN RONALD R |
||
|
9/2/1997 |
|
Historical |
$0 |
JOHNSON PAUL E & LORA C |
JOHNSON PAUL E & LORA C TRS |
||
|
11/9/1987 |
|
Historical |
$0 |
JOHNSON PAUL E & LORA C |
JOHNSON PAUL E & LORA C |
||
|
7/1/1984 |
|
Historical |
$0 |
|
JOHNSON PAUL E & LORA C |
||
| Last Mailed Notice of Value (N.O.V.) Information/History | ||||||||
|---|---|---|---|---|---|---|---|---|
| Year | Date | Market Value | Taxable Market Value | Gross Assessed | Exemption | Net Assessed | ||
|
2026 |
02/06/2026 |
169,000 |
165,539 |
18,209 |
0 |
18,209 |
||
|
2025 |
01/31/2025 |
170,000 |
157,657 |
17,341 |
0 |
17,341 |
||
|
2024 |
01/22/2024 |
162,500 |
150,150 |
16,516 |
0 |
16,516 |
||
|
2023 |
01/23/2023 |
143,000 |
143,000 |
15,730 |
0 |
15,730 |
||
|
2021 |
02/24/2021 |
145,000 |
145,000 |
15,950 |
0 |
15,950 |
||
| Property Building Permit History | |||||||||||
|---|---|---|---|---|---|---|---|---|---|---|---|
| Issued | Permit # | Provided by | Bldg # | Description | Est Construction Cost | Status | |||||
| No Building Permit records returned. | |||||||||||
| Click button on building number to access detailed information: | ||||||
|---|---|---|---|---|---|---|
| Bldg # | Vacant/Improved Land | Bldg Description | Year Built | SqFt | # Stories | |
|
1 |
Improved |
Ranch 1 Story |
1985 |
927 |
1 Stories |
|