|
|
|
| Larry Stein Oklahoma County Assessor (405) 713-1200 - Public Access System |
|
|
|
|
|
|
| Real Property Display - Screen Produced 4/4/2026 2:02:11 PM | ||||
|---|---|---|---|---|
| Account: R218801400 | Type: Residential | Location: |
17609 BOLING FARM RD |
|
| Building Name/Occupant: |
|
OKLAHOMA CITY |
||
| Owner Name 1: | SUZ INVESTMENTS LLC |
Parcel PIN#: |
4937-21-880-1400 |
|
| Owner Name 2: | 1/4 section #: |
4937 |
||
| Owner Name 3: | Parent Acct: |
4937-13-335-3010 |
||
| Billing Address: | 17609 BOLING FARM RD | Tax District: |
|
|
| City, State, Zip | EDMOND, OK 73012 | School System: |
Deer Creek #6 |
|
|
Country: (If noted) |
Land Size: |
0.1510 Acres |
||
|
Land Value: 52,632 |
|
|||
|
Sect 35-T14N-R4W Qtr NE |
KNOX FARM SEC 1
Block
004
Lot
005
|
|||
| Full Legal Description: KNOX FARM SEC 1 BLK 004 LOT 005 |
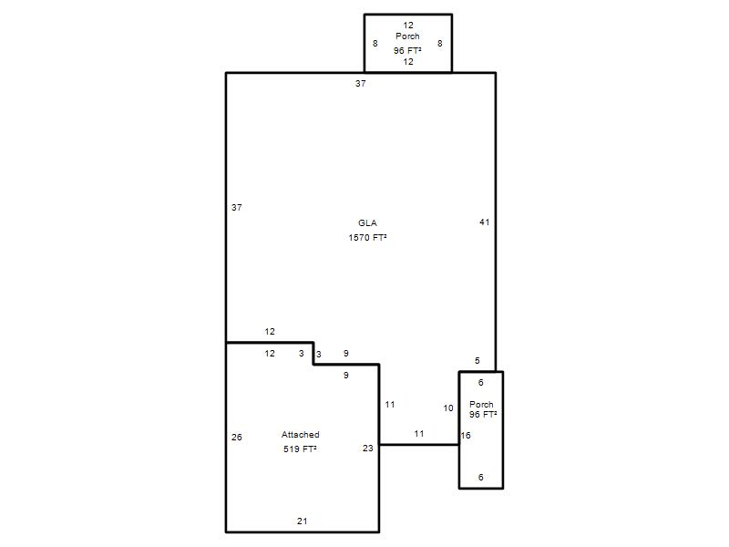
| Photo & Sketch (if available) | Comp Sales (ordered by relevancy) |
|
||||||||||||||||||
|
||||||||||||||||||||
| Value History (*The County Treasurer 405-713-1300 posts & collects actual tax amounts. Contact information HERE) | ||||||||
|---|---|---|---|---|---|---|---|---|
| Year | Market Value | Taxable Mkt Value | Gross Assessed | Exemption | Net Assessed | Millage | Est. Tax | Tax Savings |
|
2026 |
326,000 |
326,000 |
35,860 |
0 |
35,860 |
129.51 |
$4,644 |
$0 |
|
2025 |
323,500 |
323,500 |
35,585 |
0 |
35,585 |
129.51 |
$4,609 |
$0 |
|
2024 |
321,500 |
321,500 |
35,365 |
0 |
35,365 |
131.12 |
$4,637 |
$0 |
|
2023 |
8,988 |
8,988 |
988 |
0 |
988 |
131.55 |
$130 |
$0 |
| Property Account Status/Adjustments/Exemptions | ||
|---|---|---|
| Account # | Exemption Description | Amount |
|
R218801400 |
5% Capped Account |
0 |
| Property Deed Transaction History (Recorded in the County Clerk's Office) | |||||||
|---|---|---|---|---|---|---|---|
| Date | Type | Book | Page | Price | Grantor | Grantee | |
|
5/31/2023 |
|
Deeds |
$220,000 |
IDEAL HOMES OF NORMAN LP |
SUZ INVESTMENTS LLC |
||
|
10/6/2022 |
|
Deeds |
$46,500 |
IH DEVELOPMENT LLC |
IDEAL HOMES OF NORMAN LP |
||
|
4/27/2021 |
|
Hmstd Off & |
$0 |
KNOX FARM LAND FUND LLC |
IH DEVELOPMENT LLC |
||
| Last Mailed Notice of Value (N.O.V.) Information/History | ||||||
|---|---|---|---|---|---|---|
| Year | Date | Market Value | Taxable Market Value | Gross Assessed | Exemption | Net Assessed |
|
2026 |
02/06/2026 |
326,000 |
326,000 |
35,860 |
0 |
35,860 |
|
2025 |
01/31/2025 |
323,500 |
323,500 |
35,585 |
0 |
35,585 |
|
2024 |
01/22/2024 |
321,500 |
321,500 |
35,365 |
0 |
35,365 |
|
2023 |
03/02/2023 |
8,988 |
8,988 |
988 |
0 |
988 |
| Property Building Permit History | ||||||
|---|---|---|---|---|---|---|
| Issued | Permit # | Provided by | Bldg # | Description | Est Construction Cost | Status |
|
10/4/2022 |
BLDR-2022-06076 |
|
1 |
Main Dwellin |
175,000 |
Inactive |
| Click button on building number to access detailed information: | ||||||
|---|---|---|---|---|---|---|
| Bldg # | Vacant/Improved Land | Bldg Description | Year Built | SqFt | # Stories | |
|
1 |
Improved |
Ranch 1 Story |
2022 |
1,570 |
1 Stories |
|