|
|
|
| Larry Stein Oklahoma County Assessor (405) 713-1200 - Public Access System |
|
|
|
|
|
|
| Real Property Display - Screen Produced 4/6/2026 5:52:53 PM | ||||
|---|---|---|---|---|
| Account: R144055065 | Type: Residential | Location: |
3725 S CHOCTAW RD |
|
| Building Name/Occupant: |
|
OKLAHOMA CITY |
||
| Owner Name 1: | ANDERSON JAMES & AGNES FAMILY TRUST |
Parcel PIN#: |
1254-14-405-5065 |
|
| Owner Name 2: | 1/4 section #: |
1254 |
||
| Owner Name 3: | Parent Acct: |
1254-14-405-5000 |
||
| Billing Address: | 3725 S CHOCTAW RD | Tax District: |
|
|
| City, State, Zip | CHOCTAW, OK 73020-6026 | School System: |
Choctaw #4 |
|
|
Country: (If noted) |
Land Size: |
9.7500 Acres |
||
|
Land Value: 124,800 |
|
|||
|
Sect 14-T11N-R1W Qtr SE |
UNPLTD PT SEC 14 11N 1W
Block
000
Lot
000
|
|||
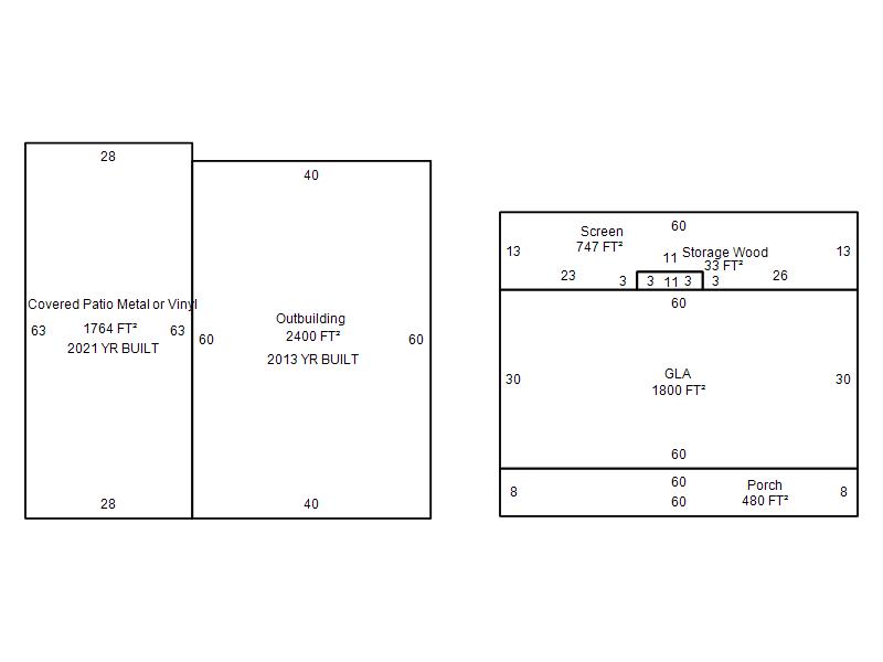
| Full Legal Description: UNPLTD PT OF SE4 SEC 14 11N 1W BEG 673.66FT W OF NE/C OF SE4 TH W652.09FT S1319.94FT E650.82FT N1321.07FT TO BEG EX E9.75ACRS |
| Photo & Sketch (if available) | Comp Sales (ordered by relevancy) |
|
||||||||||||||||||
|
||||||||||||||||||||
| Value History (*The County Treasurer 405-713-1300 posts & collects actual tax amounts. Contact information HERE) | |||||||||||||
|---|---|---|---|---|---|---|---|---|---|---|---|---|---|
| Year | Market Value | Taxable Mkt Value | Gross Assessed | Exemption | Net Assessed | Millage | Est. Tax | Tax Savings | |||||
|
2026 |
462,000 |
413,623 |
45,498 |
45,498 |
0 |
132.37 |
$0 |
$6,727 |
|||||
|
2025 |
475,500 |
401,576 |
44,172 |
44,172 |
0 |
132.37 |
$0 |
$6,923 |
|||||
|
2024 |
479,000 |
389,880 |
42,886 |
42,886 |
0 |
131.28 |
$0 |
$6,917 |
|||||
|
2023 |
410,500 |
378,525 |
41,637 |
41,637 |
0 |
131.88 |
$0 |
$5,955 |
|||||
|
2022 |
367,500 |
367,500 |
40,425 |
40,425 |
0 |
130.63 |
$0 |
$5,281 |
|||||
| Property Account Status/Adjustments/Exemptions | ||
|---|---|---|
| Account # | Exemption Description | Amount |
|
R144055065 |
3% Cap Homestead |
0 |
|
R144055065 |
100% DAV Exemption |
100 |
|
R144055065 |
DAV Homestead |
0 |
| Property Deed Transaction History (Recorded in the County Clerk's Office) | |||||||
|---|---|---|---|---|---|---|---|
| Date | Type | Book | Page | Price | Grantor | Grantee | |
|
10/8/2025 |
|
Deeds |
$0 |
ANDERSON JAMES R & AGNES R |
ANDERSON JAMES & AGNES FAMILY TRUST |
||
|
5/22/2018 |
|
Deeds |
$0 |
ANDERSON JAMES R & AGNES R |
ANDERSON DEDREK GUY |
||
|
2/27/2017 |
|
Deeds |
$382,000 |
CLUCK JAMES T & SHARON R |
ANDERSON JAMES R & AGNES R |
||
|
2/25/2013 |
|
Deeds |
$42,500 |
NELSON JACKIE RENE |
CLUCK JAMES T & SHARON R |
||
|
5/1/2005 |
|
Hmstd Off & |
$0 |
RHOADES JEANNA M |
NELSON JACKIE RENE |
||
| Last Mailed Notice of Value (N.O.V.) Information/History | ||||||||
|---|---|---|---|---|---|---|---|---|
| Year | Date | Market Value | Taxable Market Value | Gross Assessed | Exemption | Net Assessed | ||
|
2026 |
02/06/2026 |
462,000 |
413,623 |
45,498 |
45,498 |
0 |
||
|
2025 |
01/31/2025 |
475,500 |
401,576 |
44,172 |
44,172 |
0 |
||
|
2024 |
01/22/2024 |
479,000 |
389,880 |
42,886 |
42,886 |
0 |
||
|
2023 |
01/23/2023 |
410,500 |
378,525 |
41,637 |
41,637 |
0 |
||
|
2018 |
04/09/2018 |
367,500 |
367,500 |
40,425 |
40,425 |
0 |
||
| Property Building Permit History | ||||||
|---|---|---|---|---|---|---|
| Issued | Permit # | Provided by | Bldg # | Description | Est Construction Cost | Status |
|
10/28/2013 |
10455806 |
OKLAHOMA CITY |
1 |
Main Dwellin |
0 |
Inactive |
| Click button on building number to access detailed information: | ||||||
|---|---|---|---|---|---|---|
| Bldg # | Vacant/Improved Land | Bldg Description | Year Built | SqFt | # Stories | |
|
1 |
Improved |
Ranch 1 Story |
2013 |
1,800 |
1 Stories |
|