|
|
|
| Larry Stein Oklahoma County Assessor (405) 713-1200 - Public Access System |
|
|
|
|
|
|
| Real Property Display - Screen Produced 4/9/2026 11:17:18 AM | ||||
|---|---|---|---|---|
| Account: R154951740 | Type: Residential | Location: |
839 N PINE ST |
|
| Building Name/Occupant: |
|
MIDWEST CITY |
||
| Owner Name 1: | ROBB RONDA L & WILLIAM J |
Parcel PIN#: |
2324-15-495-1740 |
|
| Owner Name 2: | 1/4 section #: |
2324 |
||
| Owner Name 3: | Parent Acct: |
|
||
| Billing Address: | 839 N PINE ST | Tax District: |
|
|
| City, State, Zip | MIDWEST CITY, OK 73130 | School System: |
Choctaw #4 |
|
|
Country: (If noted) |
Land Size: |
1.0000 Acres |
||
|
Land Value: 34,541 |
|
|||
|
Sect 31-T12N-R1W Qtr NW |
HARPER ADDITION
Block
002
Lot
005
|
|||
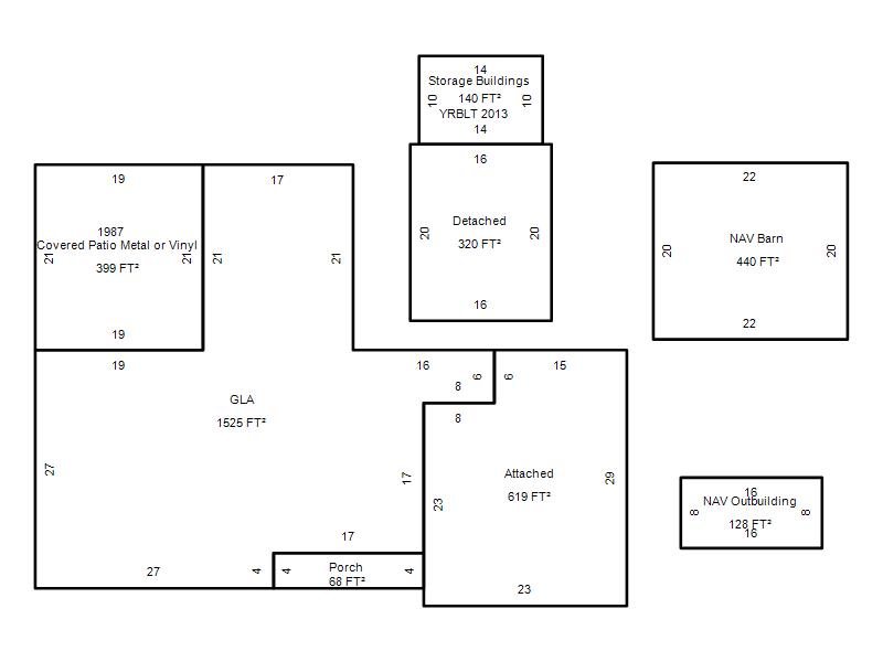
| Full Legal Description: HARPER ADDITION 002 005 S150FT |
| Photo & Sketch (if available) | Comp Sales (ordered by relevancy) |
|
||||||||||||||||||
|
||||||||||||||||||||
| Value History (*The County Treasurer 405-713-1300 posts & collects actual tax amounts. Contact information HERE) | |||||||||||||
|---|---|---|---|---|---|---|---|---|---|---|---|---|---|
| Year | Market Value | Taxable Mkt Value | Gross Assessed | Exemption | Net Assessed | Millage | Est. Tax | Tax Savings | |||||
|
2026 |
188,500 |
152,836 |
16,811 |
16,811 |
0 |
127.03 |
$0 |
$2,634 |
|||||
|
2025 |
189,000 |
148,385 |
16,322 |
16,322 |
0 |
127.03 |
$0 |
$2,641 |
|||||
|
2024 |
181,000 |
144,064 |
15,846 |
15,846 |
0 |
127.00 |
$0 |
$2,528 |
|||||
|
2023 |
174,000 |
139,868 |
15,385 |
15,385 |
0 |
128.50 |
$0 |
$2,459 |
|||||
|
2022 |
160,500 |
135,795 |
14,937 |
14,937 |
0 |
127.22 |
$0 |
$2,246 |
|||||
| Property Account Status/Adjustments/Exemptions | ||
|---|---|---|
| Account # | Exemption Description | Amount |
|
R154951740 |
3% Cap Homestead |
0 |
|
R154951740 |
100% DAV Exemption |
100 |
|
R154951740 |
DAV Homestead |
0 |
| Property Deed Transaction History (Recorded in the County Clerk's Office) | ||||||||||
|---|---|---|---|---|---|---|---|---|---|---|
| Date | Type | Book | Page | Price | Grantor | Grantee | ||||
|
7/19/2018 |
|
Deeds |
$76,500 |
BOATMAN LISA MICHELLE |
ROBB RONDA L & WILLIAM J |
|||||
|
7/14/2018 |
|
Hmstd Off & |
$0 |
CAMPBELL LARRY WAYNE |
BOATMAN LISA MICHELLE |
|||||
|
7/14/2018 |
|
Deeds |
$76,500 |
SCOLAMIERO LYNN WANELL |
ROBB RONDA L & WILLIAM J |
|||||
|
6/4/2018 |
|
Hmstd Off & |
$0 |
CAMPBELL LARRY WAYNE |
BOATMAN LISA |
|||||
|
1/10/2018 |
|
Deeds |
$0 |
CAMPBELL LARRY W & MARY B |
CAMPBELL LARRY WAYNE |
|||||
| Last Mailed Notice of Value (N.O.V.) Information/History | ||||||||
|---|---|---|---|---|---|---|---|---|
| Year | Date | Market Value | Taxable Market Value | Gross Assessed | Exemption | Net Assessed | ||
|
2026 |
02/06/2026 |
188,500 |
152,836 |
16,811 |
16,811 |
0 |
||
|
2025 |
01/31/2025 |
189,000 |
148,385 |
16,322 |
16,322 |
0 |
||
|
2024 |
01/22/2024 |
181,000 |
144,064 |
15,846 |
15,846 |
0 |
||
|
2023 |
01/23/2023 |
174,000 |
139,868 |
15,385 |
15,385 |
0 |
||
|
2022 |
02/22/2022 |
160,500 |
135,795 |
14,937 |
14,937 |
0 |
||
| Property Building Permit History | |||||||||||
|---|---|---|---|---|---|---|---|---|---|---|---|
| Issued | Permit # | Provided by | Bldg # | Description | Est Construction Cost | Status | |||||
| No Building Permit records returned. | |||||||||||
| Click button on building number to access detailed information: | ||||||
|---|---|---|---|---|---|---|
| Bldg # | Vacant/Improved Land | Bldg Description | Year Built | SqFt | # Stories | |
|
1 |
Improved |
Ranch 1 Story |
1960 |
1,525 |
1 Stories |
|