|
|
|
| Larry Stein Oklahoma County Assessor (405) 713-1200 - Public Access System |
|
|
|
|
|
|
| Real Property Display - Screen Produced 4/9/2026 11:15:47 AM | ||||
|---|---|---|---|---|
| Account: R154957830 | Type: Residential | Location: |
508 N POPLAR LN |
|
| Building Name/Occupant: |
|
MIDWEST CITY |
||
| Owner Name 1: | FULLER DARLENE M |
Parcel PIN#: |
2324-15-495-7830 |
|
| Owner Name 2: | MCENTIRE STARLET W | 1/4 section #: |
2324 |
|
| Owner Name 3: | Parent Acct: |
|
||
| Billing Address: | 508 N POPLAR LN | Tax District: |
|
|
| City, State, Zip | MIDWEST CITY, OK 73130-2924 | School System: |
Choctaw #4 |
|
|
Country: (If noted) |
Land Size: |
1.0000 Acres |
||
|
Land Value: 34,541 |
|
|||
|
Sect 31-T12N-R1W Qtr NW |
HARPER ADDITION
Block
004
Lot
007
|
|||
| Full Legal Description: HARPER ADDITION 004 007 W198FT OF S221FT |
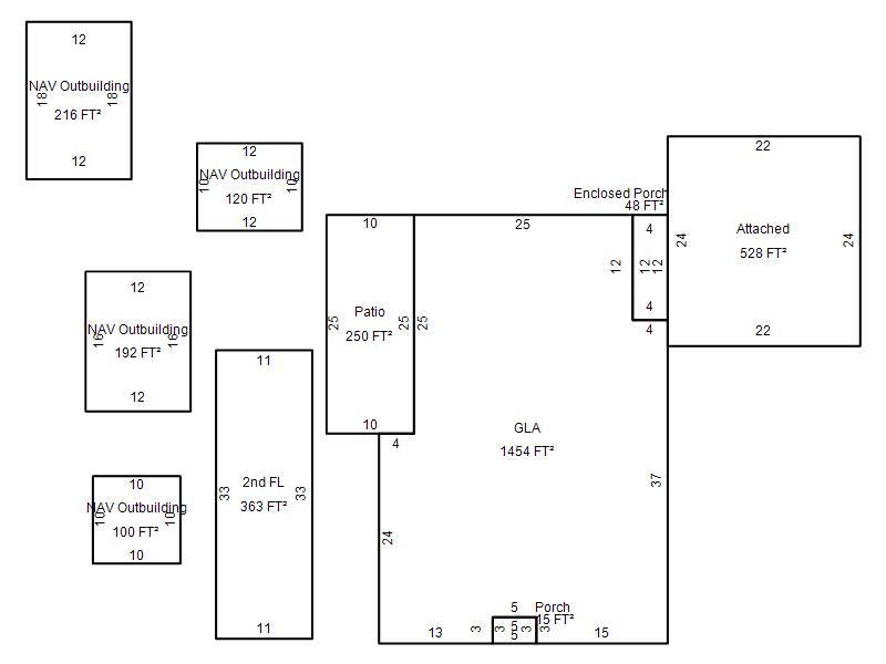
| Photo & Sketch (if available) | Comp Sales (ordered by relevancy) |
|
||||||||||||||||||
|
||||||||||||||||||||
| Value History (*The County Treasurer 405-713-1300 posts & collects actual tax amounts. Contact information HERE) | |||||||||||||
|---|---|---|---|---|---|---|---|---|---|---|---|---|---|
| Year | Market Value | Taxable Mkt Value | Gross Assessed | Exemption | Net Assessed | Millage | Est. Tax | Tax Savings | |||||
|
2026 |
186,500 |
56,843 |
6,252 |
2,000 |
4,252 |
127.03 |
$540 |
$2,066 |
|||||
|
2025 |
193,000 |
56,843 |
6,252 |
2,000 |
4,252 |
127.03 |
$540 |
$2,157 |
|||||
|
2024 |
181,500 |
56,843 |
6,252 |
2,000 |
4,252 |
127.00 |
$540 |
$1,995 |
|||||
|
2023 |
177,000 |
56,843 |
6,252 |
2,000 |
4,252 |
128.50 |
$546 |
$1,955 |
|||||
|
2022 |
163,000 |
56,843 |
6,252 |
2,000 |
4,252 |
127.22 |
$541 |
$1,740 |
|||||
| Property Account Status/Adjustments/Exemptions | ||
|---|---|---|
| Account # | Exemption Description | Amount |
|
R154957830 |
Freeze Senior Valuation |
0 |
|
R154957830 |
Senior Additional Homestead |
1,000 |
|
R154957830 |
3% Cap Homestead |
0 |
|
R154957830 |
Homestead |
1,000 |
| Property Deed Transaction History (Recorded in the County Clerk's Office) | |||||||
|---|---|---|---|---|---|---|---|
| Date | Type | Book | Page | Price | Grantor | Grantee | |
|
12/17/2020 |
|
Deeds |
$0 |
FULLER DARLENE M |
FULLER DARLENE M |
||
|
11/1/1976 |
|
Historical |
$0 |
|
FULLER DARLENE M |
||
| Last Mailed Notice of Value (N.O.V.) Information/History | ||||||||
|---|---|---|---|---|---|---|---|---|
| Year | Date | Market Value | Taxable Market Value | Gross Assessed | Exemption | Net Assessed | ||
|
2025 |
01/31/2025 |
193,000 |
56,843 |
6,252 |
2,000 |
4,252 |
||
|
2024 |
01/22/2024 |
181,500 |
56,843 |
6,252 |
2,000 |
4,252 |
||
|
2023 |
01/23/2023 |
177,000 |
56,843 |
6,252 |
2,000 |
4,252 |
||
|
2022 |
02/22/2022 |
163,000 |
56,843 |
6,252 |
2,000 |
4,252 |
||
|
2021 |
02/24/2021 |
139,500 |
56,843 |
6,252 |
2,000 |
4,252 |
||
| Property Building Permit History | |||||||||||
|---|---|---|---|---|---|---|---|---|---|---|---|
| Issued | Permit # | Provided by | Bldg # | Description | Est Construction Cost | Status | |||||
| No Building Permit records returned. | |||||||||||
| Click button on building number to access detailed information: | ||||||
|---|---|---|---|---|---|---|
| Bldg # | Vacant/Improved Land | Bldg Description | Year Built | SqFt | # Stories | |
|
1 |
Improved |
1½ Story Fin |
1960 |
1,817 |
1.5 Stories |
|