|
|
|
| Larry Stein Oklahoma County Assessor (405) 713-1200 - Public Access System |
|
|
|
|
|
|
| Real Property Display - Screen Produced 4/1/2026 8:05:02 PM | ||||
|---|---|---|---|---|
| Account: R122481180 | Type: Residential | Location: |
2920 N LINDSAY LN |
|
| Building Name/Occupant: |
|
SPENCER |
||
| Owner Name 1: | CATO CATHY |
Parcel PIN#: |
2490-12-248-1180 |
|
| Owner Name 2: | 1/4 section #: |
2490 |
||
| Owner Name 3: | Parent Acct: |
|
||
| Billing Address: | 2920 LINDSAY LN | Tax District: |
|
|
| City, State, Zip | SPENCER, OK 73084-3546 | School System: |
Oklahoma City #89 |
|
|
Country: (If noted) |
Land Size: |
0.1400 Acres |
||
|
Land Value: 24,400 |
|
|||
|
Sect 23-T12N-R2W Qtr SE |
BENTREE COUNTRY PLACE
Block
003
Lot
001
|
|||
| Full Legal Description: BENTREE COUNTRY PLACE 003 001 |
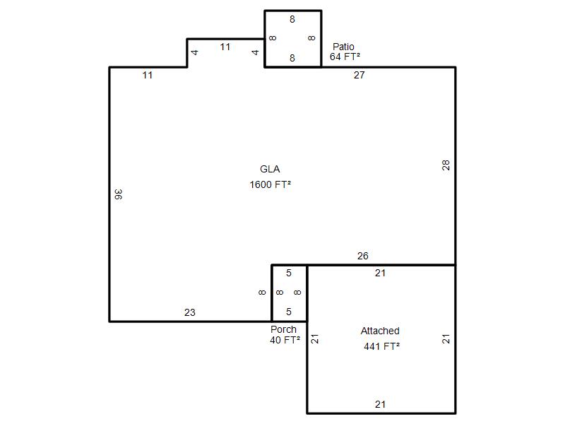
| Photo & Sketch (if available) | Comp Sales (ordered by relevancy) |
|
||||||||||||||||||
|
||||||||||||||||||||
| Value History (*The County Treasurer 405-713-1300 posts & collects actual tax amounts. Contact information HERE) | |||||||||||||
|---|---|---|---|---|---|---|---|---|---|---|---|---|---|
| Year | Market Value | Taxable Mkt Value | Gross Assessed | Exemption | Net Assessed | Millage | Est. Tax | Tax Savings | |||||
|
2026 |
172,000 |
148,686 |
16,354 |
0 |
16,354 |
107.74 |
$1,762 |
$276 |
|||||
|
2025 |
197,000 |
141,606 |
15,575 |
0 |
15,575 |
107.74 |
$1,678 |
$656 |
|||||
|
2024 |
195,500 |
134,863 |
14,834 |
0 |
14,834 |
108.96 |
$1,616 |
$727 |
|||||
|
2023 |
186,500 |
128,441 |
14,127 |
0 |
14,127 |
108.04 |
$1,526 |
$690 |
|||||
|
2022 |
156,000 |
122,325 |
13,455 |
0 |
13,455 |
102.17 |
$1,375 |
$378 |
|||||
| Property Account Status/Adjustments/Exemptions | ||
|---|---|---|
| Account # | Exemption Description | Amount |
|
R122481180 |
5% Capped Account |
0 |
| Property Deed Transaction History (Recorded in the County Clerk's Office) | ||||||||||
|---|---|---|---|---|---|---|---|---|---|---|
| Date | Type | Book | Page | Price | Grantor | Grantee | ||||
|
1/30/2004 |
|
Deeds |
$92,500 |
PARAMOUNT CONSTRUCTION LLC |
CATO CATHY |
|||||
|
6/12/2003 |
|
|
$0 |
CULBERSON KEVIN |
PARAMOUNT CONSTRUCTION LLC |
|||||
|
5/13/2003 |
|
Deeds |
$4,500 |
ELLISON CHARLES E |
CULBERSON KEVIN |
|||||
|
1/27/1994 |
|
Historical |
$0 |
KELLY KAREN |
ELLISON CHARLES E |
|||||
|
9/17/1992 |
|
Historical |
$0 |
KELLY KAREN |
KELLY KAREN |
|||||
| Last Mailed Notice of Value (N.O.V.) Information/History | ||||||||
|---|---|---|---|---|---|---|---|---|
| Year | Date | Market Value | Taxable Market Value | Gross Assessed | Exemption | Net Assessed | ||
|
2026 |
02/23/2026 |
172,000 |
148,686 |
16,354 |
0 |
16,354 |
||
|
2025 |
02/14/2025 |
197,000 |
141,606 |
15,575 |
0 |
15,575 |
||
|
2024 |
02/13/2024 |
195,500 |
134,863 |
14,834 |
0 |
14,834 |
||
|
2023 |
02/14/2023 |
186,500 |
128,441 |
14,127 |
0 |
14,127 |
||
|
2022 |
03/15/2022 |
156,000 |
122,325 |
13,455 |
0 |
13,455 |
||
| Property Building Permit History | ||||||
|---|---|---|---|---|---|---|
| Issued | Permit # | Provided by | Bldg # | Description | Est Construction Cost | Status |
|
8/23/2004 |
10294171 |
OKLAHOMA CITY |
1 |
Main Dwellin |
2,005 |
Inactive |
| Click button on building number to access detailed information: | ||||||
|---|---|---|---|---|---|---|
| Bldg # | Vacant/Improved Land | Bldg Description | Year Built | SqFt | # Stories | |
|
1 |
Improved |
Ranch 1 Story |
2004 |
1,600 |
1 Stories |
|