|
|
|
| Larry Stein Oklahoma County Assessor (405) 713-1200 - Public Access System |
|
|
|
|
|
|
| Real Property Display - Screen Produced 4/1/2026 8:06:07 PM | ||||
|---|---|---|---|---|
| Account: R122481880 | Type: Residential | Location: |
8912 MURIEL WAY |
|
| Building Name/Occupant: |
|
SPENCER |
||
| Owner Name 1: | FOSTER HOME IMPROVEMENT LLC |
Parcel PIN#: |
2490-12-248-1880 |
|
| Owner Name 2: | 1/4 section #: |
2490 |
||
| Owner Name 3: | Parent Acct: |
|
||
| Billing Address: | PO BOX 60004 | Tax District: |
|
|
| City, State, Zip | OKLAHOMA CITY, OK 73146 | School System: |
Oklahoma City #89 |
|
|
Country: (If noted) |
Land Size: |
0.1591 Acres |
||
|
Land Value: 27,720 |
|
|||
|
Sect 23-T12N-R2W Qtr SE |
BENTREE COUNTRY PLACE
Block
006
Lot
018
|
|||
| Full Legal Description: BENTREE COUNTRY PLACE 006 018 |
| Photo & Sketch (if available) | Comp Sales (ordered by relevancy) |
|
||||||||||||||||||
|
||||||||||||||||||||
| Value History (*The County Treasurer 405-713-1300 posts & collects actual tax amounts. Contact information HERE) | |||||||||||||
|---|---|---|---|---|---|---|---|---|---|---|---|---|---|
| Year | Market Value | Taxable Mkt Value | Gross Assessed | Exemption | Net Assessed | Millage | Est. Tax | Tax Savings | |||||
|
2026 |
168,500 |
168,500 |
18,535 |
0 |
18,535 |
107.74 |
$1,997 |
$0 |
|||||
|
2025 |
168,500 |
98,141 |
10,795 |
0 |
10,795 |
107.74 |
$1,163 |
$834 |
|||||
|
2024 |
166,000 |
93,468 |
10,281 |
1,000 |
9,281 |
108.96 |
$1,011 |
$978 |
|||||
|
2023 |
158,000 |
90,746 |
9,981 |
1,000 |
8,981 |
108.04 |
$970 |
$907 |
|||||
|
2022 |
136,500 |
88,103 |
9,691 |
1,000 |
8,691 |
102.17 |
$888 |
$646 |
|||||
| Property Account Status/Adjustments/Exemptions | ||||||
|---|---|---|---|---|---|---|
| Account # | Exemption Description | Amount | ||||
| No adjustment/exemption records returned. | ||||||
| Property Deed Transaction History (Recorded in the County Clerk's Office) | ||||||||||
|---|---|---|---|---|---|---|---|---|---|---|
| Date | Type | Book | Page | Price | Grantor | Grantee | ||||
|
10/16/2025 |
|
Deeds |
$90,000 |
OLMOS YOLANDA |
FOSTER HOME IMPROVEMENT LLC |
|||||
|
1/12/2010 |
|
Deeds |
$89,500 |
PHOENIX RENOVATIONS LLC |
OLMOS YOLANDA |
|||||
|
9/14/2009 |
|
Deeds |
$40,000 |
GMAC MORTGAGE LLC |
PHOENIX RENOVATIONS LLC |
|||||
|
7/16/2009 |
|
Hmstd Off & |
$0 |
MASON CAROLYN H |
GMAC MORTGAGE LLC |
|||||
|
6/11/2004 |
|
Deeds |
$0 |
BAKER CAROLYN H |
MASON CAROLYN H |
|||||
| Last Mailed Notice of Value (N.O.V.) Information/History | ||||||||
|---|---|---|---|---|---|---|---|---|
| Year | Date | Market Value | Taxable Market Value | Gross Assessed | Exemption | Net Assessed | ||
|
2026 |
02/23/2026 |
168,500 |
168,500 |
18,535 |
0 |
18,535 |
||
|
2025 |
02/14/2025 |
168,500 |
96,272 |
10,589 |
1,000 |
9,589 |
||
|
2024 |
02/13/2024 |
166,000 |
93,468 |
10,281 |
1,000 |
9,281 |
||
|
2023 |
02/14/2023 |
158,000 |
90,746 |
9,981 |
1,000 |
8,981 |
||
|
2022 |
03/15/2022 |
136,500 |
88,103 |
9,691 |
1,000 |
8,691 |
||
| Property Building Permit History | |||||||||||
|---|---|---|---|---|---|---|---|---|---|---|---|
| Issued | Permit # | Provided by | Bldg # | Description | Est Construction Cost | Status | |||||
| No Building Permit records returned. | |||||||||||
| Click button on building number to access detailed information: | ||||||
|---|---|---|---|---|---|---|
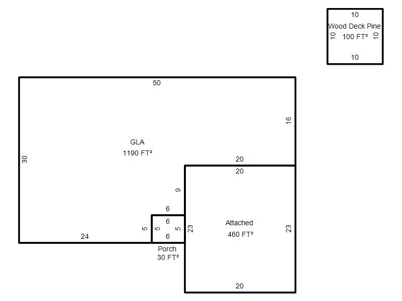
| Bldg # | Vacant/Improved Land | Bldg Description | Year Built | SqFt | # Stories | |
|
1 |
Improved |
Ranch 1 Story |
1984 |
1,190 |
1 Stories |
|