|
|
|
| Larry Stein Oklahoma County Assessor (405) 713-1200 - Public Access System |
|
|
|
|
|
|
| Real Property Display - Screen Produced 4/6/2026 12:05:19 PM | ||||
|---|---|---|---|---|
| Account: R144197030 | Type: Residential | Location: |
4701 S INDIAN MERIDIAN RD |
|
| Building Name/Occupant: |
|
OKLAHOMA CITY |
||
| Owner Name 1: | DUBBE JEFFREY L |
Parcel PIN#: |
1293-14-419-7030 |
|
| Owner Name 2: | 1/4 section #: |
1293 |
||
| Owner Name 3: | Parent Acct: |
|
||
| Billing Address: | 4701 S INDIAN MERIDIAN | Tax District: |
|
|
| City, State, Zip | CHOCTAW, OK 73020-5528 | School System: |
Choctaw #4 |
|
|
Country: (If noted) |
Land Size: |
5.6000 Acres |
||
|
Land Value: 69,351 |
|
|||
|
Sect 24-T11N-R1W Qtr NE |
UNPLTD PT SEC 24 11N 1W
Block
000
Lot
000
|
|||
| Full Legal Description: UNPLTD PT SEC 24 11N 1W 000 000 PT NE4 SEC 24 11N 1W BEG 585.49FT S OF NE/C NE4 TH S250FT W974.48FT N250FT E974.83FT TO BEG CONT 5.59ACRS MORE OR LESS |
| No comparable sales report available. | ||||||||||||||||||||||
|
||||||||||||||||||||||
| Value History (*The County Treasurer 405-713-1300 posts & collects actual tax amounts. Contact information HERE) | |||||||||||||
|---|---|---|---|---|---|---|---|---|---|---|---|---|---|
| Year | Market Value | Taxable Mkt Value | Gross Assessed | Exemption | Net Assessed | Millage | Est. Tax | Tax Savings | |||||
|
2026 |
94,538 |
74,238 |
8,165 |
1,000 |
7,165 |
132.37 |
$949 |
$428 |
|||||
|
2025 |
94,327 |
72,076 |
7,927 |
0 |
7,927 |
132.37 |
$1,049 |
$324 |
|||||
|
2024 |
94,372 |
68,644 |
7,550 |
0 |
7,550 |
131.28 |
$991 |
$372 |
|||||
|
2023 |
101,936 |
65,376 |
7,190 |
0 |
7,190 |
131.88 |
$948 |
$530 |
|||||
|
2022 |
101,380 |
62,263 |
6,848 |
0 |
6,848 |
130.63 |
$895 |
$562 |
|||||
| Property Account Status/Adjustments/Exemptions | ||
|---|---|---|
| Account # | Exemption Description | Amount |
|
R144197030 |
Homestead |
1,000 |
|
R144197030 |
3% Cap Homestead |
0 |
| Property Deed Transaction History (Recorded in the County Clerk's Office) | ||||||||||
|---|---|---|---|---|---|---|---|---|---|---|
| Date | Type | Book | Page | Price | Grantor | Grantee | ||||
|
5/26/2005 |
|
Deeds |
$95,000 |
ROBERTS CHRIS LEE |
DUBBE JEFFREY L |
|||||
|
11/29/2000 |
|
Deeds |
$80,000 |
HAYS JAMES S & MERRY C |
ROBERTS CHRIS LEE |
|||||
|
10/20/1994 |
|
Historical |
$16,000 |
CRUTCHFIELD NEAL & BETTY |
HAYS JAMES S & MERRY C |
|||||
|
5/16/1991 |
|
Historical |
$0 |
CRUTCHFIELD NEAL & BETTY |
CRUTCHFIELD NEAL & BETTY |
|||||
|
12/11/1990 |
|
Historical |
$0 |
BEAUCHAMP RICHARD & BRENDA S |
CRUTCHFIELD NEAL & BETTY |
|||||
| Last Mailed Notice of Value (N.O.V.) Information/History | ||||||||
|---|---|---|---|---|---|---|---|---|
| Year | Date | Market Value | Taxable Market Value | Gross Assessed | Exemption | Net Assessed | ||
|
2026 |
02/06/2026 |
94,538 |
75,679 |
8,324 |
0 |
8,324 |
||
|
2025 |
01/31/2025 |
94,327 |
72,076 |
7,927 |
0 |
7,927 |
||
|
2024 |
01/22/2024 |
94,372 |
68,644 |
7,550 |
0 |
7,550 |
||
|
2023 |
01/23/2023 |
101,936 |
65,376 |
7,190 |
0 |
7,190 |
||
|
2022 |
02/22/2022 |
101,380 |
62,263 |
6,848 |
0 |
6,848 |
||
| Property Building Permit History | ||||||
|---|---|---|---|---|---|---|
| Issued | Permit # | Provided by | Bldg # | Description | Est Construction Cost | Status |
|
4/18/1995 |
10239240 |
OKLAHOMA CITY |
1 |
Other |
7,500 |
Inactive |
| Click button on building number to access detailed information: | ||||||
|---|---|---|---|---|---|---|
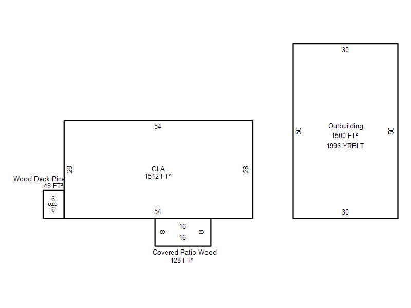
| Bldg # | Vacant/Improved Land | Bldg Description | Year Built | SqFt | # Stories | |
|
1 |
Improved |
Double Wide |
1995 |
1,512 |
1 Stories |
|