|
|
|
| Larry Stein Oklahoma County Assessor (405) 713-1200 - Public Access System |
|
|
|
|
|
|
| Real Property Display - Screen Produced 4/4/2026 7:49:05 AM | ||||
|---|---|---|---|---|
| Account: R150261225 | Type: Residential | Location: |
2805 WOODCREEK RD |
|
| Building Name/Occupant: |
|
MIDWEST CITY |
||
| Owner Name 1: | WRIGHT TYLICIA D |
Parcel PIN#: |
2535-15-026-1225 |
|
| Owner Name 2: | WILLIAMS DEVON M | 1/4 section #: |
2535 |
|
| Owner Name 3: | Parent Acct: |
|
||
| Billing Address: | 2805 WOODCREEK RD | Tax District: |
|
|
| City, State, Zip | MIDWEST CITY, OK 73110-3125 | School System: |
Mid-Del #52 |
|
|
Country: (If noted) |
Land Size: |
0.2417 Acres |
||
|
Land Value: 40,014 |
|
|||
|
Sect 34-T12N-R2W Qtr SW |
RIDGECREST MANOR
Block
003
Lot
012
|
|||
| Full Legal Description: RIDGECREST MANOR 003 012 |
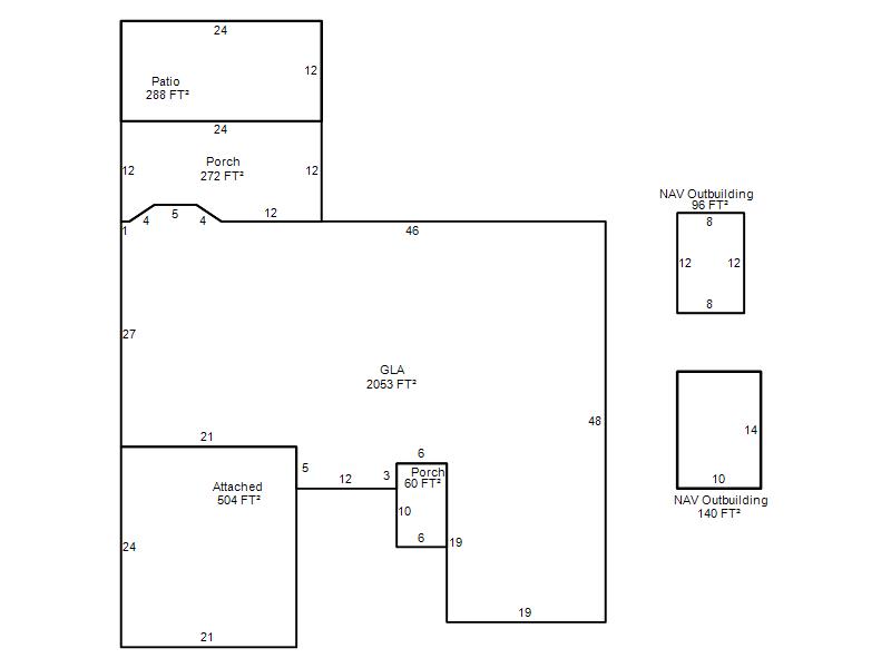
| Photo & Sketch (if available) | Comp Sales (ordered by relevancy) |
|
||||||||||||||||||
|
||||||||||||||||||||
| Value History (*The County Treasurer 405-713-1300 posts & collects actual tax amounts. Contact information HERE) | |||||||||||||
|---|---|---|---|---|---|---|---|---|---|---|---|---|---|
| Year | Market Value | Taxable Mkt Value | Gross Assessed | Exemption | Net Assessed | Millage | Est. Tax | Tax Savings | |||||
|
2026 |
247,000 |
247,000 |
27,170 |
0 |
27,170 |
119.58 |
$3,249 |
$0 |
|||||
|
2025 |
252,000 |
252,000 |
27,720 |
0 |
27,720 |
119.58 |
$3,315 |
$0 |
|||||
|
2024 |
252,000 |
192,053 |
21,125 |
1,000 |
20,125 |
122.51 |
$2,466 |
$930 |
|||||
|
2023 |
242,500 |
186,460 |
20,510 |
1,000 |
19,510 |
117.71 |
$2,297 |
$843 |
|||||
|
2022 |
216,000 |
181,030 |
19,912 |
1,000 |
18,912 |
116.64 |
$2,206 |
$565 |
|||||
| Property Account Status/Adjustments/Exemptions | ||
|---|---|---|
| Account # | Exemption Description | Amount |
|
R150261225 |
5% Capped Account |
0 |
| Property Deed Transaction History (Recorded in the County Clerk's Office) | ||||||||||
|---|---|---|---|---|---|---|---|---|---|---|
| Date | Type | Book | Page | Price | Grantor | Grantee | ||||
|
11/8/2024 |
|
Deeds |
$233,000 |
MADDUX MARVIN |
WRIGHT TYLICIA D |
|||||
|
3/25/2024 |
|
Deeds |
$0 |
DOWD LARRY W |
DOWD LARRY W |
|||||
|
3/25/2024 |
|
Deeds |
$170,000 |
DOWD LARRY W |
MADDUX MARVIN |
|||||
|
2/15/2001 |
|
Deeds |
$109,000 |
BENSON FAY & ALAN TRUST BENSON D ALAN JR TRS |
DOWD LARRY W |
|||||
|
1/4/1993 |
|
Historical |
$0 |
BENSON D ALAN JR & OLETA FAY |
BENSON FAY & ALAN TRUST |
|||||
| Last Mailed Notice of Value (N.O.V.) Information/History | ||||||||
|---|---|---|---|---|---|---|---|---|
| Year | Date | Market Value | Taxable Market Value | Gross Assessed | Exemption | Net Assessed | ||
|
2025 |
02/14/2025 |
252,000 |
252,000 |
27,720 |
0 |
27,720 |
||
|
2024 |
02/13/2024 |
252,000 |
192,053 |
21,125 |
1,000 |
20,125 |
||
|
2023 |
02/14/2023 |
242,500 |
186,460 |
20,510 |
1,000 |
19,510 |
||
|
2022 |
03/15/2022 |
216,000 |
181,030 |
19,912 |
1,000 |
18,912 |
||
|
2021 |
03/19/2021 |
184,500 |
175,758 |
19,333 |
1,000 |
18,333 |
||
| Property Building Permit History | ||||||
|---|---|---|---|---|---|---|
| Issued | Permit # | Provided by | Bldg # | Description | Est Construction Cost | Status |
|
4/30/2003 |
10245731 |
MIDWEST CITY |
1 |
Swimming Pool |
2,500 |
Inactive |
| Click button on building number to access detailed information: | ||||||
|---|---|---|---|---|---|---|
| Bldg # | Vacant/Improved Land | Bldg Description | Year Built | SqFt | # Stories | |
|
1 |
Improved |
Ranch 1 Story |
1977 |
2,053 |
1 Stories |
|