|
|
|
| Larry Stein Oklahoma County Assessor (405) 713-1200 - Public Access System |
|
|
|
|
|
|
| Real Property Display - Screen Produced 4/1/2026 7:44:49 PM | ||||
|---|---|---|---|---|
| Account: R151431020 | Type: Residential | Location: |
3120 ROBIN RD |
|
| Building Name/Occupant: |
|
MIDWEST CITY |
||
| Owner Name 1: | MORGAN DIANA C |
Parcel PIN#: |
2535-15-143-1020 |
|
| Owner Name 2: | 1/4 section #: |
2535 |
||
| Owner Name 3: | Parent Acct: |
|
||
| Billing Address: | 3120 ROBIN RD | Tax District: |
|
|
| City, State, Zip | MIDWEST CITY, OK 73110-4140 | School System: |
Mid-Del #52 |
|
|
Country: (If noted) |
Land Size: |
0.2837 Acres |
||
|
Land Value: 39,050 |
|
|||
|
Sect 34-T12N-R2W Qtr SW |
COUNTRY CLUB TERRACE
Block
001
Lot
000
|
|||
| Full Legal Description: COUNTRY CLUB TERRACE 001 000 LOT 3 & PT LOT 4 BEG AT MOST NLY/C LOT 4 S ON E LINE 47.30FT W52.19FT TO A POINT ON NWLY LINE OF LOT 4 SD PT BEING SELYLINE LOT 3 NELY & ON NWLY LINE LOT 4 FOR A DISTANCE OF 60FTTO PLACE OF BEG |
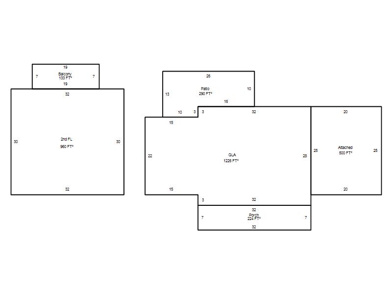
| Photo & Sketch (if available) | Comp Sales (ordered by relevancy) |
|
||||||||||||||||||
|
||||||||||||||||||||
| Value History (*The County Treasurer 405-713-1300 posts & collects actual tax amounts. Contact information HERE) | |||||||||||||
|---|---|---|---|---|---|---|---|---|---|---|---|---|---|
| Year | Market Value | Taxable Mkt Value | Gross Assessed | Exemption | Net Assessed | Millage | Est. Tax | Tax Savings | |||||
|
2026 |
274,000 |
210,922 |
23,200 |
1,000 |
22,200 |
119.58 |
$2,655 |
$949 |
|||||
|
2025 |
275,500 |
204,779 |
22,525 |
1,000 |
21,525 |
119.58 |
$2,574 |
$1,050 |
|||||
|
2024 |
273,500 |
198,815 |
21,868 |
1,000 |
20,868 |
122.51 |
$2,557 |
$1,129 |
|||||
|
2023 |
263,500 |
193,025 |
21,232 |
1,000 |
20,232 |
117.71 |
$2,382 |
$1,030 |
|||||
|
2022 |
238,000 |
187,403 |
20,613 |
1,000 |
19,613 |
116.64 |
$2,288 |
$766 |
|||||
| Property Account Status/Adjustments/Exemptions | ||
|---|---|---|
| Account # | Exemption Description | Amount |
|
R151431020 |
Homestead |
1,000 |
|
R151431020 |
3% Cap Homestead |
0 |
| Property Deed Transaction History (Recorded in the County Clerk's Office) | |||||||
|---|---|---|---|---|---|---|---|
| Date | Type | Book | Page | Price | Grantor | Grantee | |
|
7/24/2008 |
|
Deeds |
$112,000 |
MCKINNEY SARAH JEAN |
MORGAN DIANA C |
||
|
11/6/2003 |
|
Hmstd Off & |
$0 |
MCKINNEY JOE L & JEAN |
MCKINNEY SARAH JEAN |
||
|
4/1/1986 |
|
Historical |
$0 |
|
MCKINNEY JOE L & JEAN |
||
| Last Mailed Notice of Value (N.O.V.) Information/History | ||||||||
|---|---|---|---|---|---|---|---|---|
| Year | Date | Market Value | Taxable Market Value | Gross Assessed | Exemption | Net Assessed | ||
|
2026 |
02/23/2026 |
274,000 |
210,922 |
23,200 |
1,000 |
22,200 |
||
|
2025 |
02/14/2025 |
275,500 |
204,779 |
22,525 |
1,000 |
21,525 |
||
|
2024 |
02/13/2024 |
273,500 |
198,815 |
21,868 |
1,000 |
20,868 |
||
|
2023 |
02/14/2023 |
263,500 |
193,025 |
21,232 |
1,000 |
20,232 |
||
|
2022 |
03/15/2022 |
238,000 |
187,403 |
20,613 |
1,000 |
19,613 |
||
| Property Building Permit History | |||||||||||
|---|---|---|---|---|---|---|---|---|---|---|---|
| Issued | Permit # | Provided by | Bldg # | Description | Est Construction Cost | Status | |||||
| No Building Permit records returned. | |||||||||||
| Click button on building number to access detailed information: | ||||||
|---|---|---|---|---|---|---|
| Bldg # | Vacant/Improved Land | Bldg Description | Year Built | SqFt | # Stories | |
|
1 |
Improved |
2 Story |
1974 |
2,186 |
2 Stories |
|