|
|
|
| Larry Stein Oklahoma County Assessor (405) 713-1200 - Public Access System |
|
|
|
|
|
|
| Real Property Display - Screen Produced 4/2/2026 11:47:54 AM | ||||
|---|---|---|---|---|
| Account: R150821175 | Type: Residential | Location: |
3504 N HOLMAN CT |
|
| Building Name/Occupant: |
|
MIDWEST CITY |
||
| Owner Name 1: | BOROFF VIVIAN & CLIFTON R |
Parcel PIN#: |
2540-15-082-1175 |
|
| Owner Name 2: | 1/4 section #: |
2540 |
||
| Owner Name 3: | Parent Acct: |
|
||
| Billing Address: | 3504 N HOLMAN CT | Tax District: |
|
|
| City, State, Zip | MIDWEST CITY, OK 73110-7215 | School System: |
Oklahoma City #89 |
|
|
Country: (If noted) |
Land Size: |
0.1653 Acres |
||
|
Land Value: 13,032 |
|
|||
|
Sect 35-T12N-R2W Qtr NW |
HOLMAN 2ND ADDITION
Block
002
Lot
009
|
|||
| Full Legal Description: HOLMAN 2ND ADDITION 002 009 |
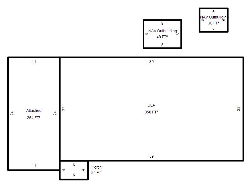
| Photo & Sketch (if available) | Comp Sales (ordered by relevancy) |
|
||||||||||||||||||
|
||||||||||||||||||||
| Value History (*The County Treasurer 405-713-1300 posts & collects actual tax amounts. Contact information HERE) | |||||||||||||
|---|---|---|---|---|---|---|---|---|---|---|---|---|---|
| Year | Market Value | Taxable Mkt Value | Gross Assessed | Exemption | Net Assessed | Millage | Est. Tax | Tax Savings | |||||
|
2026 |
89,500 |
45,968 |
5,056 |
1,000 |
4,056 |
114.34 |
$464 |
$662 |
|||||
|
2025 |
86,500 |
44,630 |
4,908 |
1,000 |
3,908 |
114.34 |
$447 |
$641 |
|||||
|
2024 |
80,000 |
43,331 |
4,765 |
1,000 |
3,765 |
116.11 |
$437 |
$584 |
|||||
|
2023 |
73,000 |
42,069 |
4,626 |
1,000 |
3,626 |
115.66 |
$420 |
$509 |
|||||
|
2022 |
61,000 |
40,844 |
4,492 |
1,000 |
3,492 |
110.02 |
$384 |
$354 |
|||||
| Property Account Status/Adjustments/Exemptions | ||
|---|---|---|
| Account # | Exemption Description | Amount |
|
R150821175 |
Homestead |
1,000 |
|
R150821175 |
3% Cap Homestead |
0 |
| Property Deed Transaction History (Recorded in the County Clerk's Office) | |||||||
|---|---|---|---|---|---|---|---|
| Date | Type | Book | Page | Price | Grantor | Grantee | |
|
8/6/1999 |
|
Deeds |
$27,000 |
WHEELAN MAXINE W & DON J TRS |
BOROFF VIVIAN & CLIFTON R |
||
|
7/2/1998 |
|
Historical |
$0 |
DRYDEN CHARLES ELMO |
DRYDEN CHARLES ELMO |
||
|
6/26/1998 |
|
Deeds |
$0 |
WHEELAN WILMA & DON |
SHEELAN MAXINE TRS & LIVING TRUST |
||
|
12/1/1980 |
|
Historical |
$0 |
|
WHEELAN D J |
||
| Last Mailed Notice of Value (N.O.V.) Information/History | ||||||||
|---|---|---|---|---|---|---|---|---|
| Year | Date | Market Value | Taxable Market Value | Gross Assessed | Exemption | Net Assessed | ||
|
2026 |
02/23/2026 |
89,500 |
45,968 |
5,056 |
1,000 |
4,056 |
||
|
2025 |
02/14/2025 |
86,500 |
44,630 |
4,908 |
1,000 |
3,908 |
||
|
2024 |
02/13/2024 |
80,000 |
43,331 |
4,765 |
1,000 |
3,765 |
||
|
2023 |
02/14/2023 |
73,000 |
42,069 |
4,626 |
1,000 |
3,626 |
||
|
2022 |
03/15/2022 |
61,000 |
40,844 |
4,492 |
1,000 |
3,492 |
||
| Property Building Permit History | |||||||||||
|---|---|---|---|---|---|---|---|---|---|---|---|
| Issued | Permit # | Provided by | Bldg # | Description | Est Construction Cost | Status | |||||
| No Building Permit records returned. | |||||||||||
| Click button on building number to access detailed information: | ||||||
|---|---|---|---|---|---|---|
| Bldg # | Vacant/Improved Land | Bldg Description | Year Built | SqFt | # Stories | |
|
1 |
Improved |
Ranch 1 Story |
1954 |
858 |
1 Stories |
|