|
|
|
| Larry Stein Oklahoma County Assessor (405) 713-1200 - Public Access System |
|
|
|
|
|
|
| Real Property Display - Screen Produced 4/2/2026 11:47:56 AM | ||||
|---|---|---|---|---|
| Account: R150821255 | Type: Residential | Location: |
3400 N HOLMAN CT |
|
| Building Name/Occupant: |
|
MIDWEST CITY |
||
| Owner Name 1: | MCCLINTOCK PATRICK M & DIANA |
Parcel PIN#: |
2540-15-082-1255 |
|
| Owner Name 2: | 1/4 section #: |
2540 |
||
| Owner Name 3: | Parent Acct: |
|
||
| Billing Address: | 3400 N HOLMAN CT | Tax District: |
|
|
| City, State, Zip | MIDWEST CITY, OK 73110-7213 | School System: |
Oklahoma City #89 |
|
|
Country: (If noted) |
Land Size: |
0.1653 Acres |
||
|
Land Value: 13,032 |
|
|||
|
Sect 35-T12N-R2W Qtr NW |
HOLMAN 2ND ADDITION
Block
002
Lot
017
|
|||
| Full Legal Description: HOLMAN 2ND ADDITION 002 017 |
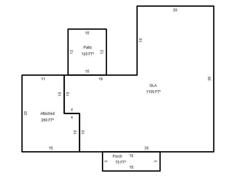
| Photo & Sketch (if available) | Comp Sales (ordered by relevancy) |
|
||||||||||||||||||
|
||||||||||||||||||||
| Value History (*The County Treasurer 405-713-1300 posts & collects actual tax amounts. Contact information HERE) | |||||||||||||
|---|---|---|---|---|---|---|---|---|---|---|---|---|---|
| Year | Market Value | Taxable Mkt Value | Gross Assessed | Exemption | Net Assessed | Millage | Est. Tax | Tax Savings | |||||
|
2026 |
105,000 |
66,150 |
7,276 |
0 |
7,276 |
114.34 |
$832 |
$489 |
|||||
|
2025 |
102,000 |
63,000 |
6,930 |
0 |
6,930 |
114.34 |
$792 |
$491 |
|||||
|
2024 |
93,500 |
60,000 |
6,599 |
0 |
6,599 |
116.11 |
$766 |
$428 |
|||||
|
2023 |
84,500 |
57,143 |
6,285 |
0 |
6,285 |
115.66 |
$727 |
$348 |
|||||
|
2022 |
72,500 |
54,422 |
5,985 |
0 |
5,985 |
110.02 |
$659 |
$219 |
|||||
| Property Account Status/Adjustments/Exemptions | ||||||
|---|---|---|---|---|---|---|
| Account # | Exemption Description | Amount | ||||
| No adjustment/exemption records returned. | ||||||
| Property Deed Transaction History (Recorded in the County Clerk's Office) | ||||||||||
|---|---|---|---|---|---|---|---|---|---|---|
| Date | Type | Book | Page | Price | Grantor | Grantee | ||||
|
8/27/2024 |
|
Hmstd Off & |
$0 |
WYLDE MARIA L |
MCCLINTOCK PATRICK M |
|||||
|
8/27/2024 |
|
Hmstd Off & |
$0 |
MCCLINTOCK PATRICK M |
MCCLINTOCK PATRICK M & DIANA |
|||||
|
10/3/2022 |
|
Hmstd Off & |
$0 |
MCCLINTOCK MARJORIE J TRS |
WYLDE MARIA L |
|||||
|
3/28/2006 |
|
Deeds |
$0 |
MCCLINTOCK ROBERT & MARJORIE |
MCCLINTOCK MARJORIE J |
|||||
|
3/28/2006 |
|
Deeds |
$0 |
MCCLINTOCK MARJORIE J |
MCCLINTOCK MARJORIE J TRS |
|||||
| Last Mailed Notice of Value (N.O.V.) Information/History | ||||||||
|---|---|---|---|---|---|---|---|---|
| Year | Date | Market Value | Taxable Market Value | Gross Assessed | Exemption | Net Assessed | ||
|
2026 |
02/23/2026 |
105,000 |
66,150 |
7,276 |
0 |
7,276 |
||
|
2025 |
02/14/2025 |
102,000 |
63,000 |
6,930 |
0 |
6,930 |
||
|
2024 |
02/13/2024 |
93,500 |
60,000 |
6,599 |
0 |
6,599 |
||
|
2023 |
02/14/2023 |
84,500 |
57,143 |
6,285 |
0 |
6,285 |
||
|
2022 |
03/15/2022 |
72,500 |
54,422 |
5,985 |
0 |
5,985 |
||
| Property Building Permit History | |||||||||||
|---|---|---|---|---|---|---|---|---|---|---|---|
| Issued | Permit # | Provided by | Bldg # | Description | Est Construction Cost | Status | |||||
| No Building Permit records returned. | |||||||||||
| Click button on building number to access detailed information: | ||||||
|---|---|---|---|---|---|---|
| Bldg # | Vacant/Improved Land | Bldg Description | Year Built | SqFt | # Stories | |
|
1 |
Improved |
Ranch 1 Story |
1954 |
1,100 |
1 Stories |
|