|
|
|
| Larry Stein Oklahoma County Assessor (405) 713-1200 - Public Access System |
|
|
|
|
|
|
| Real Property Display - Screen Produced 4/6/2026 12:05:20 PM | ||||
|---|---|---|---|---|
| Account: R144223928 | Type: Residential | Location: |
13600 SE 59TH ST |
|
| Building Name/Occupant: |
|
OKLAHOMA CITY |
||
| Owner Name 1: | OWENS BRUCE |
Parcel PIN#: |
1305-14-422-3928 |
|
| Owner Name 2: | 1/4 section #: |
1305 |
||
| Owner Name 3: | Parent Acct: |
|
||
| Billing Address: | 17820 TWISTED OAK RD | Tax District: |
|
|
| City, State, Zip | CHOCTAW, OK 73020-6494 | School System: |
Choctaw #4 |
|
|
Country: (If noted) |
Land Size: |
4.4400 Acres |
||
|
Land Value: 74,461 |
|
|||
|
Sect 27-T11N-R1W Qtr NE |
UNPLTD PT SEC 27 11N 1W
Block
000
Lot
000
|
|||
| Full Legal Description: UNPLTD PT SEC 27 11N 1W 000 000 PT NE4 SEC 27 11N 1W BEG 1794.12FT W OF NE/C NE4 TH W335.16FT S601.07FT TH SELY ON A CURVE TO THE RIGHT 373.18FT NLY 661.79FT TO BEG CONT 5.13ACRS MORE OR LESS SUBJ TO EASEMENTS OF RECORD |
| Photo & Sketch (if available) | Comp Sales (ordered by relevancy) |
|
||||||||||||||||||
|
||||||||||||||||||||
| Value History (*The County Treasurer 405-713-1300 posts & collects actual tax amounts. Contact information HERE) | |||||||||||||
|---|---|---|---|---|---|---|---|---|---|---|---|---|---|
| Year | Market Value | Taxable Mkt Value | Gross Assessed | Exemption | Net Assessed | Millage | Est. Tax | Tax Savings | |||||
|
2026 |
212,000 |
156,981 |
17,267 |
0 |
17,267 |
132.37 |
$2,286 |
$801 |
|||||
|
2025 |
213,500 |
149,506 |
16,445 |
0 |
16,445 |
132.37 |
$2,177 |
$932 |
|||||
|
2024 |
185,000 |
142,387 |
15,661 |
0 |
15,661 |
131.28 |
$2,056 |
$615 |
|||||
|
2023 |
189,000 |
135,607 |
14,916 |
0 |
14,916 |
131.88 |
$1,967 |
$775 |
|||||
|
2022 |
161,500 |
129,150 |
14,206 |
0 |
14,206 |
130.63 |
$1,856 |
$465 |
|||||
| Property Account Status/Adjustments/Exemptions | ||
|---|---|---|
| Account # | Exemption Description | Amount |
|
R144223928 |
5% Capped Account |
0 |
| Property Deed Transaction History (Recorded in the County Clerk's Office) | ||||||||||
|---|---|---|---|---|---|---|---|---|---|---|
| Date | Type | Book | Page | Price | Grantor | Grantee | ||||
|
6/29/2005 |
|
Deeds |
$0 |
OWENS KATHY & MARION |
OWENS BRUCE |
|||||
|
10/11/2004 |
|
Hmstd Off & |
$0 |
OWENS MARION & KATHY |
OWENS BRUCE |
|||||
|
1/5/2004 |
|
Hmstd Off & |
$0 |
OWENS BRUCE |
OWENS MARION & KATHY |
|||||
|
7/11/2003 |
|
Hmstd Off & |
$0 |
OWENS KATHY |
OWENS BRUCE |
|||||
|
3/3/2001 |
|
Deeds |
$0 |
SALISBURY STELLA OWENS KATHY |
OWENS KATHY |
|||||
| Last Mailed Notice of Value (N.O.V.) Information/History | ||||||||
|---|---|---|---|---|---|---|---|---|
| Year | Date | Market Value | Taxable Market Value | Gross Assessed | Exemption | Net Assessed | ||
|
2026 |
02/06/2026 |
212,000 |
156,981 |
17,267 |
0 |
17,267 |
||
|
2025 |
01/31/2025 |
213,500 |
149,506 |
16,445 |
0 |
16,445 |
||
|
2024 |
01/22/2024 |
185,000 |
142,387 |
15,661 |
0 |
15,661 |
||
|
2023 |
01/23/2023 |
189,000 |
135,607 |
14,916 |
0 |
14,916 |
||
|
2022 |
02/22/2022 |
161,500 |
129,150 |
14,206 |
0 |
14,206 |
||
| Property Building Permit History | |||||||||||
|---|---|---|---|---|---|---|---|---|---|---|---|
| Issued | Permit # | Provided by | Bldg # | Description | Est Construction Cost | Status | |||||
| No Building Permit records returned. | |||||||||||
| Click button on building number to access detailed information: | ||||||
|---|---|---|---|---|---|---|
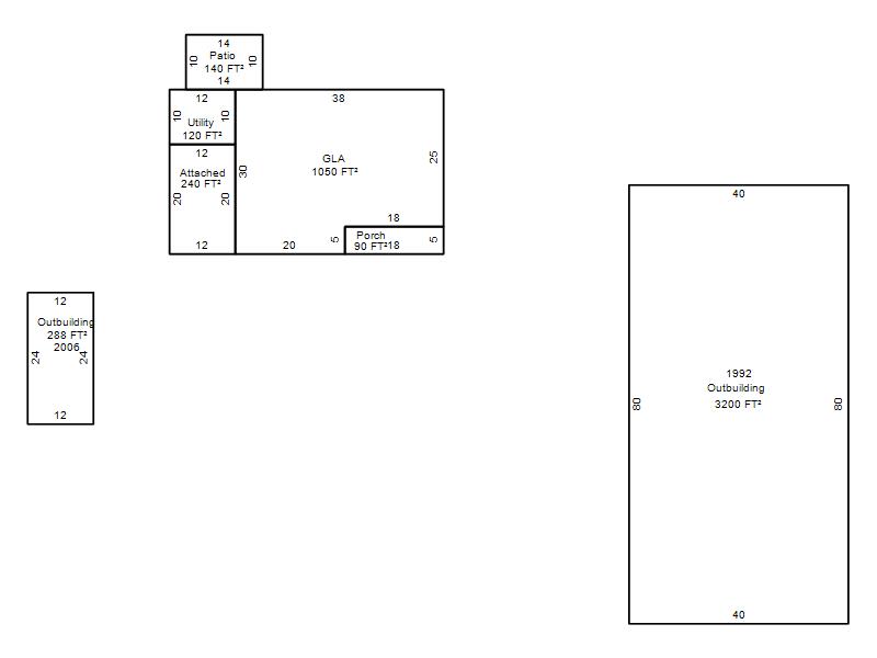
| Bldg # | Vacant/Improved Land | Bldg Description | Year Built | SqFt | # Stories | |
|
1 |
Improved |
Ranch 1 Story |
1986 |
1,050 |
1 Stories |
|