|
|
|
| Larry Stein Oklahoma County Assessor (405) 713-1200 - Public Access System |
|
|
|
|
|
|
| Real Property Display - Screen Produced 4/3/2026 6:59:12 PM | ||||
|---|---|---|---|---|
| Account: R132965020 | Type: Commercial | Location: |
205 NW 63RD ST |
|
| Building Name/Occupant: |
TWO BROADWAY EXECUTIVE PARK/ BANK OF OKLAHOMA MORTGAGE |
OKLAHOMA CITY |
||
| Owner Name 1: | BEP TWO LIMITED PARTNERSHIP |
Parcel PIN#: |
2614-13-296-5020 |
|
| Owner Name 2: | 1/4 section #: |
2614 |
||
| Owner Name 3: | Parent Acct: |
|
||
| Billing Address: | 5801 BROADWAY EXT, Unit 302 | Tax District: |
|
|
| City, State, Zip | OKLAHOMA CITY, OK 73118 | School System: |
Oklahoma City #89 |
|
|
Country: (If noted) |
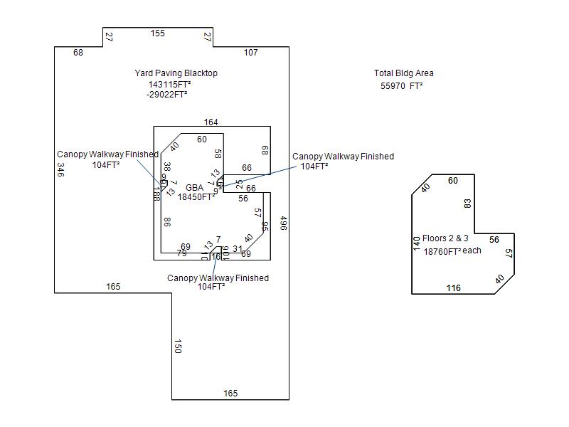
Land Size: |
140,698.0000 Square Feet |
||
|
Land Value: 996,227 |
|
|||
|
Sect 4-T12N-R3W Qtr SE |
UNPLTD PT SEC 04 12N 3W
Block
000
Lot
000
|
|||
| Full Legal Description: UNPLTD PT SEC 04 12N 3W 000 000 PT SE4 SEC 4 12N 3W BEG 1324.62FT W & 33FT N OF SE/C SE4 SD PT BEING SE/C LOT 24 BLK 2 VERNAL VIEW ADDN NOW VAC TH W165.33FT N150FT W165.29FT TO SW/C LOT 31 BLK 2 TH N346.76FT TOPOINT 3.24FT S OF NW/C LOT 44 BLK 2 TH E68FT N27.24FT E155FT S27.24FT E107.40FT TO POINT 3.24FT S OF NE/C LOT 5 BLK 2 TH S496.76FT TO BEG EX BEG 1324.62FT W & 33FT N OF SE/C SE4 TH W165.33FT N19.78FT E165.34FT S19.774FT TO BEG |
| No comparable sales report available. | ||||||||||||||||||||||
|
||||||||||||||||||||||
| Value History (*The County Treasurer 405-713-1300 posts & collects actual tax amounts. Contact information HERE) | |||||||||||||
|---|---|---|---|---|---|---|---|---|---|---|---|---|---|
| Year | Market Value | Taxable Mkt Value | Gross Assessed | Exemption | Net Assessed | Millage | Est. Tax | Tax Savings | |||||
|
2026 |
6,301,419 |
6,301,419 |
693,156 |
0 |
693,156 |
122.90 |
$85,189 |
$0 |
|||||
|
2025 |
6,301,419 |
6,301,419 |
693,156 |
0 |
693,156 |
122.90 |
$85,189 |
$0 |
|||||
|
2024 |
6,301,419 |
6,180,387 |
679,842 |
0 |
679,842 |
123.89 |
$84,226 |
$1,649 |
|||||
|
2023 |
6,301,419 |
5,886,083 |
647,468 |
0 |
647,468 |
122.82 |
$79,522 |
$5,611 |
|||||
|
2022 |
6,301,419 |
5,605,794 |
616,636 |
0 |
616,636 |
117.63 |
$72,535 |
$9,001 |
|||||
| Property Account Status/Adjustments/Exemptions | ||
|---|---|---|
| Account # | Exemption Description | Amount |
|
R132965020 |
5% Capped Account |
0 |
| Property Deed Transaction History (Recorded in the County Clerk's Office) | |||||||
|---|---|---|---|---|---|---|---|
| Date | Type | Book | Page | Price | Grantor | Grantee | |
|
7/29/1998 |
|
Historical |
$2,150,000 |
1000 HIGHLAND |
BEP TWO LIMITED PARTNERSHIP |
||
|
9/2/1997 |
|
Historical |
$0 |
SBC ASSET MANAGEMENT INC |
1000 HIGHLAND |
||
|
9/21/1990 |
|
Historical |
$0 |
BEP TWO DEVELOPMENT CO |
SBC ASSET MANAGEMENT INC |
||
|
6/1/1980 |
|
Historical |
$0 |
|
BEP TWO DEVELOPMENT CO |
||
| Last Mailed Notice of Value (N.O.V.) Information/History | ||||||||
|---|---|---|---|---|---|---|---|---|
| Year | Date | Market Value | Taxable Market Value | Gross Assessed | Exemption | Net Assessed | ||
|
2025 |
03/14/2025 |
6,301,419 |
6,301,419 |
693,156 |
0 |
693,156 |
||
|
2024 |
03/12/2024 |
6,301,419 |
6,180,387 |
679,842 |
0 |
679,842 |
||
|
2023 |
03/13/2023 |
6,301,419 |
5,886,083 |
647,468 |
0 |
647,468 |
||
|
2022 |
03/09/2022 |
6,301,419 |
5,605,794 |
616,636 |
0 |
616,636 |
||
|
2021 |
03/22/2021 |
6,301,419 |
5,338,852 |
587,273 |
0 |
587,273 |
||
| Property Building Permit History | |||||||||||
|---|---|---|---|---|---|---|---|---|---|---|---|
| Issued | Permit # | Provided by | Bldg # | Description | Est Construction Cost | Status | |||||
|
8/28/2025 |
BLDC-2025-03754 |
|
1 |
Remodeled |
399,864 |
Inactive |
|||||
|
9/24/2018 |
|
|
1 |
Remodeled |
250,000 |
Inactive |
|||||
|
10/23/2012 |
10446319 |
OKLAHOMA CITY |
1 |
Remodeled |
140,419 |
Inactive |
|||||
|
10/23/2008 |
10370399 |
OKLAHOMA CITY |
1 |
Remodeled |
75,000 |
Inactive |
|||||
|
12/22/1998 |
10230448 |
OKLAHOMA CITY |
1 |
Commercial |
23,000 |
Inactive |
|||||
| Click button on building number to access detailed information: | ||||||
|---|---|---|---|---|---|---|
| Bldg # | Vacant/Improved Land | Bldg Description | Year Built | SqFt | # Stories | |
|
1 |
Improved |
Office Style Executive |
1982 |
55,970 |
3 Stories |
|