|
|
|
| Larry Stein Oklahoma County Assessor (405) 713-1200 - Public Access System |
|
|
|
|
|
|
| Real Property Display - Screen Produced 4/3/2026 9:32:03 AM | ||||
|---|---|---|---|---|
| Account: R119882265 | Type: Residential | Location: |
2625 NW 68TH ST |
|
| Building Name/Occupant: |
|
OKLAHOMA CITY |
||
| Owner Name 1: | GIVENS JULEE ANNE |
Parcel PIN#: |
2623-11-988-2265 |
|
| Owner Name 2: | 1/4 section #: |
2623 |
||
| Owner Name 3: | Parent Acct: |
|
||
| Billing Address: | 2625 NW 68TH ST | Tax District: |
|
|
| City, State, Zip | OKLAHOMA CITY, OK 73116-4709 | School System: |
Oklahoma City #89 |
|
|
Country: (If noted) |
Land Size: |
0.2391 Acres |
||
|
Land Value: 65,088 |
|
|||
|
Sect 6-T12N-R3W Qtr SW |
TREADWELL GRAND VIEW CTRY CLB
Block
019
Lot
007
|
|||
| Full Legal Description: TREADWELL GRAND VIEW CTRY CLB 019 007 |
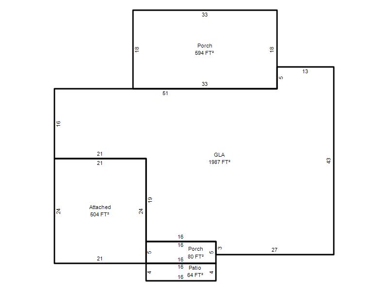
| Photo & Sketch (if available) | Comp Sales (ordered by relevancy) |
|
||||||||||||||||||
|
||||||||||||||||||||
| Value History (*The County Treasurer 405-713-1300 posts & collects actual tax amounts. Contact information HERE) | |||||||||||||
|---|---|---|---|---|---|---|---|---|---|---|---|---|---|
| Year | Market Value | Taxable Mkt Value | Gross Assessed | Exemption | Net Assessed | Millage | Est. Tax | Tax Savings | |||||
|
2026 |
394,500 |
394,500 |
43,395 |
0 |
43,395 |
122.90 |
$5,333 |
$0 |
|||||
|
2025 |
396,500 |
377,805 |
41,557 |
0 |
41,557 |
122.90 |
$5,108 |
$253 |
|||||
|
2024 |
387,500 |
359,815 |
39,578 |
0 |
39,578 |
123.89 |
$4,904 |
$377 |
|||||
|
2023 |
378,500 |
342,681 |
37,693 |
0 |
37,693 |
122.82 |
$4,630 |
$484 |
|||||
|
2022 |
344,500 |
326,363 |
35,899 |
0 |
35,899 |
117.63 |
$4,223 |
$235 |
|||||
| Property Account Status/Adjustments/Exemptions | ||
|---|---|---|
| Account # | Exemption Description | Amount |
|
R119882265 |
5% Capped Account |
0 |
| Property Deed Transaction History (Recorded in the County Clerk's Office) | ||||||||||
|---|---|---|---|---|---|---|---|---|---|---|
| Date | Type | Book | Page | Price | Grantor | Grantee | ||||
|
6/13/2008 |
|
Deeds |
$210,000 |
SHELLEY JOHN B & CANDACE ANN TRS SHELLEY JOHN B & CANDACE A |
GIVENS JULEE ANNE |
|||||
|
10/23/2007 |
|
Deeds |
$0 |
SHELLY JOHN B & CANDACE ANN |
SHELLEY JOHN B & CANDACE ANN TRS SHELLEY JOHN B & CANDACE A |
|||||
|
3/7/2005 |
|
Deeds |
$0 |
SHELLEY JOHN B CLARO CANDACE A |
SHELLY JOHN B & CANDACE ANN |
|||||
|
7/30/2004 |
|
Deeds |
$178,500 |
THIELKE DAVID JAMES & JENNIFER BROU |
SHELLEY JOHN B & CANDACE A |
|||||
|
6/30/1999 |
|
Deeds |
$117,500 |
BRADFORD ELIZABETH J |
THIELKE DAVID J & JENNIFER BROU |
|||||
| Last Mailed Notice of Value (N.O.V.) Information/History | ||||||||
|---|---|---|---|---|---|---|---|---|
| Year | Date | Market Value | Taxable Market Value | Gross Assessed | Exemption | Net Assessed | ||
|
2026 |
02/23/2026 |
394,500 |
394,500 |
43,395 |
0 |
43,395 |
||
|
2025 |
02/14/2025 |
396,500 |
377,805 |
41,557 |
0 |
41,557 |
||
|
2024 |
02/13/2024 |
387,500 |
359,815 |
39,578 |
0 |
39,578 |
||
|
2023 |
02/14/2023 |
378,500 |
342,681 |
37,693 |
0 |
37,693 |
||
|
2022 |
03/15/2022 |
344,500 |
326,363 |
35,899 |
0 |
35,899 |
||
| Property Building Permit History | ||||||
|---|---|---|---|---|---|---|
| Issued | Permit # | Provided by | Bldg # | Description | Est Construction Cost | Status |
|
8/21/2020 |
BLDR-2020-02715 |
|
1 |
Fire Remodel |
30,000 |
Inactive |
|
1/3/1992 |
10205915 |
OKLAHOMA CITY |
1 |
Burn - Trip |
8,750 |
Inactive |
| Click button on building number to access detailed information: | ||||||
|---|---|---|---|---|---|---|
| Bldg # | Vacant/Improved Land | Bldg Description | Year Built | SqFt | # Stories | |
|
1 |
Improved |
Ranch 1 Story |
1960 |
1,987 |
1 Stories |
|