|
|
|
| Larry Stein Oklahoma County Assessor (405) 713-1200 - Public Access System |
|
|
|
|
|
|
| Real Property Display - Screen Produced 4/2/2026 3:13:03 PM | ||||
|---|---|---|---|---|
| Account: R114670100 | Type: Residential | Location: |
2700 NW 58TH PL |
|
| Building Name/Occupant: |
|
OKLAHOMA CITY |
||
| Owner Name 1: | HENSON JESSICA C TRS |
Parcel PIN#: |
2628-11-467-0100 |
|
| Owner Name 2: | HENSON JESSICA C REV TRUST | 1/4 section #: |
2628 |
|
| Owner Name 3: | Parent Acct: |
|
||
| Billing Address: | 2700 NW 58TH PL | Tax District: |
|
|
| City, State, Zip | OKLAHOMA CITY, OK 73112 | School System: |
Oklahoma City #89 |
|
|
Country: (If noted) |
UNITED STATES |
Land Size: |
0.2020 Acres |
|
|
Land Value: 66,000 |
|
|||
|
Sect 7-T12N-R3W Qtr NW |
ORTNERS FAIRDALE ADDN 4TH
Block
007
Lot
001
|
|||
| Full Legal Description: ORTNERS FAIRDALE ADDN 4TH 007 001 |
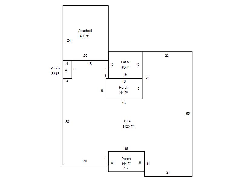
| Photo & Sketch (if available) | Comp Sales (ordered by relevancy) |
|
||||||||||||||||||
|
||||||||||||||||||||
| Value History (*The County Treasurer 405-713-1300 posts & collects actual tax amounts. Contact information HERE) | |||||||||||||
|---|---|---|---|---|---|---|---|---|---|---|---|---|---|
| Year | Market Value | Taxable Mkt Value | Gross Assessed | Exemption | Net Assessed | Millage | Est. Tax | Tax Savings | |||||
|
2026 |
417,500 |
373,949 |
41,133 |
0 |
41,133 |
122.90 |
$5,055 |
$589 |
|||||
|
2025 |
406,000 |
356,142 |
39,175 |
0 |
39,175 |
122.90 |
$4,815 |
$674 |
|||||
|
2024 |
381,000 |
339,183 |
37,309 |
0 |
37,309 |
123.89 |
$4,622 |
$570 |
|||||
|
2023 |
362,500 |
323,032 |
35,533 |
0 |
35,533 |
122.82 |
$4,364 |
$533 |
|||||
|
2022 |
328,500 |
307,650 |
33,841 |
0 |
33,841 |
117.63 |
$3,981 |
$270 |
|||||
| Property Account Status/Adjustments/Exemptions | ||
|---|---|---|
| Account # | Exemption Description | Amount |
|
R114670100 |
5% Capped Account |
0 |
| Property Deed Transaction History (Recorded in the County Clerk's Office) | |||||||
|---|---|---|---|---|---|---|---|
| Date | Type | Book | Page | Price | Grantor | Grantee | |
|
5/10/2018 |
|
Deeds |
$225,000 |
COX YVONNE TRS |
HENSON JESSICA C TRS |
||
|
4/13/2005 |
|
Deeds |
$0 |
COX YVONNE |
COX YVONNE TRS |
||
|
5/10/1989 |
|
Historical |
$0 |
COX IRWIN C & YVONNE |
COX YVONNE |
||
|
11/11/1911 |
|
Historical |
$0 |
|
COX IRWIN C & YVONNE |
||
| Last Mailed Notice of Value (N.O.V.) Information/History | ||||||||
|---|---|---|---|---|---|---|---|---|
| Year | Date | Market Value | Taxable Market Value | Gross Assessed | Exemption | Net Assessed | ||
|
2026 |
02/23/2026 |
417,500 |
373,949 |
41,133 |
0 |
41,133 |
||
|
2025 |
02/14/2025 |
406,000 |
356,142 |
39,175 |
0 |
39,175 |
||
|
2024 |
02/13/2024 |
381,000 |
339,183 |
37,309 |
0 |
37,309 |
||
|
2023 |
02/14/2023 |
362,500 |
323,032 |
35,533 |
0 |
35,533 |
||
|
2022 |
03/15/2022 |
328,500 |
307,650 |
33,841 |
0 |
33,841 |
||
| Property Building Permit History | |||||||||||
|---|---|---|---|---|---|---|---|---|---|---|---|
| Issued | Permit # | Provided by | Bldg # | Description | Est Construction Cost | Status | |||||
| No Building Permit records returned. | |||||||||||
| Click button on building number to access detailed information: | ||||||
|---|---|---|---|---|---|---|
| Bldg # | Vacant/Improved Land | Bldg Description | Year Built | SqFt | # Stories | |
|
1 |
Improved |
Ranch 1 Story |
1966 |
2,423 |
1 Stories |
|