|
|
|
| Larry Stein Oklahoma County Assessor (405) 713-1200 - Public Access System |
|
|
|
|
|
|
| Real Property Display - Screen Produced 4/2/2026 3:13:04 PM | ||||
|---|---|---|---|---|
| Account: R114670730 | Type: Residential | Location: |
2700 NW 61ST ST |
|
| Building Name/Occupant: |
|
OKLAHOMA CITY |
||
| Owner Name 1: | WESTBROOK PAMELA A TRS |
Parcel PIN#: |
2628-11-467-0730 |
|
| Owner Name 2: | WESTBROOK REV TRUST | 1/4 section #: |
2628 |
|
| Owner Name 3: | Parent Acct: |
|
||
| Billing Address: | 2700 NW 61ST ST | Tax District: |
|
|
| City, State, Zip | OKLAHOMA CITY, OK 73112 | School System: |
Oklahoma City #89 |
|
|
Country: (If noted) |
Land Size: |
0.2020 Acres |
||
|
Land Value: 83,160 |
|
|||
|
Sect 7-T12N-R3W Qtr NW |
ORTNERS FAIRDALE ADDN 4TH
Block
010
Lot
018
|
|||
| Full Legal Description: ORTNERS FAIRDALE ADDN 4TH 010 018 |
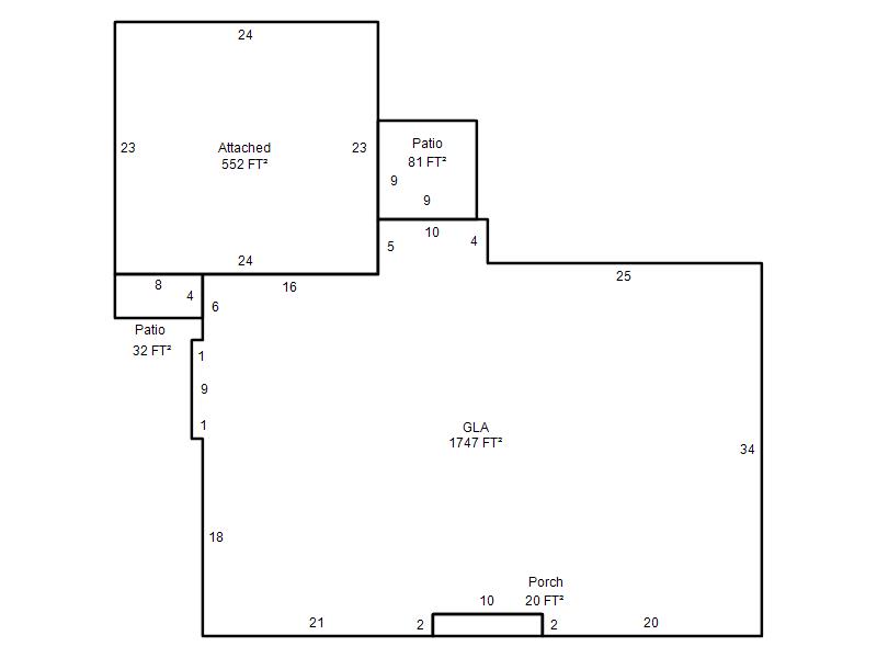
| Photo & Sketch (if available) | Comp Sales (ordered by relevancy) |
|
||||||||||||||||||
|
||||||||||||||||||||
| Value History (*The County Treasurer 405-713-1300 posts & collects actual tax amounts. Contact information HERE) | |||||||||||||
|---|---|---|---|---|---|---|---|---|---|---|---|---|---|
| Year | Market Value | Taxable Mkt Value | Gross Assessed | Exemption | Net Assessed | Millage | Est. Tax | Tax Savings | |||||
|
2026 |
328,000 |
260,668 |
28,673 |
1,000 |
27,673 |
122.90 |
$3,401 |
$1,033 |
|||||
|
2025 |
320,500 |
253,076 |
27,837 |
1,000 |
26,837 |
122.90 |
$3,298 |
$1,034 |
|||||
|
2024 |
300,000 |
245,705 |
27,027 |
1,000 |
26,027 |
123.89 |
$3,225 |
$864 |
|||||
|
2023 |
288,000 |
238,549 |
26,240 |
1,000 |
25,240 |
122.82 |
$3,100 |
$791 |
|||||
|
2022 |
262,000 |
231,601 |
25,476 |
1,000 |
24,476 |
117.63 |
$2,879 |
$511 |
|||||
| Property Account Status/Adjustments/Exemptions | ||
|---|---|---|
| Account # | Exemption Description | Amount |
|
R114670730 |
3% Cap Homestead |
0 |
|
R114670730 |
Homestead |
1,000 |
| Property Deed Transaction History (Recorded in the County Clerk's Office) | |||||||
|---|---|---|---|---|---|---|---|
| Date | Type | Book | Page | Price | Grantor | Grantee | |
|
2/8/2023 |
|
Deeds |
$0 |
WESTBROOK PAMELA A |
WESTBROOK PAMELA A TRS |
||
|
7/9/1999 |
|
Deeds |
$125,000 |
HANKS ROBERT DALE |
WESTBROOK PAMELA A |
||
|
5/20/1998 |
|
Historical |
$93,000 |
SUTTON POLLY RAHCEL |
HANKS ROBERT DALE |
||
|
11/18/1991 |
|
Historical |
$0 |
SUTTON CHARLES W & POLLY M |
SUTTON POLLY RAHCEL |
||
|
11/11/1911 |
|
Historical |
$0 |
|
SUTTON CHARLES W & POLLY M |
||
| Last Mailed Notice of Value (N.O.V.) Information/History | ||||||||
|---|---|---|---|---|---|---|---|---|
| Year | Date | Market Value | Taxable Market Value | Gross Assessed | Exemption | Net Assessed | ||
|
2026 |
02/23/2026 |
328,000 |
260,668 |
28,673 |
1,000 |
27,673 |
||
|
2025 |
02/14/2025 |
320,500 |
253,076 |
27,837 |
1,000 |
26,837 |
||
|
2024 |
02/13/2024 |
300,000 |
245,705 |
27,027 |
1,000 |
26,027 |
||
|
2023 |
02/14/2023 |
288,000 |
238,549 |
26,240 |
1,000 |
25,240 |
||
|
2023 |
03/02/2023 |
288,000 |
238,549 |
26,240 |
1,000 |
25,240 |
||
| Property Building Permit History | |||||||||||
|---|---|---|---|---|---|---|---|---|---|---|---|
| Issued | Permit # | Provided by | Bldg # | Description | Est Construction Cost | Status | |||||
| No Building Permit records returned. | |||||||||||
| Click button on building number to access detailed information: | ||||||
|---|---|---|---|---|---|---|
| Bldg # | Vacant/Improved Land | Bldg Description | Year Built | SqFt | # Stories | |
|
1 |
Improved |
Ranch 1 Story |
1968 |
1,747 |
1 Stories |
|