|
|
|
| Larry Stein Oklahoma County Assessor (405) 713-1200 - Public Access System |
|
|
|
|
|
|
| Real Property Display - Screen Produced 4/2/2026 3:13:04 PM | ||||
|---|---|---|---|---|
| Account: R114670810 | Type: Residential | Location: |
6104 N ROSS AVE |
|
| Building Name/Occupant: |
|
OKLAHOMA CITY |
||
| Owner Name 1: | ACR HOLDINGS LLC |
Parcel PIN#: |
2628-11-467-0810 |
|
| Owner Name 2: | 1/4 section #: |
2628 |
||
| Owner Name 3: | Parent Acct: |
|
||
| Billing Address: | PO BOX 23062 | Tax District: |
|
|
| City, State, Zip | OKLAHOMA CITY, OK 73123-2062 | School System: |
Oklahoma City #89 |
|
|
Country: (If noted) |
Land Size: |
0.1736 Acres |
||
|
Land Value: 41,580 |
|
|||
|
Sect 7-T12N-R3W Qtr NW |
ORTNERS FAIRDALE ADDN 4TH
Block
010
Lot
026
|
|||
| Full Legal Description: ORTNERS FAIRDALE ADDN 4TH 010 026 |
| Photo & Sketch (if available) | Comp Sales (ordered by relevancy) |
|
||||||||||||||||||
|
||||||||||||||||||||
| Value History (*The County Treasurer 405-713-1300 posts & collects actual tax amounts. Contact information HERE) | |||||||||||||
|---|---|---|---|---|---|---|---|---|---|---|---|---|---|
| Year | Market Value | Taxable Mkt Value | Gross Assessed | Exemption | Net Assessed | Millage | Est. Tax | Tax Savings | |||||
|
2026 |
343,500 |
343,500 |
37,785 |
0 |
37,785 |
122.90 |
$4,644 |
$0 |
|||||
|
2025 |
341,500 |
341,500 |
37,565 |
0 |
37,565 |
122.90 |
$4,617 |
$0 |
|||||
|
2024 |
332,500 |
287,466 |
31,620 |
0 |
31,620 |
123.89 |
$3,918 |
$614 |
|||||
|
2023 |
340,000 |
273,778 |
30,115 |
0 |
30,115 |
122.82 |
$3,699 |
$895 |
|||||
|
2022 |
272,500 |
260,741 |
28,680 |
0 |
28,680 |
117.63 |
$3,374 |
$152 |
|||||
| Property Account Status/Adjustments/Exemptions | ||
|---|---|---|
| Account # | Exemption Description | Amount |
|
R114670810 |
5% Capped Account |
0 |
| Property Deed Transaction History (Recorded in the County Clerk's Office) | ||||||||||
|---|---|---|---|---|---|---|---|---|---|---|
| Date | Type | Book | Page | Price | Grantor | Grantee | ||||
|
3/8/2024 |
|
Deeds |
$295,000 |
RED ROCK PROPERTY MANAGEMENT LLC |
ACR HOLDINGS LLC |
|||||
|
11/26/2007 |
|
Hmstd Off & |
$0 |
MAY DEVELOPMENT CO LLC |
RED ROCK PROPERTY MANAGEMENT LLC |
|||||
|
7/22/2003 |
|
Deeds |
$0 |
YINGLING OIL INC |
MAY DEVELOPMENT CO LLC |
|||||
|
12/27/2002 |
|
|
$0 |
YINGLING OIL INC LONGWORTH ENERGY INC |
MAY DEVELOPMENT CO LLC |
|||||
|
8/31/1998 |
|
Historical |
$141,500 |
WEBB PEARL E CO TRS |
YINGLING OIL INC |
|||||
| Last Mailed Notice of Value (N.O.V.) Information/History | ||||||||
|---|---|---|---|---|---|---|---|---|
| Year | Date | Market Value | Taxable Market Value | Gross Assessed | Exemption | Net Assessed | ||
|
2026 |
02/23/2026 |
343,500 |
343,500 |
37,785 |
0 |
37,785 |
||
|
2025 |
02/14/2025 |
341,500 |
341,500 |
37,565 |
0 |
37,565 |
||
|
2024 |
02/13/2024 |
332,500 |
287,466 |
31,620 |
0 |
31,620 |
||
|
2024 |
04/05/2024 |
332,500 |
287,466 |
31,620 |
0 |
31,620 |
||
|
2023 |
02/14/2023 |
340,000 |
273,778 |
30,115 |
0 |
30,115 |
||
| Property Building Permit History | |||||||||||
|---|---|---|---|---|---|---|---|---|---|---|---|
| Issued | Permit # | Provided by | Bldg # | Description | Est Construction Cost | Status | |||||
| No Building Permit records returned. | |||||||||||
| Click button on building number to access detailed information: | ||||||
|---|---|---|---|---|---|---|
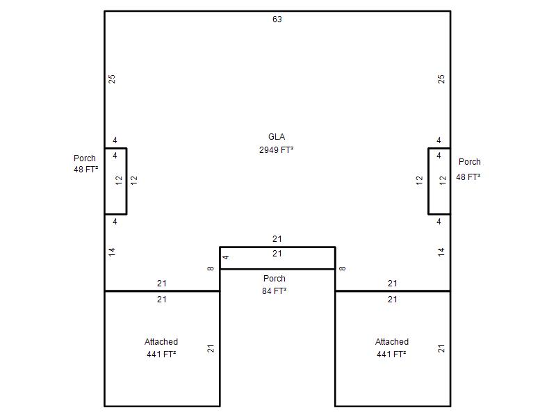
| Bldg # | Vacant/Improved Land | Bldg Description | Year Built | SqFt | # Stories | |
|
1 |
Improved |
Duplex One Story |
1971 |
2,949 |
1 Stories |
|