|
|
|
| Larry Stein Oklahoma County Assessor (405) 713-1200 - Public Access System |
|
|
|
|
|
|
| Real Property Display - Screen Produced 4/5/2026 7:01:54 AM | ||||
|---|---|---|---|---|
| Account: R149802985 | Type: Residential | Location: |
1713 NE 58TH ST |
|
| Building Name/Occupant: |
|
OKLAHOMA CITY |
||
| Owner Name 1: | LONG DETRICK & NATASHA |
Parcel PIN#: |
2641-14-980-2985 |
|
| Owner Name 2: | 1/4 section #: |
2641 |
||
| Owner Name 3: | Parent Acct: |
|
||
| Billing Address: | 2220 NW 157TH ST | Tax District: |
|
|
| City, State, Zip | EDMOND, OK 73013-1729 | School System: |
Millwood #37 |
|
|
Country: (If noted) |
Land Size: |
0.2552 Acres |
||
|
Land Value: 27,788 |
|
|||
|
Sect 11-T12N-R3W Qtr NE |
CASHIONS WILDEWOOD
Block
015
Lot
011
|
|||
| Full Legal Description: CASHIONS WILDEWOOD 015 011 |
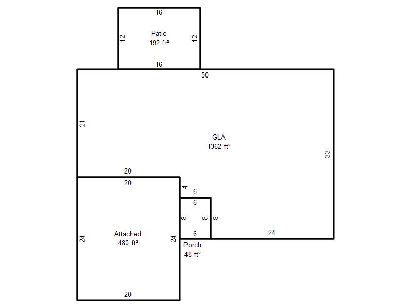
| Photo & Sketch (if available) | Comp Sales (ordered by relevancy) |
|
||||||||||||||||||
|
||||||||||||||||||||
| Value History (*The County Treasurer 405-713-1300 posts & collects actual tax amounts. Contact information HERE) | |||||||||||||
|---|---|---|---|---|---|---|---|---|---|---|---|---|---|
| Year | Market Value | Taxable Mkt Value | Gross Assessed | Exemption | Net Assessed | Millage | Est. Tax | Tax Savings | |||||
|
2026 |
171,500 |
122,615 |
13,487 |
0 |
13,487 |
131.17 |
$1,769 |
$705 |
|||||
|
2025 |
170,500 |
116,777 |
12,844 |
0 |
12,844 |
131.17 |
$1,685 |
$775 |
|||||
|
2024 |
169,000 |
111,217 |
12,233 |
0 |
12,233 |
132.60 |
$1,622 |
$843 |
|||||
|
2023 |
151,500 |
105,921 |
11,650 |
0 |
11,650 |
134.52 |
$1,567 |
$674 |
|||||
|
2022 |
116,500 |
100,878 |
11,096 |
0 |
11,096 |
129.77 |
$1,440 |
$223 |
|||||
| Property Account Status/Adjustments/Exemptions | ||
|---|---|---|
| Account # | Exemption Description | Amount |
|
R149802985 |
5% Capped Account |
0 |
| Property Deed Transaction History (Recorded in the County Clerk's Office) | |||||||
|---|---|---|---|---|---|---|---|
| Date | Type | Book | Page | Price | Grantor | Grantee | |
|
2/16/2001 |
|
Deeds |
$66,500 |
LOVE J DAVID II |
LONG DETRICK & NATASHA |
||
|
9/25/1995 |
|
Historical |
$0 |
SECRETARY OF VETERANS AFFAIRS |
LOVE J DAVID II |
||
|
3/9/1995 |
|
Historical |
$0 |
POINTER LEE E & GLORIA H |
SECRETARY OF VETERANS AFFAIRS |
||
|
11/11/1911 |
|
Historical |
$0 |
|
POINTER LEE E & GLORIA H |
||
| Last Mailed Notice of Value (N.O.V.) Information/History | ||||||||
|---|---|---|---|---|---|---|---|---|
| Year | Date | Market Value | Taxable Market Value | Gross Assessed | Exemption | Net Assessed | ||
|
2026 |
02/23/2026 |
171,500 |
122,615 |
13,487 |
0 |
13,487 |
||
|
2025 |
02/14/2025 |
170,500 |
116,777 |
12,844 |
0 |
12,844 |
||
|
2024 |
02/13/2024 |
169,000 |
111,217 |
12,233 |
0 |
12,233 |
||
|
2023 |
02/14/2023 |
151,500 |
105,921 |
11,650 |
0 |
11,650 |
||
|
2022 |
03/15/2022 |
116,500 |
100,878 |
11,096 |
0 |
11,096 |
||
| Property Building Permit History | ||||||
|---|---|---|---|---|---|---|
| Issued | Permit # | Provided by | Bldg # | Description | Est Construction Cost | Status |
|
12/31/2018 |
|
|
1 |
Burn - Trip |
4,000 |
Inactive |
| Click button on building number to access detailed information: | ||||||
|---|---|---|---|---|---|---|
| Bldg # | Vacant/Improved Land | Bldg Description | Year Built | SqFt | # Stories | |
|
1 |
Improved |
Ranch 1 Story |
1972 |
1,362 |
1 Stories |
|