|
|
|
| Larry Stein Oklahoma County Assessor (405) 713-1200 - Public Access System |
|
|
|
|
|
|
| Real Property Display - Screen Produced 4/5/2026 7:01:54 AM | ||||
|---|---|---|---|---|
| Account: R149803195 | Type: Residential | Location: |
5941 N TERRY AVE |
|
| Building Name/Occupant: |
|
OKLAHOMA CITY |
||
| Owner Name 1: | M6 INVESTMENTS LLC |
Parcel PIN#: |
2641-14-980-3195 |
|
| Owner Name 2: | 1/4 section #: |
2641 |
||
| Owner Name 3: | Parent Acct: |
|
||
| Billing Address: | PO BOX 8272 | Tax District: |
|
|
| City, State, Zip | EDMOND, OK 73083-8272 | School System: |
Millwood #37 |
|
|
Country: (If noted) |
Land Size: |
0.1891 Acres |
||
|
Land Value: 20,590 |
|
|||
|
Sect 11-T12N-R3W Qtr NE |
CASHIONS WILDEWOOD
Block
016
Lot
011
|
|||
| Full Legal Description: CASHIONS WILDEWOOD 016 011 |
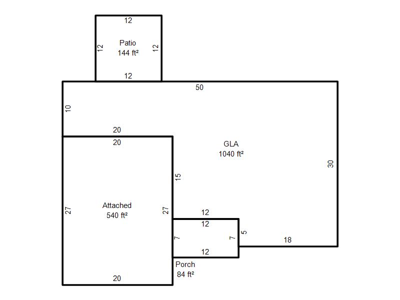
| Photo & Sketch (if available) | Comp Sales (ordered by relevancy) |
|
||||||||||||||||||
|
||||||||||||||||||||
| Value History (*The County Treasurer 405-713-1300 posts & collects actual tax amounts. Contact information HERE) | |||||||||||||
|---|---|---|---|---|---|---|---|---|---|---|---|---|---|
| Year | Market Value | Taxable Mkt Value | Gross Assessed | Exemption | Net Assessed | Millage | Est. Tax | Tax Savings | |||||
|
2026 |
125,500 |
90,859 |
9,993 |
0 |
9,993 |
131.17 |
$1,311 |
$500 |
|||||
|
2025 |
125,000 |
86,533 |
9,518 |
0 |
9,518 |
131.17 |
$1,249 |
$555 |
|||||
|
2024 |
126,500 |
82,413 |
9,064 |
0 |
9,064 |
132.60 |
$1,202 |
$643 |
|||||
|
2023 |
114,000 |
78,489 |
8,633 |
0 |
8,633 |
134.52 |
$1,161 |
$525 |
|||||
|
2022 |
86,000 |
74,752 |
8,221 |
0 |
8,221 |
129.77 |
$1,067 |
$161 |
|||||
| Property Account Status/Adjustments/Exemptions | ||
|---|---|---|
| Account # | Exemption Description | Amount |
|
R149803195 |
5% Capped Account |
0 |
| Property Deed Transaction History (Recorded in the County Clerk's Office) | |||||||
|---|---|---|---|---|---|---|---|
| Date | Type | Book | Page | Price | Grantor | Grantee | |
|
6/6/2017 |
|
Deeds |
$49,000 |
MCCRAY OZELLA DELORES |
M6 INVESTMENTS LLC |
||
|
7/1/1986 |
|
Historical |
$0 |
|
MCCRAY OZELLA DELORES |
||
| Last Mailed Notice of Value (N.O.V.) Information/History | ||||||||
|---|---|---|---|---|---|---|---|---|
| Year | Date | Market Value | Taxable Market Value | Gross Assessed | Exemption | Net Assessed | ||
|
2026 |
02/23/2026 |
125,500 |
90,859 |
9,993 |
0 |
9,993 |
||
|
2025 |
02/14/2025 |
125,000 |
86,533 |
9,518 |
0 |
9,518 |
||
|
2024 |
02/13/2024 |
126,500 |
82,413 |
9,064 |
0 |
9,064 |
||
|
2023 |
02/14/2023 |
114,000 |
78,489 |
8,633 |
0 |
8,633 |
||
|
2022 |
03/15/2022 |
86,000 |
74,752 |
8,221 |
0 |
8,221 |
||
| Property Building Permit History | |||||||||||
|---|---|---|---|---|---|---|---|---|---|---|---|
| Issued | Permit # | Provided by | Bldg # | Description | Est Construction Cost | Status | |||||
| No Building Permit records returned. | |||||||||||
| Click button on building number to access detailed information: | ||||||
|---|---|---|---|---|---|---|
| Bldg # | Vacant/Improved Land | Bldg Description | Year Built | SqFt | # Stories | |
|
1 |
Improved |
Ranch 1 Story |
1963 |
1,040 |
1 Stories |
|