|
|
|
| Larry Stein Oklahoma County Assessor (405) 713-1200 - Public Access System |
|
|
|
|
|
|
| Real Property Display - Screen Produced 4/6/2026 2:08:02 PM | ||||
|---|---|---|---|---|
| Account: R144314041 | Type: Residential | Location: |
13601 KASBAUM LN |
|
| Building Name/Occupant: |
|
OKLAHOMA CITY |
||
| Owner Name 1: | POTTER STEPHEN J & MELINA |
Parcel PIN#: |
1334-14-431-4041 |
|
| Owner Name 2: | 1/4 section #: |
1334 |
||
| Owner Name 3: | Parent Acct: |
|
||
| Billing Address: | 13601 KASBAUM LN | Tax District: |
|
|
| City, State, Zip | OKLAHOMA CITY, OK 73150-8426 | School System: |
Mid-Del #52 |
|
|
Country: (If noted) |
Land Size: |
2.5000 Acres |
||
|
Land Value: 47,626 |
|
|||
|
Sect 34-T11N-R1W Qtr SE |
UNPLTD PT SEC 34 11N 1W
Block
000
Lot
000
|
|||
| Full Legal Description: UNPLTD PT SEC 34 11N 1W 000 000 PT OF SE4 SEC 34 11N 1W BEG 534FT S & 410FT E OF NW/C OF W 1/2 OF SE4 TH E410FT N267FT W410FT S267FT TO BEG CONT 2 1/2ACRS MORE OR LESS TR 11 |
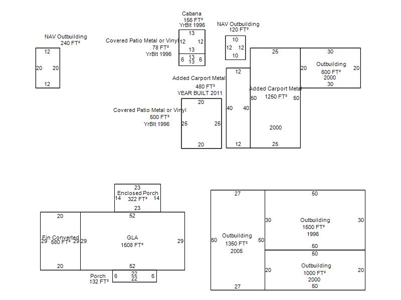
| Photo & Sketch (if available) | Comp Sales (ordered by relevancy) |
|
||||||||||||||||||
|
||||||||||||||||||||
| Value History (*The County Treasurer 405-713-1300 posts & collects actual tax amounts. Contact information HERE) | |||||||||||||
|---|---|---|---|---|---|---|---|---|---|---|---|---|---|
| Year | Market Value | Taxable Mkt Value | Gross Assessed | Exemption | Net Assessed | Millage | Est. Tax | Tax Savings | |||||
|
2026 |
372,000 |
302,197 |
33,241 |
1,000 |
32,241 |
126.46 |
$4,077 |
$1,097 |
|||||
|
2025 |
383,000 |
293,396 |
32,272 |
1,000 |
31,272 |
126.46 |
$3,955 |
$1,373 |
|||||
|
2024 |
337,500 |
284,851 |
31,333 |
1,000 |
30,333 |
128.51 |
$3,898 |
$873 |
|||||
|
2023 |
368,500 |
276,555 |
30,421 |
1,000 |
29,421 |
122.94 |
$3,617 |
$1,366 |
|||||
|
2022 |
268,500 |
268,500 |
29,535 |
1,000 |
28,535 |
122.11 |
$3,484 |
$122 |
|||||
| Property Account Status/Adjustments/Exemptions | ||
|---|---|---|
| Account # | Exemption Description | Amount |
|
R144314041 |
3% Cap Homestead |
0 |
|
R144314041 |
Homestead |
1,000 |
| Property Deed Transaction History (Recorded in the County Clerk's Office) | |||||||
|---|---|---|---|---|---|---|---|
| Date | Type | Book | Page | Price | Grantor | Grantee | |
|
10/29/2018 |
|
Deeds |
$280,000 |
COLE RICK & SHARON CO TRS |
POTTER STEPHEN J & MELINA |
||
|
8/11/2006 |
|
Deeds |
$0 |
COLE RICKY DEAN & SHARON J |
COLE RICK & SHARON CO TRS |
||
|
3/1/1983 |
|
Historical |
$0 |
|
COLE RICKY DEAN & SHARON J |
||
| Last Mailed Notice of Value (N.O.V.) Information/History | ||||||||
|---|---|---|---|---|---|---|---|---|
| Year | Date | Market Value | Taxable Market Value | Gross Assessed | Exemption | Net Assessed | ||
|
2026 |
02/06/2026 |
372,000 |
302,197 |
33,241 |
1,000 |
32,241 |
||
|
2025 |
01/31/2025 |
383,000 |
293,396 |
32,272 |
1,000 |
31,272 |
||
|
2024 |
01/22/2024 |
337,500 |
284,851 |
31,333 |
1,000 |
30,333 |
||
|
2023 |
01/23/2023 |
368,500 |
276,555 |
30,421 |
1,000 |
29,421 |
||
|
2021 |
02/24/2021 |
278,500 |
276,555 |
30,421 |
1,000 |
29,421 |
||
| Property Building Permit History | ||||||
|---|---|---|---|---|---|---|
| Issued | Permit # | Provided by | Bldg # | Description | Est Construction Cost | Status |
|
5/11/2010 |
10399192 |
OKLAHOMA CITY |
1 |
Other |
2,010 |
Inactive |
| Click button on building number to access detailed information: | ||||||
|---|---|---|---|---|---|---|
| Bldg # | Vacant/Improved Land | Bldg Description | Year Built | SqFt | # Stories | |
|
1 |
Improved |
Ranch 1 Story |
1980 |
1,508 |
1 Stories |
|