|
|
|
| Larry Stein Oklahoma County Assessor (405) 713-1200 - Public Access System |
|
|
|
|
|
|
| Real Property Display - Screen Produced 4/4/2026 2:02:10 PM | ||||
|---|---|---|---|---|
| Account: R149811055 | Type: Residential | Location: |
1156 NE 59TH ST |
|
| Building Name/Occupant: |
|
OKLAHOMA CITY |
||
| Owner Name 1: | FIELDS MANILLA |
Parcel PIN#: |
2644-14-981-1055 |
|
| Owner Name 2: | 1/4 section #: |
2644 |
||
| Owner Name 3: | Parent Acct: |
|
||
| Billing Address: | 1156 NE 59TH ST | Tax District: |
|
|
| City, State, Zip | OKLAHOMA CITY, OK 73111-7402 | School System: |
Millwood #37 |
|
|
Country: (If noted) |
Land Size: |
0.2689 Acres |
||
|
Land Value: 18,041 |
|
|||
|
Sect 11-T12N-R3W Qtr NW |
RICHARDSONS WILDEWOOD MANOR
Block
001
Lot
006
|
|||
| Full Legal Description: RICHARDSONS WILDEWOOD MANOR 001 006 |
| Photo & Sketch (if available) | Comp Sales (ordered by relevancy) |
|
||||||||||||||||||
|
||||||||||||||||||||
| Value History (*The County Treasurer 405-713-1300 posts & collects actual tax amounts. Contact information HERE) | |||||||||||||
|---|---|---|---|---|---|---|---|---|---|---|---|---|---|
| Year | Market Value | Taxable Mkt Value | Gross Assessed | Exemption | Net Assessed | Millage | Est. Tax | Tax Savings | |||||
|
2026 |
213,000 |
131,740 |
14,491 |
1,000 |
13,491 |
131.17 |
$1,770 |
$1,304 |
|||||
|
2025 |
212,500 |
127,903 |
14,068 |
1,000 |
13,068 |
131.17 |
$1,714 |
$1,352 |
|||||
|
2024 |
211,500 |
124,178 |
13,658 |
1,000 |
12,658 |
132.60 |
$1,679 |
$1,406 |
|||||
|
2023 |
188,000 |
120,562 |
13,261 |
1,000 |
12,261 |
134.52 |
$1,649 |
$1,132 |
|||||
|
2022 |
158,000 |
117,051 |
12,875 |
1,000 |
11,875 |
129.77 |
$1,541 |
$714 |
|||||
| Property Account Status/Adjustments/Exemptions | ||
|---|---|---|
| Account # | Exemption Description | Amount |
|
R149811055 |
3% Cap Homestead |
0 |
|
R149811055 |
Homestead |
1,000 |
| Property Deed Transaction History (Recorded in the County Clerk's Office) | |||||||
|---|---|---|---|---|---|---|---|
| Date | Type | Book | Page | Price | Grantor | Grantee | |
|
2/28/2007 |
|
Deeds |
$105,000 |
GRAVES JOHN & ROSIE HAWKINS MARVIN KEITH |
FIELDS MANILLA |
||
|
12/29/1995 |
|
Historical |
$0 |
HAWKINS ROSIE LEE |
GRAVES JOHN & ROSIE |
||
|
6/1/1985 |
|
Historical |
$0 |
|
HAWKINS ROSIE LEE |
||
| Last Mailed Notice of Value (N.O.V.) Information/History | ||||||||
|---|---|---|---|---|---|---|---|---|
| Year | Date | Market Value | Taxable Market Value | Gross Assessed | Exemption | Net Assessed | ||
|
2026 |
02/23/2026 |
213,000 |
131,740 |
14,491 |
1,000 |
13,491 |
||
|
2025 |
02/14/2025 |
212,500 |
127,903 |
14,068 |
1,000 |
13,068 |
||
|
2024 |
02/13/2024 |
211,500 |
124,178 |
13,658 |
1,000 |
12,658 |
||
|
2023 |
02/14/2023 |
188,000 |
120,562 |
13,261 |
1,000 |
12,261 |
||
|
2022 |
03/15/2022 |
158,000 |
117,051 |
12,875 |
1,000 |
11,875 |
||
| Property Building Permit History | ||||||
|---|---|---|---|---|---|---|
| Issued | Permit # | Provided by | Bldg # | Description | Est Construction Cost | Status |
|
2/13/1995 |
10244358 |
OKLAHOMA CITY |
1 |
Main Dwellin |
26,000 |
Inactive |
| Click button on building number to access detailed information: | ||||||
|---|---|---|---|---|---|---|
| Bldg # | Vacant/Improved Land | Bldg Description | Year Built | SqFt | # Stories | |
|
1 |
Improved |
Ranch 1 Story |
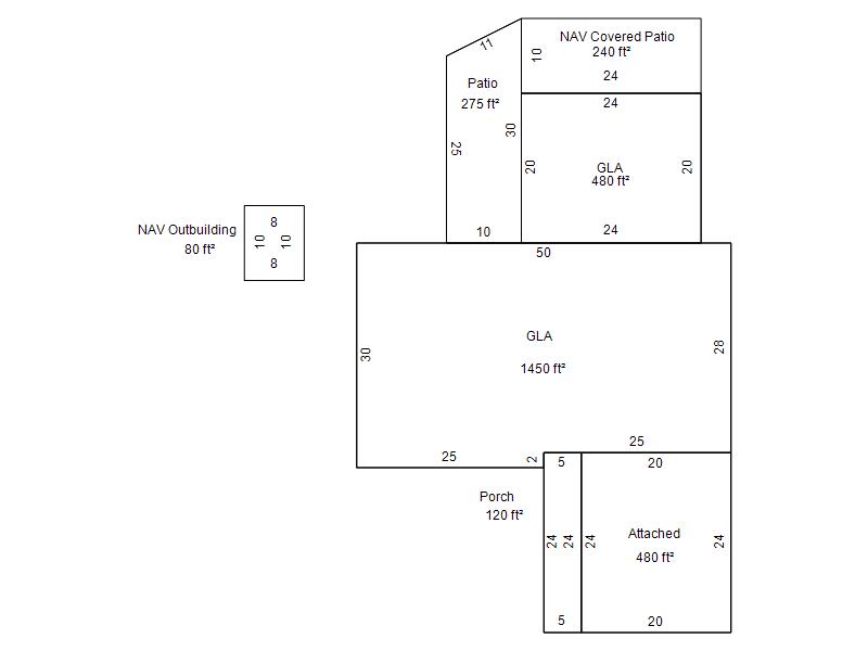
1960 |
1,930 |
1 Stories |
|