|
|
|
| Larry Stein Oklahoma County Assessor (405) 713-1200 - Public Access System |
|
|
|
|
|
|
| Real Property Display - Screen Produced 4/4/2026 2:02:10 PM | ||||
|---|---|---|---|---|
| Account: R149811075 | Type: Residential | Location: |
1148 NE 59TH ST |
|
| Building Name/Occupant: |
|
OKLAHOMA CITY |
||
| Owner Name 1: | LANG VALENCIA SHANTAE |
Parcel PIN#: |
2644-14-981-1075 |
|
| Owner Name 2: | 1/4 section #: |
2644 |
||
| Owner Name 3: | Parent Acct: |
|
||
| Billing Address: | 1148 NE 59TH ST | Tax District: |
|
|
| City, State, Zip | OKLAHOMA CITY, OK 73111 | School System: |
Millwood #37 |
|
|
Country: (If noted) |
Land Size: |
0.2565 Acres |
||
|
Land Value: 17,205 |
|
|||
|
Sect 11-T12N-R3W Qtr NW |
RICHARDSONS WILDEWOOD MANOR
Block
001
Lot
008
|
|||
| Full Legal Description: RICHARDSONS WILDEWOOD MANOR 001 008 |
| Photo & Sketch (if available) | Comp Sales (ordered by relevancy) |
|
||||||||||||||||||
|
||||||||||||||||||||
| Value History (*The County Treasurer 405-713-1300 posts & collects actual tax amounts. Contact information HERE) | |||||||||||||
|---|---|---|---|---|---|---|---|---|---|---|---|---|---|
| Year | Market Value | Taxable Mkt Value | Gross Assessed | Exemption | Net Assessed | Millage | Est. Tax | Tax Savings | |||||
|
2026 |
175,500 |
137,909 |
15,169 |
1,000 |
14,169 |
131.17 |
$1,859 |
$674 |
|||||
|
2025 |
175,000 |
133,893 |
14,727 |
1,000 |
13,727 |
131.17 |
$1,801 |
$724 |
|||||
|
2024 |
174,000 |
129,994 |
14,298 |
1,000 |
13,298 |
132.60 |
$1,763 |
$774 |
|||||
|
2023 |
155,000 |
126,208 |
13,882 |
1,000 |
12,882 |
134.52 |
$1,733 |
$561 |
|||||
|
2022 |
130,000 |
122,533 |
13,478 |
1,000 |
12,478 |
129.77 |
$1,619 |
$236 |
|||||
| Property Account Status/Adjustments/Exemptions | ||
|---|---|---|
| Account # | Exemption Description | Amount |
|
R149811075 |
3% Cap Homestead |
0 |
|
R149811075 |
Homestead |
1,000 |
| Property Deed Transaction History (Recorded in the County Clerk's Office) | ||||||||||
|---|---|---|---|---|---|---|---|---|---|---|
| Date | Type | Book | Page | Price | Grantor | Grantee | ||||
|
2/22/2019 |
|
Deeds |
$124,000 |
WALLACE SCOTT C & NATALIA REV TRUST |
LANG VALENCIA SHANTAE |
|||||
|
9/25/2015 |
|
Hmstd Off & |
$0 |
WALLACE JENNIFER L WALLACE SCOTT C & NATALIA |
WALLACE SCOTT C & NATALIA REV TRUST |
|||||
|
6/8/2009 |
|
Deeds |
$92,000 |
PRIDE HOME PROPERTIES INC |
WALLACE JENNIFER L WALLACE SCOTT C & NATALIA |
|||||
|
6/18/2008 |
|
Deeds |
$15,000 |
BNL PROPERTIES INC |
PRIDE HOME PROPERTIES INC |
|||||
|
4/8/2008 |
|
Hmstd Off & |
$0 |
RANDLE LEE |
BNL PROPERTIES INC |
|||||
| Last Mailed Notice of Value (N.O.V.) Information/History | ||||||||
|---|---|---|---|---|---|---|---|---|
| Year | Date | Market Value | Taxable Market Value | Gross Assessed | Exemption | Net Assessed | ||
|
2026 |
02/23/2026 |
175,500 |
137,909 |
15,169 |
1,000 |
14,169 |
||
|
2025 |
02/14/2025 |
175,000 |
133,893 |
14,727 |
1,000 |
13,727 |
||
|
2024 |
02/13/2024 |
174,000 |
129,994 |
14,298 |
1,000 |
13,298 |
||
|
2023 |
02/14/2023 |
155,000 |
126,208 |
13,882 |
1,000 |
12,882 |
||
|
2022 |
03/15/2022 |
130,000 |
122,533 |
13,478 |
1,000 |
12,478 |
||
| Property Building Permit History | ||||||
|---|---|---|---|---|---|---|
| Issued | Permit # | Provided by | Bldg # | Description | Est Construction Cost | Status |
|
7/1/2008 |
10357395 |
OKLAHOMA CITY |
1 |
Fire Remodel |
30,000 |
Inactive |
| Click button on building number to access detailed information: | ||||||
|---|---|---|---|---|---|---|
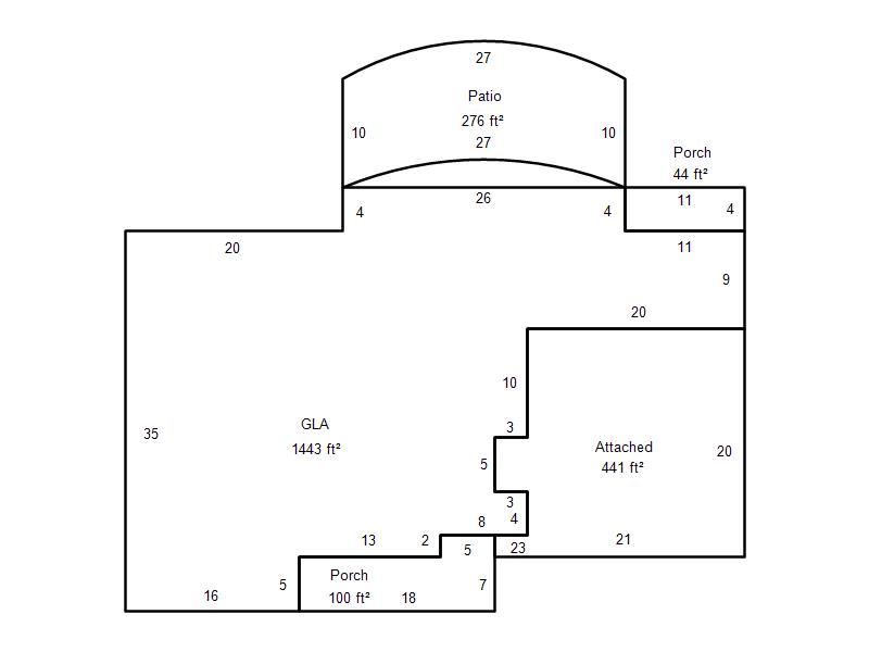
| Bldg # | Vacant/Improved Land | Bldg Description | Year Built | SqFt | # Stories | |
|
1 |
Improved |
Ranch 1 Story |
1958 |
1,443 |
1 Stories |
|