|
|
|
| Larry Stein Oklahoma County Assessor (405) 713-1200 - Public Access System |
|
|
|
|
|
|
| Real Property Display - Screen Produced 4/4/2026 2:02:10 PM | ||||
|---|---|---|---|---|
| Account: R149811105 | Type: Residential | Location: |
1132 NE 59TH ST |
|
| Building Name/Occupant: |
|
OKLAHOMA CITY |
||
| Owner Name 1: | ROBERTS MINNIE |
Parcel PIN#: |
2644-14-981-1105 |
|
| Owner Name 2: | 1/4 section #: |
2644 |
||
| Owner Name 3: | Parent Acct: |
|
||
| Billing Address: | 1132 NE 59TH ST | Tax District: |
|
|
| City, State, Zip | OKLAHOMA CITY, OK 73111-7402 | School System: |
Millwood #37 |
|
|
Country: (If noted) |
Land Size: |
0.3028 Acres |
||
|
Land Value: 20,310 |
|
|||
|
Sect 11-T12N-R3W Qtr NW |
RICHARDSONS WILDEWOOD MANOR
Block
001
Lot
011
|
|||
| Full Legal Description: RICHARDSONS WILDEWOOD MANOR 001 011 |
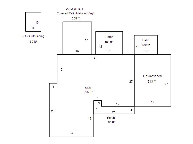
| Photo & Sketch (if available) | Comp Sales (ordered by relevancy) |
|
||||||||||||||||||
|
||||||||||||||||||||
| Value History (*The County Treasurer 405-713-1300 posts & collects actual tax amounts. Contact information HERE) | |||||||||||||
|---|---|---|---|---|---|---|---|---|---|---|---|---|---|
| Year | Market Value | Taxable Mkt Value | Gross Assessed | Exemption | Net Assessed | Millage | Est. Tax | Tax Savings | |||||
|
2026 |
165,500 |
96,633 |
10,629 |
1,000 |
9,629 |
131.17 |
$1,263 |
$1,125 |
|||||
|
2025 |
165,000 |
96,633 |
10,629 |
1,000 |
9,629 |
131.17 |
$1,263 |
$1,118 |
|||||
|
2024 |
163,000 |
96,633 |
10,629 |
2,000 |
8,629 |
132.60 |
$1,144 |
$1,233 |
|||||
|
2023 |
142,000 |
90,421 |
9,945 |
1,000 |
8,945 |
134.52 |
$1,203 |
$898 |
|||||
|
2022 |
119,000 |
87,788 |
9,656 |
2,000 |
7,656 |
129.77 |
$994 |
$705 |
|||||
| Property Account Status/Adjustments/Exemptions | ||
|---|---|---|
| Account # | Exemption Description | Amount |
|
R149811105 |
Freeze Senior Valuation |
0 |
|
R149811105 |
3% Cap Homestead |
0 |
|
R149811105 |
Homestead |
1,000 |
| Property Deed Transaction History (Recorded in the County Clerk's Office) | ||||||||||
|---|---|---|---|---|---|---|---|---|---|---|
| Date | Type | Book | Page | Price | Grantor | Grantee | ||||
|
9/27/2005 |
|
Deeds |
$86,000 |
HILL WILMA JEAN |
ROBERTS MINNIE |
|||||
|
7/26/2005 |
|
Deeds |
$0 |
JONES WILLIE HILL WILMA JEAN |
HILL WILMA JEAN |
|||||
|
3/14/2005 |
|
Deeds |
$0 |
JONES WILLIE |
JONES PATRICK ADMR EST WILLIE JONES |
|||||
|
10/4/2001 |
|
Deeds |
$0 |
JONES WILLIE & ELLA M |
JONES WILLIE |
|||||
|
10/4/2001 |
|
Deeds |
$0 |
JONES WILLIE |
JONES WILLIE |
|||||
| Last Mailed Notice of Value (N.O.V.) Information/History | ||||||||
|---|---|---|---|---|---|---|---|---|
| Year | Date | Market Value | Taxable Market Value | Gross Assessed | Exemption | Net Assessed | ||
|
2026 |
02/23/2026 |
165,500 |
96,633 |
10,629 |
1,000 |
9,629 |
||
|
2025 |
02/14/2025 |
165,000 |
96,633 |
10,629 |
2,000 |
8,629 |
||
|
2024 |
03/01/2024 |
163,000 |
96,633 |
10,629 |
2,000 |
8,629 |
||
|
2023 |
02/14/2023 |
142,000 |
90,421 |
9,945 |
1,000 |
8,945 |
||
|
2022 |
03/15/2022 |
119,000 |
87,788 |
9,656 |
1,000 |
8,656 |
||
| Property Building Permit History | ||||||
|---|---|---|---|---|---|---|
| Issued | Permit # | Provided by | Bldg # | Description | Est Construction Cost | Status |
|
3/9/2023 |
BLDR-2022-09830 |
|
1 |
Add On |
35,000 |
Inactive |
| Click button on building number to access detailed information: | ||||||
|---|---|---|---|---|---|---|
| Bldg # | Vacant/Improved Land | Bldg Description | Year Built | SqFt | # Stories | |
|
1 |
Improved |
Ranch 1 Story |
1957 |
1,484 |
1 Stories |
|