|
|
|
| Larry Stein Oklahoma County Assessor (405) 713-1200 - Public Access System |
|
|
|
|
|
|
| Real Property Display - Screen Produced 4/4/2026 7:49:05 AM | ||||
|---|---|---|---|---|
| Account: R089707725 | Type: Residential | Location: |
1313 STATON DR |
|
| Building Name/Occupant: |
|
OKLAHOMA CITY |
||
| Owner Name 1: | NAVARRO ZAIRA ONEYDA FUENTES |
Parcel PIN#: |
2655-08-970-7725 |
|
| Owner Name 2: | VASQUEZ JULIO AROLDO LOPEZ | 1/4 section #: |
2655 |
|
| Owner Name 3: | Parent Acct: |
|
||
| Billing Address: | 3836 NW 24TH ST | Tax District: |
|
|
| City, State, Zip | OKLAHOMA CITY, OK 73107-1404 | School System: |
Oklahoma City #89 |
|
|
Country: (If noted) |
Land Size: |
0.2495 Acres |
||
|
Land Value: 21,736 |
|
|||
|
Sect 14-T12N-R3W Qtr SW |
PARK ESTATES ADD
Block
010
Lot
011
|
|||
| Full Legal Description: PARK ESTATES ADD 010 011 |
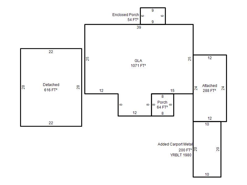
| Photo & Sketch (if available) | Comp Sales (ordered by relevancy) |
|
||||||||||||||||||
|
||||||||||||||||||||
| Value History (*The County Treasurer 405-713-1300 posts & collects actual tax amounts. Contact information HERE) | |||||||||||||
|---|---|---|---|---|---|---|---|---|---|---|---|---|---|
| Year | Market Value | Taxable Mkt Value | Gross Assessed | Exemption | Net Assessed | Millage | Est. Tax | Tax Savings | |||||
|
2026 |
104,000 |
98,700 |
10,857 |
0 |
10,857 |
122.90 |
$1,334 |
$72 |
|||||
|
2025 |
94,000 |
94,000 |
10,340 |
0 |
10,340 |
122.90 |
$1,271 |
$0 |
|||||
|
2024 |
92,000 |
92,000 |
10,120 |
0 |
10,120 |
123.89 |
$1,254 |
$0 |
|||||
|
2023 |
87,500 |
20,299 |
2,232 |
0 |
2,232 |
122.82 |
$274 |
$908 |
|||||
|
2022 |
63,500 |
19,333 |
2,126 |
0 |
2,126 |
117.63 |
$250 |
$571 |
|||||
| Property Account Status/Adjustments/Exemptions | ||
|---|---|---|
| Account # | Exemption Description | Amount |
|
R089707725 |
5% Capped Account |
0 |
| Property Deed Transaction History (Recorded in the County Clerk's Office) | |||||||
|---|---|---|---|---|---|---|---|
| Date | Type | Book | Page | Price | Grantor | Grantee | |
|
9/25/2023 |
|
Deeds |
$70,000 |
HORNBREAK RODNEY M |
TOP INVESTMENTS LLC |
||
|
9/25/2023 |
|
Deeds |
$85,000 |
TOP INVESTMENTS LLC |
NAVARRO ZAIRA ONEYDA FUENTES |
||
|
9/14/2020 |
|
Hmstd Off & |
$0 |
HORNBEAK BOOKER T |
HORNBREAK RODNEY M |
||
|
11/1/1976 |
|
Historical |
$0 |
|
HORNBEAK BOOKER T |
||
| Last Mailed Notice of Value (N.O.V.) Information/History | ||||||||
|---|---|---|---|---|---|---|---|---|
| Year | Date | Market Value | Taxable Market Value | Gross Assessed | Exemption | Net Assessed | ||
|
2026 |
02/23/2026 |
104,000 |
98,700 |
10,857 |
0 |
10,857 |
||
|
2025 |
02/14/2025 |
94,000 |
94,000 |
10,340 |
0 |
10,340 |
||
|
2024 |
02/13/2024 |
92,000 |
92,000 |
10,120 |
0 |
10,120 |
||
|
2023 |
02/14/2023 |
87,500 |
20,299 |
2,232 |
0 |
2,232 |
||
|
2022 |
03/15/2022 |
63,500 |
19,333 |
2,126 |
0 |
2,126 |
||
| Property Building Permit History | |||||||||||
|---|---|---|---|---|---|---|---|---|---|---|---|
| Issued | Permit # | Provided by | Bldg # | Description | Est Construction Cost | Status | |||||
| No Building Permit records returned. | |||||||||||
| Click button on building number to access detailed information: | ||||||
|---|---|---|---|---|---|---|
| Bldg # | Vacant/Improved Land | Bldg Description | Year Built | SqFt | # Stories | |
|
1 |
Improved |
Ranch 1 Story |
1947 |
1,071 |
1 Stories |
|