|
|
|
| Larry Stein Oklahoma County Assessor (405) 713-1200 - Public Access System |
|
|
|
|
|
|
| Real Property Display - Screen Produced 4/4/2026 10:44:33 AM | ||||
|---|---|---|---|---|
| Account: R119721045 | Type: Residential | Location: |
4312 WOODS DR |
|
| Building Name/Occupant: |
|
OKLAHOMA CITY |
||
| Owner Name 1: | SMITH JULIUS JR & KIMBERLY L |
Parcel PIN#: |
2656-11-972-1045 |
|
| Owner Name 2: | 1/4 section #: |
2656 |
||
| Owner Name 3: | Parent Acct: |
|
||
| Billing Address: | 4312 WOODS DR | Tax District: |
|
|
| City, State, Zip | OKLAHOMA CITY, OK 73111 | School System: |
Oklahoma City #89 |
|
|
Country: (If noted) |
Land Size: |
0.2238 Acres |
||
|
Land Value: 11,213 |
|
|||
|
Sect 14-T12N-R3W Qtr NW |
PARK ESTATES RANCH
Block
001
Lot
005
|
|||
| Full Legal Description: PARK ESTATES RANCH 001 005 |
| Photo & Sketch (if available) | Comp Sales (ordered by relevancy) |
|
||||||||||||||||||
|
||||||||||||||||||||
| Value History (*The County Treasurer 405-713-1300 posts & collects actual tax amounts. Contact information HERE) | |||||||||||||
|---|---|---|---|---|---|---|---|---|---|---|---|---|---|
| Year | Market Value | Taxable Mkt Value | Gross Assessed | Exemption | Net Assessed | Millage | Est. Tax | Tax Savings | |||||
|
2026 |
115,500 |
68,534 |
7,538 |
1,000 |
6,538 |
122.90 |
$804 |
$758 |
|||||
|
2025 |
107,500 |
66,538 |
7,319 |
1,000 |
6,319 |
122.90 |
$777 |
$677 |
|||||
|
2024 |
105,000 |
64,600 |
7,105 |
1,000 |
6,105 |
123.89 |
$756 |
$674 |
|||||
|
2023 |
82,000 |
62,719 |
6,898 |
1,000 |
5,898 |
122.82 |
$725 |
$383 |
|||||
|
2022 |
72,500 |
60,893 |
6,697 |
1,000 |
5,697 |
117.63 |
$670 |
$268 |
|||||
| Property Account Status/Adjustments/Exemptions | ||
|---|---|---|
| Account # | Exemption Description | Amount |
|
R119721045 |
Homestead |
1,000 |
|
R119721045 |
3% Cap Homestead |
0 |
| Property Deed Transaction History (Recorded in the County Clerk's Office) | |||||||
|---|---|---|---|---|---|---|---|
| Date | Type | Book | Page | Price | Grantor | Grantee | |
|
7/2/2018 |
|
Deeds |
$0 |
SMITH JULIUS & KIM |
SMITH JULIUS JR & KIMBERLY L |
||
|
6/7/2000 |
|
Deeds |
$41,000 |
MOORE BEVERLY A |
SMITH JULIUS & KIM |
||
|
11/14/1997 |
|
Historical |
$0 |
MOORE BEVERLY A |
MOORE BEVERLY A |
||
|
3/1/1976 |
|
Historical |
$0 |
|
MOORE BEVERLY A |
||
| Last Mailed Notice of Value (N.O.V.) Information/History | ||||||||
|---|---|---|---|---|---|---|---|---|
| Year | Date | Market Value | Taxable Market Value | Gross Assessed | Exemption | Net Assessed | ||
|
2026 |
02/23/2026 |
115,500 |
68,534 |
7,538 |
1,000 |
6,538 |
||
|
2025 |
02/14/2025 |
107,500 |
66,538 |
7,319 |
1,000 |
6,319 |
||
|
2024 |
02/13/2024 |
105,000 |
64,600 |
7,105 |
1,000 |
6,105 |
||
|
2023 |
02/14/2023 |
82,000 |
62,719 |
6,898 |
1,000 |
5,898 |
||
|
2022 |
03/15/2022 |
72,500 |
60,893 |
6,697 |
1,000 |
5,697 |
||
| Property Building Permit History | |||||||||||
|---|---|---|---|---|---|---|---|---|---|---|---|
| Issued | Permit # | Provided by | Bldg # | Description | Est Construction Cost | Status | |||||
| No Building Permit records returned. | |||||||||||
| Click button on building number to access detailed information: | ||||||
|---|---|---|---|---|---|---|
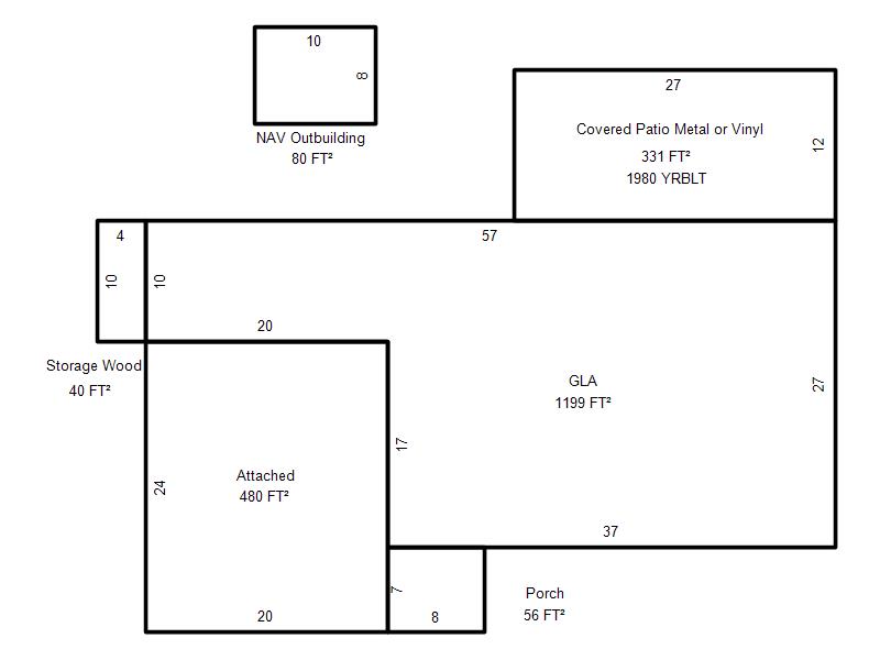
| Bldg # | Vacant/Improved Land | Bldg Description | Year Built | SqFt | # Stories | |
|
1 |
Improved |
Ranch 1 Story |
1954 |
1,199 |
1 Stories |
|