|
|
|
| Larry Stein Oklahoma County Assessor (405) 713-1200 - Public Access System |
|
|
|
|
|
|
| Real Property Display - Screen Produced 4/12/2026 3:47:58 AM | ||||
|---|---|---|---|---|
| Account: R049481200 | Type: Residential | Location: |
801 NW 41ST ST |
|
| Building Name/Occupant: |
|
OKLAHOMA CITY |
||
| Owner Name 1: | MORGAN SARAH REV TRUST |
Parcel PIN#: |
2663-04-948-1200 |
|
| Owner Name 2: | 1/4 section #: |
2663 |
||
| Owner Name 3: | Parent Acct: |
|
||
| Billing Address: | 801 NW 41ST ST | Tax District: |
|
|
| City, State, Zip | OKLAHOMA CITY, OK 73118-6822 | School System: |
Oklahoma City #89 |
|
|
Country: (If noted) |
Land Size: |
0.2357 Acres |
||
|
Land Value: 116,542 |
|
|||
|
Sect 16-T12N-R3W Qtr SW |
CROWN HEIGHTS ADD
Block
003
Lot
043
|
|||
| Full Legal Description: CROWN HEIGHTS ADD 003 043 |
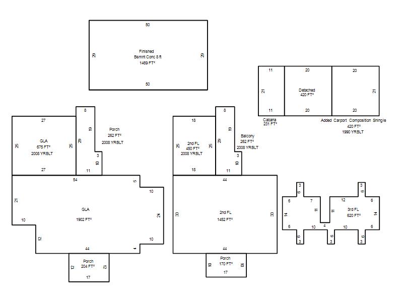
| Photo & Sketch (if available) | Comp Sales (ordered by relevancy) |
|
||||||||||||||||||
|
||||||||||||||||||||
| Value History (*The County Treasurer 405-713-1300 posts & collects actual tax amounts. Contact information HERE) | |||||||||||||
|---|---|---|---|---|---|---|---|---|---|---|---|---|---|
| Year | Market Value | Taxable Mkt Value | Gross Assessed | Exemption | Net Assessed | Millage | Est. Tax | Tax Savings | |||||
|
2026 |
1,364,000 |
1,114,753 |
122,622 |
1,000 |
121,622 |
122.90 |
$14,947 |
$3,492 |
|||||
|
2025 |
1,329,500 |
1,082,285 |
119,050 |
1,000 |
118,050 |
122.90 |
$14,509 |
$3,465 |
|||||
|
2024 |
1,257,500 |
1,050,763 |
115,583 |
1,000 |
114,583 |
123.89 |
$14,196 |
$2,941 |
|||||
|
2023 |
1,122,500 |
1,020,159 |
112,217 |
1,000 |
111,217 |
122.82 |
$13,660 |
$1,505 |
|||||
|
2022 |
1,083,000 |
990,446 |
108,948 |
1,000 |
107,948 |
117.63 |
$12,698 |
$1,315 |
|||||
| Property Account Status/Adjustments/Exemptions | ||
|---|---|---|
| Account # | Exemption Description | Amount |
|
R049481200 |
3% Cap Homestead |
0 |
|
R049481200 |
Homestead |
1,000 |
| Property Deed Transaction History (Recorded in the County Clerk's Office) | |||||||
|---|---|---|---|---|---|---|---|
| Date | Type | Book | Page | Price | Grantor | Grantee | |
|
8/20/2014 |
|
Deeds |
$855,000 |
CORN TODD & AYUMI |
MORGAN SARAH REV TRUST |
||
|
4/26/2007 |
|
Deeds |
$470,000 |
MCDERMOTT CHARLES F & BETTY |
CORN TODD & AYUMI |
||
|
11/11/1911 |
|
Historical |
$0 |
|
MCDERMOTT CHARLES F & BETTY |
||
| Last Mailed Notice of Value (N.O.V.) Information/History | ||||||||
|---|---|---|---|---|---|---|---|---|
| Year | Date | Market Value | Taxable Market Value | Gross Assessed | Exemption | Net Assessed | ||
|
2026 |
02/23/2026 |
1,364,000 |
1,114,753 |
122,622 |
1,000 |
121,622 |
||
|
2025 |
02/14/2025 |
1,329,500 |
1,082,285 |
119,050 |
1,000 |
118,050 |
||
|
2024 |
02/13/2024 |
1,257,500 |
1,050,763 |
115,583 |
1,000 |
114,583 |
||
|
2023 |
02/14/2023 |
1,122,500 |
1,020,159 |
112,217 |
1,000 |
111,217 |
||
|
2022 |
03/15/2022 |
1,083,000 |
990,446 |
108,948 |
1,000 |
107,948 |
||
| Property Building Permit History | ||||||
|---|---|---|---|---|---|---|
| Issued | Permit # | Provided by | Bldg # | Description | Est Construction Cost | Status |
|
4/17/2008 |
10353869 |
OKLAHOMA CITY |
1 |
Swimming Pool |
0 |
Inactive |
|
8/13/2007 |
10341505 |
OKLAHOMA CITY |
1 |
Remodeled |
200,000 |
Inactive |
|
6/12/2007 |
10338166 |
OKLAHOMA CITY |
1 |
Remodeled |
35,000 |
Inactive |
| Click button on building number to access detailed information: | ||||||
|---|---|---|---|---|---|---|
| Bldg # | Vacant/Improved Land | Bldg Description | Year Built | SqFt | # Stories | |
|
1 |
Improved |
2½ Story |
1937 |
5,099 |
2.5 Stories |
|