|
|
|
| Larry Stein Oklahoma County Assessor (405) 713-1200 - Public Access System |
|
|
|
|
|
|
| Real Property Display - Screen Produced 4/10/2026 9:01:51 AM | ||||
|---|---|---|---|---|
| Account: R049481580 | Type: Residential | Location: |
1012 NW 41ST ST |
|
| Building Name/Occupant: |
|
OKLAHOMA CITY |
||
| Owner Name 1: | RHINEHART ANDREW THOMAS |
Parcel PIN#: |
2663-04-948-1580 |
|
| Owner Name 2: | GREGORIADES ELIAS MIHAIL | 1/4 section #: |
2663 |
|
| Owner Name 3: | Parent Acct: |
|
||
| Billing Address: | 1012 NW 41ST ST | Tax District: |
|
|
| City, State, Zip | OKLAHOMA CITY, OK 73118-6826 | School System: |
Oklahoma City #89 |
|
|
Country: (If noted) |
Land Size: |
0.1993 Acres |
||
|
Land Value: 98,518 |
|
|||
|
Sect 16-T12N-R3W Qtr SW |
CROWN HEIGHTS ADD
Block
004
Lot
019
|
|||
| Full Legal Description: CROWN HEIGHTS ADD 004 019 |
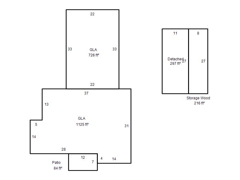
| Photo & Sketch (if available) | Comp Sales (ordered by relevancy) |
|
||||||||||||||||||
|
||||||||||||||||||||
| Value History (*The County Treasurer 405-713-1300 posts & collects actual tax amounts. Contact information HERE) | |||||||||||||
|---|---|---|---|---|---|---|---|---|---|---|---|---|---|
| Year | Market Value | Taxable Mkt Value | Gross Assessed | Exemption | Net Assessed | Millage | Est. Tax | Tax Savings | |||||
|
2026 |
517,500 |
517,500 |
56,925 |
1,000 |
55,925 |
122.90 |
$6,873 |
$123 |
|||||
|
2025 |
448,500 |
396,178 |
43,579 |
1,000 |
42,579 |
122.90 |
$5,233 |
$830 |
|||||
|
2024 |
448,500 |
384,639 |
42,309 |
1,000 |
41,309 |
123.89 |
$5,118 |
$994 |
|||||
|
2023 |
404,000 |
373,436 |
41,077 |
1,000 |
40,077 |
122.82 |
$4,922 |
$536 |
|||||
|
2022 |
391,000 |
362,560 |
39,881 |
1,000 |
38,881 |
117.63 |
$4,574 |
$486 |
|||||
| Property Account Status/Adjustments/Exemptions | ||
|---|---|---|
| Account # | Exemption Description | Amount |
|
R049481580 |
Homestead |
1,000 |
| Property Deed Transaction History (Recorded in the County Clerk's Office) | ||||||||||
|---|---|---|---|---|---|---|---|---|---|---|
| Date | Type | Book | Page | Price | Grantor | Grantee | ||||
|
9/24/2025 |
|
Deeds |
$518,500 |
WORRELL ERICK R & KIMBERLEY K |
RHINEHART ANDREW THOMAS |
|||||
|
10/13/2017 |
|
Deeds |
$359,000 |
SULLIVAN WYNN T & MARGARET AMDERSON |
WORRELL ERICK R & KIMBERLEY K |
|||||
|
8/8/2013 |
|
Deeds |
$0 |
ARCHER KATHERINE ANNE THURMOND & NICHOLS LYNN |
ARCHER KATHERINE ANNE THURMOND TRS |
|||||
|
8/8/2013 |
|
Deeds |
$305,000 |
ARCHER KATHERINE ANNE THURMOND TRS KATA REV TRUST |
SULLIVAN WYNN T & MARGARET AMDERSON |
|||||
|
7/12/2011 |
|
Deeds |
$0 |
THURMOND KATHERINE A |
ARCHER KATHERINE ANNE THURMOND TRS KATA REV TRUST |
|||||
| Last Mailed Notice of Value (N.O.V.) Information/History | ||||||||
|---|---|---|---|---|---|---|---|---|
| Year | Date | Market Value | Taxable Market Value | Gross Assessed | Exemption | Net Assessed | ||
|
2026 |
02/23/2026 |
517,500 |
517,500 |
56,925 |
0 |
56,925 |
||
|
2025 |
02/14/2025 |
448,500 |
396,178 |
43,579 |
1,000 |
42,579 |
||
|
2024 |
02/13/2024 |
448,500 |
384,639 |
42,309 |
1,000 |
41,309 |
||
|
2023 |
02/14/2023 |
404,000 |
373,436 |
41,077 |
1,000 |
40,077 |
||
|
2022 |
03/15/2022 |
391,000 |
362,560 |
39,881 |
1,000 |
38,881 |
||
| Property Building Permit History | |||||||||||
|---|---|---|---|---|---|---|---|---|---|---|---|
| Issued | Permit # | Provided by | Bldg # | Description | Est Construction Cost | Status | |||||
| No Building Permit records returned. | |||||||||||
| Click button on building number to access detailed information: | ||||||
|---|---|---|---|---|---|---|
| Bldg # | Vacant/Improved Land | Bldg Description | Year Built | SqFt | # Stories | |
|
1 |
Improved |
Ranch 1 Story |
1930 |
1,851 |
1 Stories |
|