|
|
|
| Larry Stein Oklahoma County Assessor (405) 713-1200 - Public Access System |
|
|
|
|
|
|
| Real Property Display - Screen Produced 4/10/2026 9:01:52 AM | ||||
|---|---|---|---|---|
| Account: R049482880 | Type: Residential | Location: |
836 NW 39TH ST |
|
| Building Name/Occupant: |
|
OKLAHOMA CITY |
||
| Owner Name 1: | MUSGROVE JAQCUELYN |
Parcel PIN#: |
2663-04-948-2880 |
|
| Owner Name 2: | MUSGROVE JOSHUA | 1/4 section #: |
2663 |
|
| Owner Name 3: | Parent Acct: |
|
||
| Billing Address: | 836 NW 39TH ST | Tax District: |
|
|
| City, State, Zip | OKLAHOMA CITY, OK 73118-7120 | School System: |
Oklahoma City #89 |
|
|
Country: (If noted) |
Land Size: |
0.2197 Acres |
||
|
Land Value: 133,023 |
|
|||
|
Sect 16-T12N-R3W Qtr SW |
CROWN HEIGHTS ADD
Block
006
Lot
010
|
|||
| Full Legal Description: CROWN HEIGHTS ADD 006 010 |
| Photo & Sketch (if available) | Comp Sales (ordered by relevancy) |
|
||||||||||||||||||
|
||||||||||||||||||||
| Value History (*The County Treasurer 405-713-1300 posts & collects actual tax amounts. Contact information HERE) | |||||||||||||
|---|---|---|---|---|---|---|---|---|---|---|---|---|---|
| Year | Market Value | Taxable Mkt Value | Gross Assessed | Exemption | Net Assessed | Millage | Est. Tax | Tax Savings | |||||
|
2026 |
761,500 |
761,500 |
83,765 |
0 |
83,765 |
122.90 |
$10,295 |
$0 |
|||||
|
2025 |
732,000 |
732,000 |
80,520 |
0 |
80,520 |
122.90 |
$9,896 |
$0 |
|||||
|
2024 |
714,500 |
714,500 |
78,595 |
0 |
78,595 |
123.89 |
$9,737 |
$0 |
|||||
|
2023 |
659,000 |
591,164 |
65,028 |
1,000 |
64,028 |
122.82 |
$7,864 |
$1,039 |
|||||
|
2022 |
642,000 |
573,946 |
63,133 |
1,000 |
62,133 |
117.63 |
$7,309 |
$998 |
|||||
| Property Account Status/Adjustments/Exemptions | ||
|---|---|---|
| Account # | Exemption Description | Amount |
|
R049482880 |
5% Capped Account |
0 |
| Property Deed Transaction History (Recorded in the County Clerk's Office) | ||||||||||
|---|---|---|---|---|---|---|---|---|---|---|
| Date | Type | Book | Page | Price | Grantor | Grantee | ||||
|
3/27/2023 |
|
Deeds |
$675,000 |
KRAGH JEFFREY R & JENNIFER TRS |
MUSGROVE JAQCUELYN |
|||||
|
10/17/2022 |
|
Deeds |
$0 |
KRAGH JEFFREY R & JENNIFER |
KRAGH JEFFREY R & JENNIFER TRS |
|||||
|
9/4/2020 |
|
Deeds |
$0 |
KRAGH JEFFREY R |
KRAGH JEFFREY R & JENNIFER |
|||||
|
5/24/2019 |
|
Deeds |
$545,000 |
RAINES JOHN D TRS |
KRAGH JEFFREY R |
|||||
|
10/28/2016 |
|
Deeds |
$0 |
RAINES JOHN |
RAINES JOHN D TRS |
|||||
| Last Mailed Notice of Value (N.O.V.) Information/History | ||||||||
|---|---|---|---|---|---|---|---|---|
| Year | Date | Market Value | Taxable Market Value | Gross Assessed | Exemption | Net Assessed | ||
|
2026 |
02/23/2026 |
761,500 |
761,500 |
83,765 |
0 |
83,765 |
||
|
2025 |
02/14/2025 |
732,000 |
732,000 |
80,520 |
0 |
80,520 |
||
|
2024 |
02/13/2024 |
714,500 |
714,500 |
78,595 |
0 |
78,595 |
||
|
2023 |
02/14/2023 |
659,000 |
591,164 |
65,028 |
1,000 |
64,028 |
||
|
2022 |
03/15/2022 |
642,000 |
573,946 |
63,133 |
1,000 |
62,133 |
||
| Property Building Permit History | |||||||||||
|---|---|---|---|---|---|---|---|---|---|---|---|
| Issued | Permit # | Provided by | Bldg # | Description | Est Construction Cost | Status | |||||
| No Building Permit records returned. | |||||||||||
| Click button on building number to access detailed information: | ||||||
|---|---|---|---|---|---|---|
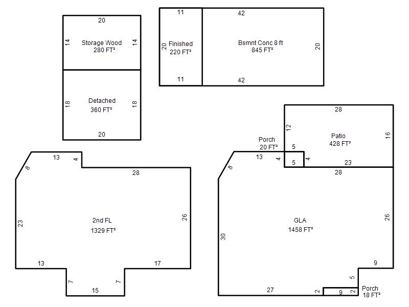
| Bldg # | Vacant/Improved Land | Bldg Description | Year Built | SqFt | # Stories | |
|
1 |
Improved |
2 Story |
1939 |
2,787 |
2 Stories |
|