|
|
|
| Larry Stein Oklahoma County Assessor (405) 713-1200 - Public Access System |
|
|
|
|
|
|
| Real Property Display - Screen Produced 4/10/2026 9:01:52 AM | ||||
|---|---|---|---|---|
| Account: R049483480 | Type: Residential | Location: |
809 NW 38TH ST |
|
| Building Name/Occupant: |
|
OKLAHOMA CITY |
||
| Owner Name 1: | CAIN MELISSA S VAN |
Parcel PIN#: |
2663-04-948-3480 |
|
| Owner Name 2: | CAIN JEFFREY S VAN | 1/4 section #: |
2663 |
|
| Owner Name 3: | Parent Acct: |
|
||
| Billing Address: | 809 NW 38TH ST | Tax District: |
|
|
| City, State, Zip | OKLAHOMA CITY, OK 73118 | School System: |
Oklahoma City #89 |
|
|
Country: (If noted) |
Land Size: |
0.2273 Acres |
||
|
Land Value: 137,610 |
|
|||
|
Sect 16-T12N-R3W Qtr SW |
CROWN HEIGHTS ADD
Block
006
Lot
040
|
|||
| Full Legal Description: CROWN HEIGHTS ADD 006 040 |
| Photo & Sketch (if available) | Comp Sales (ordered by relevancy) |
|
||||||||||||||||||
|
||||||||||||||||||||
| Value History (*The County Treasurer 405-713-1300 posts & collects actual tax amounts. Contact information HERE) | |||||||||||||
|---|---|---|---|---|---|---|---|---|---|---|---|---|---|
| Year | Market Value | Taxable Mkt Value | Gross Assessed | Exemption | Net Assessed | Millage | Est. Tax | Tax Savings | |||||
|
2026 |
527,500 |
527,500 |
58,025 |
0 |
58,025 |
122.90 |
$7,131 |
$0 |
|||||
|
2025 |
520,000 |
514,316 |
56,574 |
0 |
56,574 |
122.90 |
$6,953 |
$77 |
|||||
|
2024 |
526,000 |
489,825 |
53,880 |
0 |
53,880 |
123.89 |
$6,675 |
$493 |
|||||
|
2023 |
466,500 |
466,500 |
51,315 |
0 |
51,315 |
122.82 |
$6,303 |
$0 |
|||||
|
2022 |
480,000 |
480,000 |
52,800 |
0 |
52,800 |
117.63 |
$6,211 |
$0 |
|||||
| Property Account Status/Adjustments/Exemptions | ||
|---|---|---|
| Account # | Exemption Description | Amount |
|
R049483480 |
5% Capped Account |
0 |
| Property Deed Transaction History (Recorded in the County Clerk's Office) | ||||||||||
|---|---|---|---|---|---|---|---|---|---|---|
| Date | Type | Book | Page | Price | Grantor | Grantee | ||||
|
10/21/2021 |
|
Deeds |
$485,000 |
WHITE GARY L |
CAIN MELISSA S VAN |
|||||
|
8/5/2019 |
|
Deeds |
$0 |
WHITE GARY L |
WHITE GARY L |
|||||
|
7/23/2019 |
|
Deeds |
$0 |
WHITE GARY L & GLORIA MILLER |
WHITE GARY L |
|||||
|
9/4/2013 |
|
Deeds |
$0 |
WHITE GARY L |
WHITE GARY L & GLORIA MILLER |
|||||
|
11/18/2011 |
|
Deeds |
$307,000 |
NAVE LEE S SULLIVAN MAURA E |
WHITE GARY L |
|||||
| Last Mailed Notice of Value (N.O.V.) Information/History | ||||||||
|---|---|---|---|---|---|---|---|---|
| Year | Date | Market Value | Taxable Market Value | Gross Assessed | Exemption | Net Assessed | ||
|
2026 |
02/23/2026 |
527,500 |
527,500 |
58,025 |
0 |
58,025 |
||
|
2025 |
02/14/2025 |
520,000 |
514,316 |
56,574 |
0 |
56,574 |
||
|
2024 |
02/13/2024 |
526,000 |
489,825 |
53,880 |
0 |
53,880 |
||
|
2022 |
03/15/2022 |
480,000 |
480,000 |
52,800 |
0 |
52,800 |
||
|
2021 |
03/19/2021 |
402,000 |
393,225 |
43,254 |
0 |
43,254 |
||
| Property Building Permit History | |||||||||||
|---|---|---|---|---|---|---|---|---|---|---|---|
| Issued | Permit # | Provided by | Bldg # | Description | Est Construction Cost | Status | |||||
| No Building Permit records returned. | |||||||||||
| Click button on building number to access detailed information: | ||||||
|---|---|---|---|---|---|---|
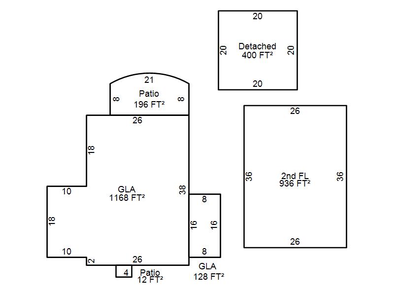
| Bldg # | Vacant/Improved Land | Bldg Description | Year Built | SqFt | # Stories | |
|
1 |
Improved |
2 Story |
1935 |
2,232 |
2 Stories |
|