|
|
|
| Larry Stein Oklahoma County Assessor (405) 713-1200 - Public Access System |
|
|
|
|
|
|
| Real Property Display - Screen Produced 4/10/2026 9:01:51 AM | ||||
|---|---|---|---|---|
| Account: R049485800 | Type: Residential | Location: |
705 NW 41ST ST |
|
| Building Name/Occupant: |
|
OKLAHOMA CITY |
||
| Owner Name 1: | CANNON MATTHEW |
Parcel PIN#: |
2663-04-948-5800 |
|
| Owner Name 2: | CANNON ASHLEY | 1/4 section #: |
2663 |
|
| Owner Name 3: | Parent Acct: |
|
||
| Billing Address: | 705 NW 41ST ST | Tax District: |
|
|
| City, State, Zip | OKLAHOMA CITY, OK 73118-7029 | School System: |
Oklahoma City #89 |
|
|
Country: (If noted) |
Land Size: |
0.2947 Acres |
||
|
Land Value: 145,677 |
|
|||
|
Sect 16-T12N-R3W Qtr SW |
CROWN HEIGHTS ADD
Block
013
Lot
000
|
|||
| Full Legal Description: CROWN HEIGHTS ADD 013 000 LOT 27 & W 1/2 LOT 28 |
| Photo & Sketch (if available) | Comp Sales (ordered by relevancy) |
|
||||||||||||||||||
|
||||||||||||||||||||
| Value History (*The County Treasurer 405-713-1300 posts & collects actual tax amounts. Contact information HERE) | |||||||||||||
|---|---|---|---|---|---|---|---|---|---|---|---|---|---|
| Year | Market Value | Taxable Mkt Value | Gross Assessed | Exemption | Net Assessed | Millage | Est. Tax | Tax Savings | |||||
|
2026 |
995,500 |
995,500 |
109,505 |
1,000 |
108,505 |
122.90 |
$13,335 |
$123 |
|||||
|
2025 |
953,000 |
913,365 |
100,469 |
0 |
100,469 |
122.90 |
$12,348 |
$536 |
|||||
|
2024 |
923,000 |
869,872 |
95,685 |
0 |
95,685 |
123.89 |
$11,855 |
$724 |
|||||
|
2023 |
856,500 |
828,450 |
91,129 |
0 |
91,129 |
122.82 |
$11,193 |
$379 |
|||||
|
2022 |
789,000 |
789,000 |
86,790 |
0 |
86,790 |
117.63 |
$10,209 |
$0 |
|||||
| Property Account Status/Adjustments/Exemptions | ||
|---|---|---|
| Account # | Exemption Description | Amount |
|
R049485800 |
Homestead |
1,000 |
| Property Deed Transaction History (Recorded in the County Clerk's Office) | ||||||||||
|---|---|---|---|---|---|---|---|---|---|---|
| Date | Type | Book | Page | Price | Grantor | Grantee | ||||
|
5/16/2025 |
|
Deeds |
$1,018,000 |
FURR JAMES R TRS ETAL |
CANNON MATTHEW |
|||||
|
1/17/2025 |
|
Hmstd Off & |
$0 |
JERDAN KIMBERLY R |
FURR JAMES R TRS ETAL |
|||||
|
2/26/2021 |
|
Deeds |
$770,000 |
COE RYAN W & BROOKE E |
JERDAN KIMBERLY R |
|||||
|
4/29/2016 |
|
Deeds |
$715,000 |
JOHNSON GREGORY M & JULIE BARTLEY |
COE RYAN W & BROOKE E |
|||||
|
4/5/2013 |
|
Deeds |
$0 |
JOHNSON GREGORY M |
JOHNSON GREGORY M & JULIE BARTLEY |
|||||
| Last Mailed Notice of Value (N.O.V.) Information/History | ||||||||
|---|---|---|---|---|---|---|---|---|
| Year | Date | Market Value | Taxable Market Value | Gross Assessed | Exemption | Net Assessed | ||
|
2026 |
02/23/2026 |
995,500 |
995,500 |
109,505 |
1,000 |
108,505 |
||
|
2025 |
02/14/2025 |
953,000 |
913,365 |
100,469 |
0 |
100,469 |
||
|
2024 |
02/13/2024 |
923,000 |
869,872 |
95,685 |
0 |
95,685 |
||
|
2023 |
02/14/2023 |
856,500 |
828,450 |
91,129 |
0 |
91,129 |
||
|
2022 |
03/15/2022 |
789,000 |
789,000 |
86,790 |
0 |
86,790 |
||
| Property Building Permit History | ||||||
|---|---|---|---|---|---|---|
| Issued | Permit # | Provided by | Bldg # | Description | Est Construction Cost | Status |
|
1/6/2013 |
10447636 |
OKLAHOMA CITY |
1 |
Burn - Trip |
2,500 |
Inactive |
|
1/26/2010 |
10403896 |
OKLAHOMA CITY |
1 |
Remodeled |
40,000 |
Inactive |
| Click button on building number to access detailed information: | ||||||
|---|---|---|---|---|---|---|
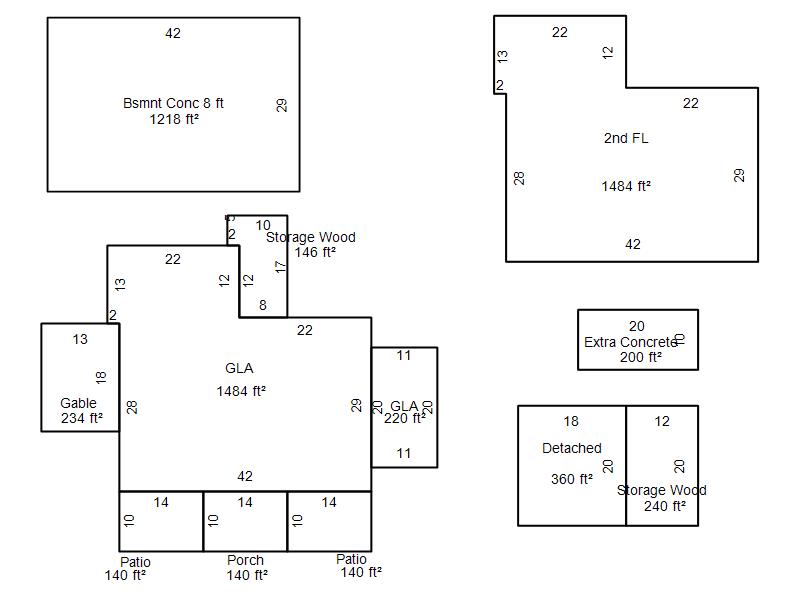
| Bldg # | Vacant/Improved Land | Bldg Description | Year Built | SqFt | # Stories | |
|
1 |
Improved |
2 Story |
1937 |
3,188 |
2 Stories |
|