|
|
|
| Larry Stein Oklahoma County Assessor (405) 713-1200 - Public Access System |
|
|
|
|
|
|
| Real Property Display - Screen Produced 4/10/2026 9:00:36 AM | ||||
|---|---|---|---|---|
| Account: R049486900 | Type: Residential | Location: |
515 NW 40TH ST |
|
| Building Name/Occupant: |
|
OKLAHOMA CITY |
||
| Owner Name 1: | MARTIN BENJAMIN ELLIOT & JONATHAN |
Parcel PIN#: |
2663-04-948-6900 |
|
| Owner Name 2: | 1/4 section #: |
2663 |
||
| Owner Name 3: | Parent Acct: |
|
||
| Billing Address: | 515 NW 40TH ST | Tax District: |
|
|
| City, State, Zip | OKLAHOMA CITY, OK 73118-7041 | School System: |
Oklahoma City #89 |
|
|
Country: (If noted) |
Land Size: |
0.1850 Acres |
||
|
Land Value: 91,481 |
|
|||
|
Sect 16-T12N-R3W Qtr SW |
CROWN HEIGHTS ADD
Block
014
Lot
041
|
|||
| Full Legal Description: CROWN HEIGHTS ADD 014 041 |
| Photo & Sketch (if available) | Comp Sales (ordered by relevancy) |
|
||||||||||||||||||
|
||||||||||||||||||||
| Value History (*The County Treasurer 405-713-1300 posts & collects actual tax amounts. Contact information HERE) | |||||||||||||
|---|---|---|---|---|---|---|---|---|---|---|---|---|---|
| Year | Market Value | Taxable Mkt Value | Gross Assessed | Exemption | Net Assessed | Millage | Est. Tax | Tax Savings | |||||
|
2026 |
593,500 |
593,500 |
65,285 |
0 |
65,285 |
122.90 |
$8,024 |
$0 |
|||||
|
2025 |
586,500 |
570,543 |
62,759 |
0 |
62,759 |
122.90 |
$7,713 |
$216 |
|||||
|
2024 |
580,000 |
543,375 |
59,771 |
0 |
59,771 |
123.89 |
$7,405 |
$499 |
|||||
|
2023 |
517,500 |
517,500 |
56,925 |
0 |
56,925 |
122.82 |
$6,992 |
$0 |
|||||
|
2022 |
513,500 |
440,072 |
48,406 |
1,000 |
47,406 |
117.63 |
$5,577 |
$1,068 |
|||||
| Property Account Status/Adjustments/Exemptions | ||||||
|---|---|---|---|---|---|---|
| Account # | Exemption Description | Amount | ||||
| No adjustment/exemption records returned. | ||||||
| Property Deed Transaction History (Recorded in the County Clerk's Office) | ||||||||||
|---|---|---|---|---|---|---|---|---|---|---|
| Date | Type | Book | Page | Price | Grantor | Grantee | ||||
|
11/7/2025 |
|
Deeds |
$570,000 |
TRISKA TATE ALLEN TRS |
MARTIN BENJAMIN ELLIOT & JONATHAN |
|||||
|
12/27/2022 |
|
Deeds |
$0 |
FULLER HAYDEN G |
TRISKA TATE ALLEN TRS |
|||||
|
8/15/2022 |
|
Deeds |
$518,000 |
MCQUEEN JEFFREY WILLIAM |
FULLER HAYDEN G |
|||||
|
11/29/2016 |
|
Deeds |
$415,000 |
DOUGLAS DONALD G & CAROLE L |
MCQUEEN JEFFREY WILLIAM |
|||||
|
11/28/2000 |
|
Deeds |
$169,000 |
KERWIN BARBARA A |
DOUGLAS DONALD G & CAROLE L |
|||||
| Last Mailed Notice of Value (N.O.V.) Information/History | ||||||||
|---|---|---|---|---|---|---|---|---|
| Year | Date | Market Value | Taxable Market Value | Gross Assessed | Exemption | Net Assessed | ||
|
2026 |
02/23/2026 |
593,500 |
593,500 |
65,285 |
0 |
65,285 |
||
|
2025 |
02/14/2025 |
586,500 |
570,543 |
62,759 |
0 |
62,759 |
||
|
2024 |
02/13/2024 |
580,000 |
543,375 |
59,771 |
0 |
59,771 |
||
|
2023 |
02/14/2023 |
517,500 |
517,500 |
56,925 |
0 |
56,925 |
||
|
2022 |
03/15/2022 |
513,500 |
440,072 |
48,406 |
1,000 |
47,406 |
||
| Property Building Permit History | ||||||
|---|---|---|---|---|---|---|
| Issued | Permit # | Provided by | Bldg # | Description | Est Construction Cost | Status |
|
4/22/2003 |
10279160 |
OKLAHOMA CITY |
1 |
Demolish |
0 |
Inactive |
|
4/22/2003 |
10279159 |
OKLAHOMA CITY |
1 |
Garage |
40,000 |
Inactive |
| Click button on building number to access detailed information: | ||||||
|---|---|---|---|---|---|---|
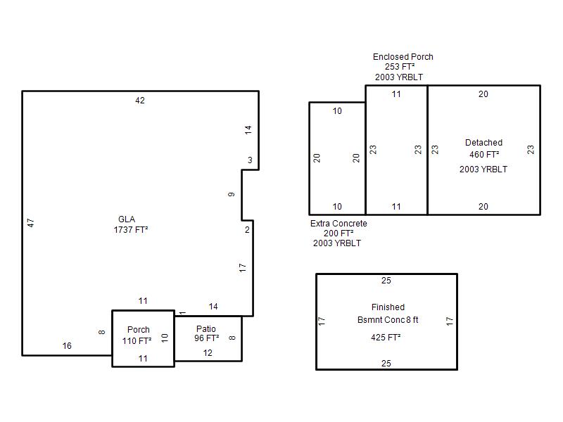
| Bldg # | Vacant/Improved Land | Bldg Description | Year Built | SqFt | # Stories | |
|
1 |
Improved |
Ranch 1 Story |
1933 |
1,737 |
1 Stories |
|