|
|
|
| Larry Stein Oklahoma County Assessor (405) 713-1200 - Public Access System |
|
|
|
|
|
|
| Real Property Display - Screen Produced 4/6/2026 5:12:05 AM | ||||
|---|---|---|---|---|
| Account: R054850072 | Type: Residential | Location: |
1500 NW 41ST ST |
|
| Building Name/Occupant: |
|
OKLAHOMA CITY |
||
| Owner Name 1: | HUNTER KEVIN VAUGHN |
Parcel PIN#: |
2666-05-485-0072 |
|
| Owner Name 2: | 1/4 section #: |
2666 |
||
| Owner Name 3: | Parent Acct: |
|
||
| Billing Address: | 1500 NW 41ST ST | Tax District: |
|
|
| City, State, Zip | OKLAHOMA CITY, OK 73118-2402 | School System: |
Oklahoma City #89 |
|
|
Country: (If noted) |
Land Size: |
0.1148 Acres |
||
|
Land Value: 30,500 |
|
|||
|
Sect 17-T12N-R3W Qtr SE |
PUTNAM HEIGHTS ADD
Block
00A
Lot
000
|
|||
| Full Legal Description: PUTNAM HEIGHTS ADD 00A 000 LOTS 16 & 17 |
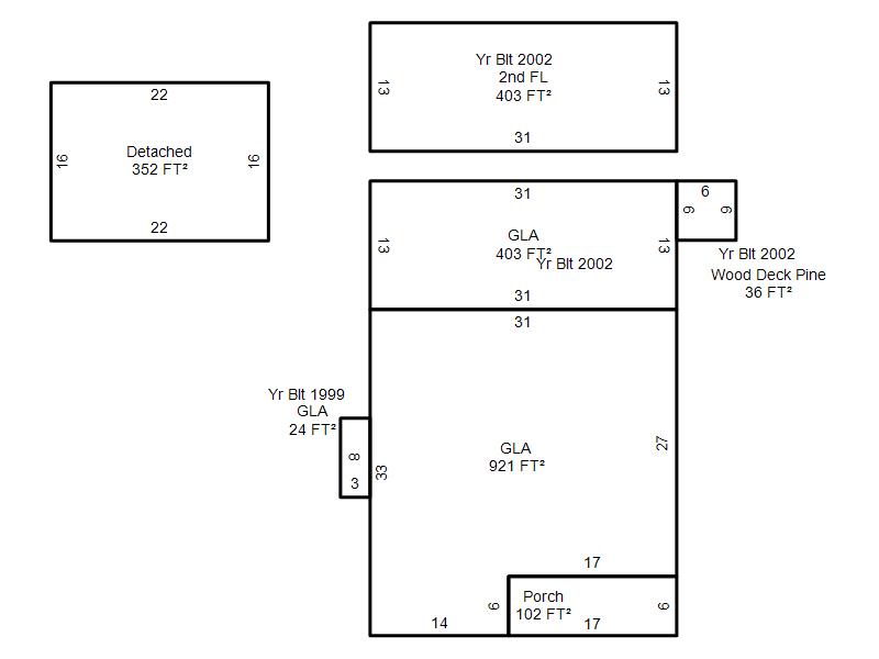
| Photo & Sketch (if available) | Comp Sales (ordered by relevancy) |
|
||||||||||||||||||
|
||||||||||||||||||||
| Value History (*The County Treasurer 405-713-1300 posts & collects actual tax amounts. Contact information HERE) | |||||||||||||
|---|---|---|---|---|---|---|---|---|---|---|---|---|---|
| Year | Market Value | Taxable Mkt Value | Gross Assessed | Exemption | Net Assessed | Millage | Est. Tax | Tax Savings | |||||
|
2026 |
253,000 |
157,531 |
17,328 |
0 |
17,328 |
122.90 |
$2,130 |
$1,291 |
|||||
|
2025 |
254,500 |
150,030 |
16,502 |
1,000 |
15,502 |
122.90 |
$1,905 |
$1,535 |
|||||
|
2024 |
253,500 |
145,661 |
16,022 |
1,000 |
15,022 |
123.89 |
$1,861 |
$1,594 |
|||||
|
2023 |
233,000 |
141,419 |
15,556 |
1,000 |
14,556 |
122.82 |
$1,788 |
$1,360 |
|||||
|
2022 |
207,000 |
137,300 |
15,102 |
1,000 |
14,102 |
117.63 |
$1,659 |
$1,019 |
|||||
| Property Account Status/Adjustments/Exemptions | ||
|---|---|---|
| Account # | Exemption Description | Amount |
|
R054850072 |
5% Capped Account |
0 |
| Property Deed Transaction History (Recorded in the County Clerk's Office) | |||||||
|---|---|---|---|---|---|---|---|
| Date | Type | Book | Page | Price | Grantor | Grantee | |
|
1/12/1996 |
|
Historical |
$27,000 |
PELFREY W RAY |
HUNTER KEVIN VAUGHN |
||
|
1/16/1991 |
|
Historical |
$0 |
MCLAIN RAY |
PELFREY W RAY |
||
|
11/28/1990 |
|
Historical |
$0 |
LEARD TERRY S & MARILYNN W |
MCLAIN RAY |
||
|
11/1/1982 |
|
Historical |
$0 |
|
LEARD TERRY S & MARILYNN W |
||
| Last Mailed Notice of Value (N.O.V.) Information/History | ||||||||
|---|---|---|---|---|---|---|---|---|
| Year | Date | Market Value | Taxable Market Value | Gross Assessed | Exemption | Net Assessed | ||
|
2026 |
02/23/2026 |
253,000 |
157,531 |
17,328 |
0 |
17,328 |
||
|
2025 |
02/14/2025 |
254,500 |
150,030 |
16,502 |
1,000 |
15,502 |
||
|
2024 |
02/13/2024 |
253,500 |
145,661 |
16,022 |
1,000 |
15,022 |
||
|
2023 |
02/14/2023 |
233,000 |
141,419 |
15,556 |
1,000 |
14,556 |
||
|
2022 |
03/15/2022 |
207,000 |
137,300 |
15,102 |
1,000 |
14,102 |
||
| Property Building Permit History | ||||||
|---|---|---|---|---|---|---|
| Issued | Permit # | Provided by | Bldg # | Description | Est Construction Cost | Status |
|
10/7/2002 |
10192377 |
OKLAHOMA CITY |
1 |
Add On |
48,000 |
Inactive |
| Click button on building number to access detailed information: | ||||||
|---|---|---|---|---|---|---|
| Bldg # | Vacant/Improved Land | Bldg Description | Year Built | SqFt | # Stories | |
|
1 |
Improved |
1½ Story Fin |
1933 |
1,751 |
1.5 Stories |
|