|
|
|
| Larry Stein Oklahoma County Assessor (405) 713-1200 - Public Access System |
|
|
|
|
|
|
| Real Property Display - Screen Produced 4/4/2026 12:41:01 AM | ||||
|---|---|---|---|---|
| Account: R054853897 | Type: Residential | Location: |
1126 NW 38TH ST |
|
| Building Name/Occupant: |
|
OKLAHOMA CITY |
||
| Owner Name 1: | SEWARD MELANIE |
Parcel PIN#: |
2666-05-485-3897 |
|
| Owner Name 2: | SEWARD FRITHA | 1/4 section #: |
2666 |
|
| Owner Name 3: | Parent Acct: |
|
||
| Billing Address: | 1126 NW 38TH ST | Tax District: |
|
|
| City, State, Zip | OKLAHOMA CITY, OK 73118-5424 | School System: |
Oklahoma City #89 |
|
|
Country: (If noted) |
Land Size: |
0.1722 Acres |
||
|
Land Value: 45,750 |
|
|||
|
Sect 17-T12N-R3W Qtr SE |
PUTNAM HEIGHTS ADD
Block
023
Lot
000
|
|||
| Full Legal Description: PUTNAM HEIGHTS ADD 023 000 LOTS 11 & 12 |
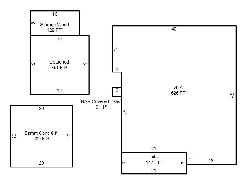
| Photo & Sketch (if available) | Comp Sales (ordered by relevancy) |
|
||||||||||||||||||
|
||||||||||||||||||||
| Value History (*The County Treasurer 405-713-1300 posts & collects actual tax amounts. Contact information HERE) | |||||||||||||
|---|---|---|---|---|---|---|---|---|---|---|---|---|---|
| Year | Market Value | Taxable Mkt Value | Gross Assessed | Exemption | Net Assessed | Millage | Est. Tax | Tax Savings | |||||
|
2026 |
264,500 |
210,535 |
23,158 |
0 |
23,158 |
122.90 |
$2,846 |
$730 |
|||||
|
2025 |
257,000 |
200,510 |
22,055 |
0 |
22,055 |
122.90 |
$2,711 |
$764 |
|||||
|
2024 |
238,500 |
190,962 |
21,005 |
0 |
21,005 |
123.89 |
$2,602 |
$648 |
|||||
|
2023 |
233,000 |
181,869 |
20,004 |
0 |
20,004 |
122.82 |
$2,457 |
$691 |
|||||
|
2022 |
215,500 |
173,209 |
19,052 |
0 |
19,052 |
117.63 |
$2,241 |
$547 |
|||||
| Property Account Status/Adjustments/Exemptions | ||
|---|---|---|
| Account # | Exemption Description | Amount |
|
R054853897 |
5% Capped Account |
0 |
| Property Deed Transaction History (Recorded in the County Clerk's Office) | |||||||
|---|---|---|---|---|---|---|---|
| Date | Type | Book | Page | Price | Grantor | Grantee | |
|
5/1/1996 |
|
Historical |
$86,000 |
PESOLI MICHAEL A & JILL A |
SEWARD MELANIE |
||
|
10/18/1994 |
|
Historical |
$78,000 |
FIFE J L |
PESOLI MICHAEL A & JILL A |
||
|
4/3/1990 |
|
Historical |
$45,500 |
SCHWEDLAND BECKY L |
FIFE J L |
||
|
5/1/1982 |
|
Historical |
$0 |
|
SCHWEDLAND BECKY L |
||
| Last Mailed Notice of Value (N.O.V.) Information/History | ||||||||
|---|---|---|---|---|---|---|---|---|
| Year | Date | Market Value | Taxable Market Value | Gross Assessed | Exemption | Net Assessed | ||
|
2026 |
02/23/2026 |
264,500 |
210,535 |
23,158 |
0 |
23,158 |
||
|
2025 |
02/14/2025 |
257,000 |
200,510 |
22,055 |
0 |
22,055 |
||
|
2024 |
02/13/2024 |
238,500 |
190,962 |
21,005 |
0 |
21,005 |
||
|
2023 |
02/14/2023 |
233,000 |
181,869 |
20,004 |
0 |
20,004 |
||
|
2022 |
03/15/2022 |
215,500 |
173,209 |
19,052 |
0 |
19,052 |
||
| Property Building Permit History | |||||||||||
|---|---|---|---|---|---|---|---|---|---|---|---|
| Issued | Permit # | Provided by | Bldg # | Description | Est Construction Cost | Status | |||||
| No Building Permit records returned. | |||||||||||
| Click button on building number to access detailed information: | ||||||
|---|---|---|---|---|---|---|
| Bldg # | Vacant/Improved Land | Bldg Description | Year Built | SqFt | # Stories | |
|
1 |
Improved |
Ranch 1 Story |
1932 |
1,626 |
1 Stories |
|