|
|
|
| Larry Stein Oklahoma County Assessor (405) 713-1200 - Public Access System |
|
|
|
|
|
|
| Real Property Display - Screen Produced 4/4/2026 12:41:00 AM | ||||
|---|---|---|---|---|
| Account: R054854086 | Type: Residential | Location: |
1130 NW 37TH ST |
|
| Building Name/Occupant: |
|
OKLAHOMA CITY |
||
| Owner Name 1: | GRAY DOROTHY NAN TRS |
Parcel PIN#: |
2666-05-485-4086 |
|
| Owner Name 2: | GRAY DOROTHY NAN TRUST | 1/4 section #: |
2666 |
|
| Owner Name 3: | Parent Acct: |
|
||
| Billing Address: | 1130 NW 37TH ST | Tax District: |
|
|
| City, State, Zip | OKLAHOMA CITY, OK 73118-5420 | School System: |
Oklahoma City #89 |
|
|
Country: (If noted) |
Land Size: |
0.1951 Acres |
||
|
Land Value: 51,850 |
|
|||
|
Sect 17-T12N-R3W Qtr SE |
PUTNAM HEIGHTS ADD
Block
024
Lot
000
|
|||
| Full Legal Description: PUTNAM HEIGHTS ADD 024 000 LOTS 9 & 10 |
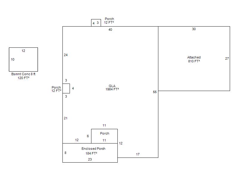
| Photo & Sketch (if available) | Comp Sales (ordered by relevancy) |
|
||||||||||||||||||
|
||||||||||||||||||||
| Value History (*The County Treasurer 405-713-1300 posts & collects actual tax amounts. Contact information HERE) | |||||||||||||
|---|---|---|---|---|---|---|---|---|---|---|---|---|---|
| Year | Market Value | Taxable Mkt Value | Gross Assessed | Exemption | Net Assessed | Millage | Est. Tax | Tax Savings | |||||
|
2026 |
251,000 |
88,011 |
9,681 |
1,000 |
8,681 |
122.90 |
$1,067 |
$2,326 |
|||||
|
2025 |
248,500 |
88,011 |
9,681 |
1,000 |
8,681 |
122.90 |
$1,067 |
$2,293 |
|||||
|
2024 |
246,000 |
88,011 |
9,681 |
1,000 |
8,681 |
123.89 |
$1,076 |
$2,277 |
|||||
|
2023 |
227,000 |
88,011 |
9,681 |
1,000 |
8,681 |
122.82 |
$1,066 |
$2,001 |
|||||
|
2022 |
197,000 |
88,011 |
9,681 |
1,000 |
8,681 |
117.63 |
$1,021 |
$1,528 |
|||||
| Property Account Status/Adjustments/Exemptions | ||
|---|---|---|
| Account # | Exemption Description | Amount |
|
R054854086 |
Freeze Senior Valuation |
0 |
|
R054854086 |
3% Cap Homestead |
0 |
|
R054854086 |
Homestead |
1,000 |
| Property Deed Transaction History (Recorded in the County Clerk's Office) | |||||||
|---|---|---|---|---|---|---|---|
| Date | Type | Book | Page | Price | Grantor | Grantee | |
|
12/14/2010 |
|
Deeds |
$0 |
GRAY DOROTHY NAN |
GRAY DOROTHY NAN TRS |
||
|
8/13/1991 |
|
Historical |
$71,500 |
POGUE ROGER B JR & SANDRA L |
GRAY DOROTHY NAN |
||
|
6/1/1984 |
|
Historical |
$62,500 |
|
POGUE ROGER B JR & SANDRA L |
||
| Last Mailed Notice of Value (N.O.V.) Information/History | ||||||||
|---|---|---|---|---|---|---|---|---|
| Year | Date | Market Value | Taxable Market Value | Gross Assessed | Exemption | Net Assessed | ||
|
2026 |
02/23/2026 |
251,000 |
88,011 |
9,681 |
1,000 |
8,681 |
||
|
2025 |
02/14/2025 |
248,500 |
88,011 |
9,681 |
1,000 |
8,681 |
||
|
2024 |
02/13/2024 |
246,000 |
88,011 |
9,681 |
1,000 |
8,681 |
||
|
2023 |
02/14/2023 |
227,000 |
88,011 |
9,681 |
1,000 |
8,681 |
||
|
2022 |
03/15/2022 |
197,000 |
88,011 |
9,681 |
1,000 |
8,681 |
||
| Property Building Permit History | |||||||||||
|---|---|---|---|---|---|---|---|---|---|---|---|
| Issued | Permit # | Provided by | Bldg # | Description | Est Construction Cost | Status | |||||
| No Building Permit records returned. | |||||||||||
| Click button on building number to access detailed information: | ||||||
|---|---|---|---|---|---|---|
| Bldg # | Vacant/Improved Land | Bldg Description | Year Built | SqFt | # Stories | |
|
1 |
Improved |
Ranch 1 Story |
1929 |
1,984 |
1 Stories |
|