|
|
|
| Larry Stein Oklahoma County Assessor (405) 713-1200 - Public Access System |
|
|
|
|
|
|
| Real Property Display - Screen Produced 4/4/2026 2:21:02 AM | ||||
|---|---|---|---|---|
| Account: R054851251 | Type: Residential | Location: |
1909 NW 36TH ST |
|
| Building Name/Occupant: |
|
OKLAHOMA CITY |
||
| Owner Name 1: | HARRIS BAC T |
Parcel PIN#: |
2667-05-485-1251 |
|
| Owner Name 2: | 1/4 section #: |
2667 |
||
| Owner Name 3: | Parent Acct: |
|
||
| Billing Address: | 1909 NW 36TH ST | Tax District: |
|
|
| City, State, Zip | OKLAHOMA CITY, OK 73118-3040 | School System: |
Oklahoma City #89 |
|
|
Country: (If noted) |
Land Size: |
0.1951 Acres |
||
|
Land Value: 39,950 |
|
|||
|
Sect 17-T12N-R3W Qtr SW |
PUTNAM HEIGHTS ADD
Block
006
Lot
000
|
|||
| Full Legal Description: PUTNAM HEIGHTS ADD 006 000 LOTS 23 & 24 |
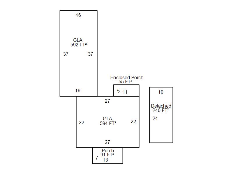
| Photo & Sketch (if available) | Comp Sales (ordered by relevancy) |
|
||||||||||||||||||
|
||||||||||||||||||||
| Value History (*The County Treasurer 405-713-1300 posts & collects actual tax amounts. Contact information HERE) | |||||||||||||
|---|---|---|---|---|---|---|---|---|---|---|---|---|---|
| Year | Market Value | Taxable Mkt Value | Gross Assessed | Exemption | Net Assessed | Millage | Est. Tax | Tax Savings | |||||
|
2026 |
157,500 |
120,223 |
13,223 |
0 |
13,223 |
122.90 |
$1,625 |
$504 |
|||||
|
2025 |
150,000 |
114,499 |
12,594 |
0 |
12,594 |
122.90 |
$1,548 |
$480 |
|||||
|
2024 |
148,000 |
109,047 |
11,995 |
0 |
11,995 |
123.89 |
$1,486 |
$531 |
|||||
|
2023 |
138,000 |
103,855 |
11,424 |
0 |
11,424 |
122.82 |
$1,403 |
$461 |
|||||
|
2022 |
118,000 |
98,910 |
10,879 |
0 |
10,879 |
117.63 |
$1,280 |
$247 |
|||||
| Property Account Status/Adjustments/Exemptions | ||
|---|---|---|
| Account # | Exemption Description | Amount |
|
R054851251 |
5% Capped Account |
0 |
| Property Deed Transaction History (Recorded in the County Clerk's Office) | ||||||||||
|---|---|---|---|---|---|---|---|---|---|---|
| Date | Type | Book | Page | Price | Grantor | Grantee | ||||
|
5/15/2015 |
|
Other |
$0 |
SECRETARY OF HOUSING & URBAN DEV |
HARRIS BAC T |
|||||
|
1/2/2015 |
|
Hmstd Off & |
$0 |
WELLS FARGO BANK |
SECRETARY OF HOUSING & URBAN DEV |
|||||
|
12/9/2014 |
|
Hmstd Off & |
$0 |
MILLS KYLE & BRANDI |
WELLS FARGO BANK |
|||||
|
8/29/2008 |
|
Deeds |
$80,500 |
MAYES MICHAEL |
MILLS KYLE & BRANDI |
|||||
|
6/14/2007 |
|
Deeds |
$47,000 |
FEDERAL NATIONAL MTG ASSOCIATION |
MAYES MICHAEL |
|||||
| Last Mailed Notice of Value (N.O.V.) Information/History | ||||||||
|---|---|---|---|---|---|---|---|---|
| Year | Date | Market Value | Taxable Market Value | Gross Assessed | Exemption | Net Assessed | ||
|
2026 |
02/23/2026 |
157,500 |
120,223 |
13,223 |
0 |
13,223 |
||
|
2025 |
02/14/2025 |
150,000 |
114,499 |
12,594 |
0 |
12,594 |
||
|
2024 |
02/13/2024 |
148,000 |
109,047 |
11,995 |
0 |
11,995 |
||
|
2023 |
02/14/2023 |
138,000 |
103,855 |
11,424 |
0 |
11,424 |
||
|
2022 |
03/15/2022 |
118,000 |
98,910 |
10,879 |
0 |
10,879 |
||
| Property Building Permit History | ||||||
|---|---|---|---|---|---|---|
| Issued | Permit # | Provided by | Bldg # | Description | Est Construction Cost | Status |
|
12/9/1996 |
10192416 |
OKLAHOMA CITY |
1 |
Add On |
10,000 |
Inactive |
| Click button on building number to access detailed information: | ||||||
|---|---|---|---|---|---|---|
| Bldg # | Vacant/Improved Land | Bldg Description | Year Built | SqFt | # Stories | |
|
1 |
Improved |
Ranch 1 Story |
1946 |
1,186 |
1 Stories |
|