|
|
|
| Larry Stein Oklahoma County Assessor (405) 713-1200 - Public Access System |
|
|
|
|
|
|
| Real Property Display - Screen Produced 4/4/2026 12:39:43 AM | ||||
|---|---|---|---|---|
| Account: R054851548 | Type: Residential | Location: |
1808 NW 38TH ST |
|
| Building Name/Occupant: |
|
OKLAHOMA CITY |
||
| Owner Name 1: | MOO LAH SET |
Parcel PIN#: |
2667-05-485-1548 |
|
| Owner Name 2: | MEE POE | 1/4 section #: |
2667 |
|
| Owner Name 3: | Parent Acct: |
|
||
| Billing Address: | 1808 NW 38TH ST | Tax District: |
|
|
| City, State, Zip | OKLAHOMA CITY, OK 73118-2821 | School System: |
Oklahoma City #89 |
|
|
Country: (If noted) |
Land Size: |
0.1951 Acres |
||
|
Land Value: 39,950 |
|
|||
|
Sect 17-T12N-R3W Qtr SW |
PUTNAM HEIGHTS ADD
Block
008
Lot
000
|
|||
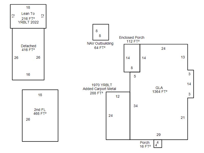
| Full Legal Description: PUTNAM HEIGHTS ADD 008 000 LOTS 13 & 14 |
| Photo & Sketch (if available) | Comp Sales (ordered by relevancy) |
|
||||||||||||||||||
|
||||||||||||||||||||
| Value History (*The County Treasurer 405-713-1300 posts & collects actual tax amounts. Contact information HERE) | |||||||||||||
|---|---|---|---|---|---|---|---|---|---|---|---|---|---|
| Year | Market Value | Taxable Mkt Value | Gross Assessed | Exemption | Net Assessed | Millage | Est. Tax | Tax Savings | |||||
|
2026 |
237,500 |
164,221 |
18,064 |
0 |
18,064 |
122.90 |
$2,220 |
$991 |
|||||
|
2025 |
236,500 |
156,401 |
17,203 |
0 |
17,203 |
122.90 |
$2,114 |
$1,083 |
|||||
|
2024 |
230,500 |
148,954 |
16,384 |
0 |
16,384 |
123.89 |
$2,030 |
$1,111 |
|||||
|
2023 |
208,000 |
141,861 |
15,604 |
0 |
15,604 |
122.82 |
$1,917 |
$894 |
|||||
|
2022 |
183,000 |
135,106 |
14,861 |
0 |
14,861 |
117.63 |
$1,748 |
$620 |
|||||
| Property Account Status/Adjustments/Exemptions | ||
|---|---|---|
| Account # | Exemption Description | Amount |
|
R054851548 |
5% Capped Account |
0 |
| Property Deed Transaction History (Recorded in the County Clerk's Office) | ||||||||||
|---|---|---|---|---|---|---|---|---|---|---|
| Date | Type | Book | Page | Price | Grantor | Grantee | ||||
|
4/2/2010 |
|
Deeds |
$82,000 |
MILLIGAN DAVID S |
MOO LAH SET |
|||||
|
4/24/2009 |
|
Other |
$0 |
SECRETARY OF HOUSING & URBAN DEV |
MILLIGAN DAVID S |
|||||
|
9/16/2008 |
|
Hmstd Off & |
$0 |
HAMPTON REBECCA |
SECRETARY OF HOUSING & URBAN DEV |
|||||
|
8/27/2004 |
|
Deeds |
$72,000 |
MULL PROPERTIES LLC |
HAMPTON REBECCA |
|||||
|
5/19/2004 |
|
Deeds |
$47,500 |
NIX RICHARD DEWAYNE MORRIS FRANCES MAE |
MULL PROPERTIES LLC |
|||||
| Last Mailed Notice of Value (N.O.V.) Information/History | ||||||||
|---|---|---|---|---|---|---|---|---|
| Year | Date | Market Value | Taxable Market Value | Gross Assessed | Exemption | Net Assessed | ||
|
2026 |
02/23/2026 |
237,500 |
164,221 |
18,064 |
0 |
18,064 |
||
|
2025 |
02/14/2025 |
236,500 |
156,401 |
17,203 |
0 |
17,203 |
||
|
2024 |
02/13/2024 |
230,500 |
148,954 |
16,384 |
0 |
16,384 |
||
|
2023 |
02/14/2023 |
208,000 |
141,861 |
15,604 |
0 |
15,604 |
||
|
2022 |
03/15/2022 |
183,000 |
135,106 |
14,861 |
0 |
14,861 |
||
| Property Building Permit History | ||||||
|---|---|---|---|---|---|---|
| Issued | Permit # | Provided by | Bldg # | Description | Est Construction Cost | Status |
|
7/14/2009 |
10384799 |
OKLAHOMA CITY |
1 |
Remodeled |
5,500 |
Inactive |
| Click button on building number to access detailed information: | ||||||
|---|---|---|---|---|---|---|
| Bldg # | Vacant/Improved Land | Bldg Description | Year Built | SqFt | # Stories | |
|
1 |
Improved |
1½ Story Fin |
1929 |
1,832 |
1.5 Stories |
|